














Book your tour. Save an average of $18,473. We'll handle the rest.
- Confirmed tours
- Get matched & compare top deals
- Expert help, no pressure
- No added fees
Estimated value based on Jome data, T&C apply






































- 4 bd
- 3 ba
- 2,671 sqft
7078 Snap Spur Cir, Aiken, SC 29801
Why tour with Jome?
- No pressure toursTour at your own pace with no sales pressure
- Expert guidanceGet insights from our home buying experts
- Exclusive accessSee homes and deals not available elsewhere
Jome is featured in
- Single-Family
- Quick move-in
- $209.66/sqft
- 179 days on Jome
Home description
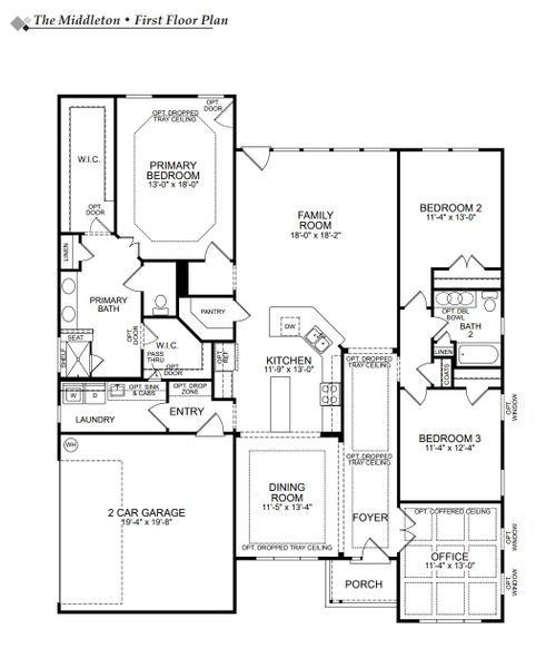
The Middleton is a four-bedroom, three-bath home with a formal dining room, home office, first-floor primary bedroom with two closets and a large shower in the primary bath, kitchen with island and pantry, a large laundry room, and a covered rear porch. This home also features a third-car utility garage, and a second floor with a loft, bedroom, and full bath.
May also be listed on the Eastwood Homes website
Information last verified by Jome: Today at 6:18 AM (December 19, 2025)
Home highlights
Book your tour. Save an average of $18,473. We'll handle the rest.
We collect exclusive builder offers, book your tours, and support you from start to housewarming.
- Confirmed tours
- Get matched & compare top deals
- Expert help, no pressure
- No added fees
Estimated value based on Jome data, T&C apply
Home details
- Property status:
- Move-in ready
- Size:
- 2,671 sqft
- Stories:
- 1.5
- Beds:
- 4
- Baths:
- 3
- Garage spaces:
- 3
Construction details
- Builder Name:
- Eastwood Homes
Home features & finishes
- Flooring:
- Vinyl Flooring
- Garage/Parking:
- GarageAttached Garage
- Interior Features:
- PantryLoft
- Kitchen:
- Kitchen Island
- Property amenities:
- FireplacePorch
- Rooms:
- KitchenOffice/StudyDining Room

Get a consultation with our New Homes Expert
- See how your home builds wealth
- Plan your home-buying roadmap
- Discover hidden gems

Community details
Hancock Farms
by Eastwood Homes, Aiken, SC
- 6 homes
- 7 plans
- 2,230 - 3,483 sqft
View Hancock Farms details
More homes in Hancock Farms
Floor plans in Hancock Farms
About the builder - Eastwood Homes
Neighborhood
Home address
Schools in Aiken County School District
- Grades M-MPublicaiken performing arts academy charter2.4 mi130 avery lanena
GreatSchools’ Summary Rating calculation is based on 4 of the school’s themed ratings, including test scores, student/academic progress, college readiness, and equity. This information should only be used as a reference. Jome is not affiliated with GreatSchools and does not endorse or guarantee this information. Please reach out to schools directly to verify all information and enrollment eligibility. Data provided by GreatSchools.org © 2025
Getting around
Air quality
Natural hazards risk
Climate hazards can impact homes and communities, with risks varying by location. These scores reflect the potential impact of natural disasters and climate-related risks on Aiken County
Provided by FEMA

Considering this home?
Our expert will guide your tour, in-person or virtual
Need more information?
Text or call (888) 486-2818
Financials
Estimated monthly payment
Let us help you find your dream home
How many bedrooms are you looking for?
Similar homes nearby
Recently added communities in this area
Nearby communities in Aiken
New homes in nearby cities
More New Homes in Aiken, SC
- Jome
- New homes search
- South Carolina
- Aiken County
- Aiken
- Hancock Farms
- 7078 Snap Spur Cir, Aiken, SC 29801



































