





































- 3 bd
- 2.5 ba
- 1,373 sqft
1236 C Champions Rest Rd, Lugoff, SC 29078
- Single-Family
- $136.55/sqft
- 185 days on Jome
New Homes for Sale Near 1236 C Champions Rest Rd, Lugoff, SC 29078
About this Home
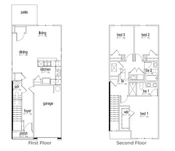
Welcome home to this beautiful 3-bedroom, 2.5-bath new construction townhome in the heart of Lugoff, SC! Ideally located with easy access to Shaw AFB, Fort Jackson, and downtown Columbia, this home offers both comfort and convenience. The main floor features luxury vinyl plank flooring throughout and a spacious open-concept living room and kitchen—perfect for entertaining or everyday living. The kitchen shines with quartz countertops, brand-new stainless-steel appliances, and ample cabinet space. Additionally, you have a powder room that thoughtfully accomodates the entirety of the main level. Upstairs you’ll find the primary suite with a private bath and a walk-in closet, with the laundry closet thoughtfully positioned just outside the bedroom for added ease. Down the hall, you'll find two additional bedrooms and served by a shared hall bath. Further, enjoy the benefits of a natural gas community, including a tankless water heater and energy-efficient gas heating to help save on monthly utilities. Step out back to your fenced yard, which offers private outdoor space and future access to a planned community common area.
May also be listed on the Hurricane Builders website
Information last verified by Jome: Monday at 6:03 AM (November 17, 2025)
Home details
- Property status:
- Sold
- Size:
- 1,373 sqft
- Stories:
- 2
- Beds:
- 3
- Baths:
- 2
- Half baths:
- 1
- Garage spaces:
- 1
Construction details
- Builder Name:
- Hurricane Builders
Home features & finishes
- Garage/Parking:
- Garage

Community details
Village at Boulware
by Hurricane Builders, Lugoff, SC
- 1 home
- 1 plan
- 1,373 - 1,373 sqft
View Village at Boulware details
More homes in Village at Boulware
Floor plans in Village at Boulware
About the builder - Hurricane Builders
Neighborhood
Home address
Schools in Kershaw County School District
GreatSchools’ Summary Rating calculation is based on 4 of the school’s themed ratings, including test scores, student/academic progress, college readiness, and equity. This information should only be used as a reference. Jome is not affiliated with GreatSchools and does not endorse or guarantee this information. Please reach out to schools directly to verify all information and enrollment eligibility. Data provided by GreatSchools.org © 2025
Places of interest
Getting around
Air quality
Noise level
A Soundscore™ rating is a number between 50 (very loud) and 100 (very quiet) that tells you how loud a location is due to environmental noise.
Natural hazards risk
Climate hazards can impact homes and communities, with risks varying by location. These scores reflect the potential impact of natural disasters and climate-related risks on Kershaw County
Provided by FEMA
Financials
Nearby communities in Lugoff
Homes in Lugoff by Hurricane Builders
Recently added communities in this area
Other Builders in Lugoff, SC
Nearby sold homes
New homes in nearby cities
More New Homes in Lugoff, SC
- Jome
- New homes search
- South Carolina
- Kershaw County
- Lugoff
- Village at Boulware
- 1236 C Champions Rest Rd, Lugoff, SC 29078

























































