














Book your tour. Save an average of $18,473. We'll handle the rest.
- Confirmed tours
- Get matched & compare top deals
- Expert help, no pressure
- No added fees
Estimated value based on Jome data, T&C apply


Why tour with Jome?
- No pressure toursTour at your own pace with no sales pressure
- Expert guidanceGet insights from our home buying experts
- Exclusive accessSee homes and deals not available elsewhere
Jome is featured in
- Single-Family
- Under construction
- $146.35/sqft
- 0.14-acre lot
Home description
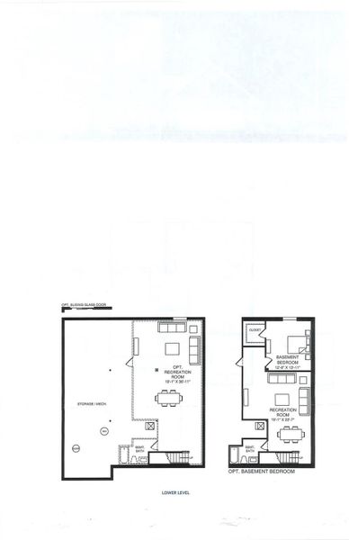
Popular new floorplan in a brand new community in a peaceful residential setting! Future amenities include pickle ball courts, walking trails, dog park, gazebo, fire pit, and more! Yard maintenance is included, too! Our Eden Cay floorplan offers our most spacious open living, with 3 generous bedrooms on the main floor and lots of closet space. Granite countertops and a full kitchen appliance package are included, with an option for a gourmet kitchen appliance package upgrade and upgraded elevation. The primary bedroom easily accommodates a king sized bed, and features a large walk-in closet off the bath. Customize this beautiful home with your choice of cabinetry and design packages to make it your own! Plus, the partially finished basement including a rec room, full bathroom, large bedroom with walk-in closet, and a deck! The basement also includes a very large unfinished storage area! Please call to schedule an appointment.
Century 21 Providence Realty, MLS CAR4263104
May also be listed on the Ryan Homes website
Information last verified by Jome: Today at 12:05 AM (January 9, 2026)
Home highlights
Border-straddling theme park near Charlotte with coasters, water rides, and seasonal events for all ages.
Book your tour. Save an average of $18,473. We'll handle the rest.
We collect exclusive builder offers, book your tours, and support you from start to housewarming.
- Confirmed tours
- Get matched & compare top deals
- Expert help, no pressure
- No added fees
Estimated value based on Jome data, T&C apply
Home details
- Property status:
- Under construction
- Lot size (acres):
- 0.14
- Size:
- 2,552 sqft
- Stories:
- 1
- Beds:
- 4
- Baths:
- 3
- Garage spaces:
- 2
Construction details
- Builder Name:
- Ryan Homes
- Year Built:
- 2026
- Roof:
- Shingle Roofing
Home features & finishes
- Appliances:
- Exhaust Fan
- Construction Materials:
- Stone
- Cooling:
- Central Air
- Flooring:
- Vinyl FlooringCarpet FlooringTile Flooring
- Garage/Parking:
- Door OpenerGarageAttached Garage
- Home amenities:
- Home Accessibility Features
- Interior Features:
- Walk-In ClosetFoyerPantry
- Kitchen:
- DishwasherMicrowave OvenRefrigeratorDisposalKitchen IslandKitchen Range
- Laundry facilities:
- DryerLaundry Facilities On Main LevelUtility/Laundry Room
- Property amenities:
- BasementDeck
- Rooms:
- Primary Bedroom On MainOpen Concept FloorplanPrimary Bedroom Downstairs
- Security system:
- Carbon Monoxide Detector
Utility information
- Heating:
- Electric Heating, Water Heater
- Utilities:
- Cable Available

Community details
Basildon
by Ryan Homes, Lancaster, SC
- 16 homes
- 6 plans
- 1,296 - 2,552 sqft
View Basildon details
Community amenities
- Sidewalks Available
More homes in Basildon
- Home at address 279 Basildon St, Unit 1032, Lancaster, SC 29720

Home
$282,990
- 4 bd
- 2.5 ba
- 1,749 sqft
279 Basildon St, Unit 1032, Lancaster, SC 29720
- Home at address 170 Basildon St, Unit 1062, Lancaster, SC 29720

Home
$287,990
- 4 bd
- 2.5 ba
- 1,749 sqft
170 Basildon St, Unit 1062, Lancaster, SC 29720
- Home at address 174 Basildon St, Unit 1061, Lancaster, SC 29720

Home
$316,990
- 4 bd
- 2.5 ba
- 2,203 sqft
174 Basildon St, Unit 1061, Lancaster, SC 29720
- Home at address 444 Derbyshire St, Unit 2124, Lancaster, SC 29720

Home
$322,990
- 5 bd
- 3 ba
- 2,541 sqft
444 Derbyshire St, Unit 2124, Lancaster, SC 29720
- Home at address 367 Maplestead St, Unit 1105, Lancaster, SC 29720

Home
$338,990
- 4 bd
- 2.5 ba
- 1,903 sqft
367 Maplestead St, Unit 1105, Lancaster, SC 29720
- Home at address 571 Nesbe St, Unit 2221, Lancaster, SC 29720

Home
$347,490
- 4 bd
- 3 ba
- 1,898 sqft
571 Nesbe St, Unit 2221, Lancaster, SC 29720
Floor plans in Basildon
About the builder - Ryan Homes
Neighborhood
Home address
Schools in Lancaster County School District
GreatSchools’ Summary Rating calculation is based on 4 of the school’s themed ratings, including test scores, student/academic progress, college readiness, and equity. This information should only be used as a reference. Jome is not affiliated with GreatSchools and does not endorse or guarantee this information. Please reach out to schools directly to verify all information and enrollment eligibility. Data provided by GreatSchools.org © 2025
Places of interest
Getting around
Air quality
Noise level
A Soundscore™ rating is a number between 50 (very loud) and 100 (very quiet) that tells you how loud a location is due to environmental noise.

Considering this home?
Our expert will guide your tour, in-person or virtual
Need more information?
Text or call (888) 486-2818
Financials
Estimated monthly payment
Similar homes nearby
Recently added communities in this area
Nearby communities in Lancaster
New homes in nearby cities
More New Homes in Lancaster, SC
Century 21 Providence Realty, MLS CAR4263104
Based on information submitted to the MLS GRID as of 10/21/2024 2:31 PM CDT. All data is obtained from various sources and may not have been verified by the broker or MLS GRID. Supplied Open House Information is subject to change without notice. All information should be independently reviewed and verified for accuracy. Properties may or may not be listed by the office/agent presenting the information. Properties displayed may be listed or sold by various participants in the MLS. The Digital Millennium Copyright Act of 1998, 17 U.S.C. § 512 (the “DMCA”) provides recourse for copyright owners who believe that material appearing on the Internet infringes their rights under U.S. copyright law. If you believe in good faith that any content or material made available in connection with our website or services infringes your copyright, you (or your agent) may send us a notice requesting that the content or material be removed, or access to it blocked. Notices must be sent in writing by email to DMCAnotice@MLSGrid.com. The DMCA requires that your notice of alleged copyright infringement include the following information: (1) description of the copyrighted work that is the subject of claimed infringement; (2) description of the alleged infringing content and information sufficient to permit us to locate the content; (3) contact information for you, including your address, telephone number and email address; (4) a statement by you that you have a good faith belief that the content in the manner complained of is not authorized by the copyright owner, or its agent, or by the operation of any law; (5) a statement by you, signed under penalty of perjury, that the information in the notification is accurate and that you have the authority to enforce the copyrights that are claimed to be infringed; and (6) a physical or electronic signature of the copyright owner or a person authorized to act on the copyright owner’s behalf. Failure to include all of the above information may result in the delay of the processing of your complaint.
Read moreLast checked Jan 9, 12:00 am
- Jome
- New homes search
- South Carolina
- Charlotte Metropolitan Area
- Lancaster County
- Lancaster
- Basildon
- 585 Nesbe St, Unit 2224, Lancaster, SC 29720































