









Book your tour. Save an average of $18,473. We'll handle the rest.
We collect exclusive builder offers, book your tours, and support you from start to housewarming.
- Confirmed tours
- Get matched & compare top deals
- Expert help, no pressure
- No added fees
Estimated value based on Jome data, T&C apply






























Why tour with Jome?
- No pressure toursTour at your own pace with no sales pressure
- Expert guidanceGet insights from our home buying experts
- Exclusive accessSee homes and deals not available elsewhere
Jome is featured in
- Single-Family
- Quick move-in
- $223.3/sqft
- 0.33-acre lot
Home description
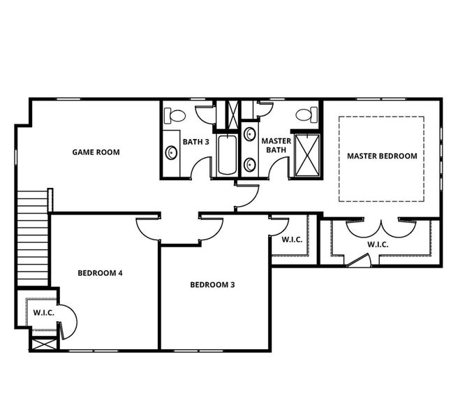
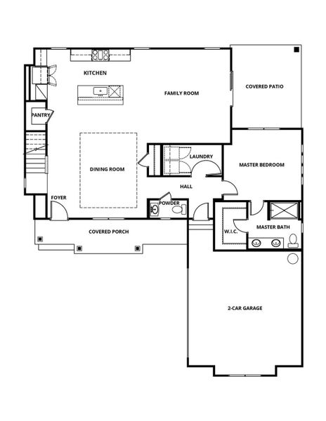
The Richland floor plan is a brilliantly designed home that provides the space and flexibility that you desire. This home is perfect for guests or in-law. The main floor of this two-story home showcases an open family room located directly off the fully equipped kitchen and dining area. Features include LVP flooring, quartz countertops and stainless steel appliances. One of the two incredible master retreats is tucked in the back corner of the home providing a private escape to unwind at the end of the day. This room includes a walk-in closet and en-suite bath. The second story of the Richland also provides tons of space. At the top of the stairs you will find a game room where you can set up a pool table or even convert into a media room. Off the game room, you have three secondary bedrooms, including an additional master bedroom, all with walk-in closets, ceiling fans and two full bathrooms. With its flexible layout, the Richland will accommodate your family's needs for years to come. Outside is complete with covered rear patio with ceiling fan and in-ground irrigation. Please ask about our builder incentives!
LGI Homes NC LLC, MLS CAR4361068
May also be listed on the Terrata Homes website
Information last verified by Jome: Today at 5:01 AM (April 22, 2026)
Home highlights
Lakeside preserve near Charlotte offering wooded trails, camping, and nature programs in a peaceful setting.
Book your tour. Save an average of $18,473. We'll handle the rest.
We collect exclusive builder offers, book your tours, and support you from start to housewarming.
- Confirmed tours
- Get matched & compare top deals
- Expert help, no pressure
- No added fees
Estimated value based on Jome data, T&C apply
Home details
- Property status:
- Move-in ready
- Lot size (acres):
- 0.33
- Size:
- 2,588 sqft
- Stories:
- 2
- Beds:
- 4
- Baths:
- 3
- Half baths:
- 1
- Garage spaces:
- 2
Construction details
- Builder Name:
- Terrata Homes
- Year Built:
- 2025
- Roof:
- Shingle Roofing
Home features & finishes
- Appliances:
- Ice Maker
- Construction Materials:
- Stone
- Cooling:
- Ceiling Fan(s)Central Air
- Flooring:
- Vinyl FlooringCarpet Flooring
- Foundation Details:
- Slab
- Garage/Parking:
- Door OpenerGarageSide Entry Garage/ParkingAttached Garage
- Interior Features:
- Window TreatmentsWalk-In ClosetPantrySliding DoorsStorageBreakfast BarWalk-In Pantry
- Kitchen:
- DishwasherMicrowave OvenOvenRefrigeratorDisposalGas CooktopConvection OvenSelf Cleaning OvenKitchen IslandGas Oven
- Laundry facilities:
- DryerWasherUtility/Laundry Room
- Property amenities:
- IrrigationPatioPorch
- Rooms:
- AtticBreakfast AreaOpen Concept Floorplan
- Security system:
- Security SystemSmoke DetectorCarbon Monoxide Detector
Room details
Master Bedroom
Kitchen
Dining Room

Get a consultation with our New Homes Expert
- See how your home builds wealth
- Plan your home-buying roadmap
- Discover hidden gems
Utility information
- Heating:
- Water Heater, Gas Heating, Tankless water heater
- Sewer:
- Public Sewer
- Utilities:
- Electricity Available, Natural Gas on Property, Underground Utilities, Internet Cable, Internet-Fiber, Phone Available, Cable Available
- Water source:
- Public

Community details
Stoneridge Hills
by Terrata Homes, Rock Hill, SC
- 9 homes
- 6 plans
- 1,595 - 2,690 sqft
View Stoneridge Hills details
Community amenities
- Dog Park
- Playground
- Sport Court
- Community Pond
- Game Room/Area
- Picnic Area
- Sidewalks Available
- Recreational Facilities
More homes in Stoneridge Hills
- Home at address 1939 Hendricks St, Rock Hill, SC 29732

Home
$577,900
- 4 bd
- 3.5 ba
- 2,588 sqft
1939 Hendricks St, Rock Hill, SC 29732
Floor plans in Stoneridge Hills
About the builder - Terrata Homes
Neighborhood
Home address
Schools in York School District 3
GreatSchools’ Summary Rating calculation is based on 4 of the school’s themed ratings, including test scores, student/academic progress, college readiness, and equity. This information should only be used as a reference. Jome is not affiliated with GreatSchools and does not endorse or guarantee this information. Please reach out to schools directly to verify all information and enrollment eligibility. Data provided by GreatSchools.org © 2025
Places of interest
Getting around
Air quality
Noise level
A Soundscore™ rating is a number between 50 (very loud) and 100 (very quiet) that tells you how loud a location is due to environmental noise.

Considering this home?
Our expert will guide your tour, in-person or virtual
Need more information?
Text or call (888) 545-5198
Financials
Estimated monthly payment
Let us help you find your dream home
How many bedrooms are you looking for?
Similar homes nearby
Recently added communities in this area
Nearby communities in Rock Hill
New homes in nearby cities
More New Homes in Rock Hill, SC
LGI Homes NC LLC, MLS CAR4361068
Based on information submitted to the MLS GRID as of 10/21/2024 2:31 PM CDT. All data is obtained from various sources and may not have been verified by the broker or MLS GRID. Supplied Open House Information is subject to change without notice. All information should be independently reviewed and verified for accuracy. Properties may or may not be listed by the office/agent presenting the information. Properties displayed may be listed or sold by various participants in the MLS. The Digital Millennium Copyright Act of 1998, 17 U.S.C. § 512 (the “DMCA”) provides recourse for copyright owners who believe that material appearing on the Internet infringes their rights under U.S. copyright law. If you believe in good faith that any content or material made available in connection with our website or services infringes your copyright, you (or your agent) may send us a notice requesting that the content or material be removed, or access to it blocked. Notices must be sent in writing by email to DMCAnotice@MLSGrid.com. The DMCA requires that your notice of alleged copyright infringement include the following information: (1) description of the copyrighted work that is the subject of claimed infringement; (2) description of the alleged infringing content and information sufficient to permit us to locate the content; (3) contact information for you, including your address, telephone number and email address; (4) a statement by you that you have a good faith belief that the content in the manner complained of is not authorized by the copyright owner, or its agent, or by the operation of any law; (5) a statement by you, signed under penalty of perjury, that the information in the notification is accurate and that you have the authority to enforce the copyrights that are claimed to be infringed; and (6) a physical or electronic signature of the copyright owner or a person authorized to act on the copyright owner’s behalf. Failure to include all of the above information may result in the delay of the processing of your complaint.
Read moreLast checked Apr 22, 5:00 am
- Jome
- New homes search
- South Carolina
- Charlotte Metropolitan Area
- York County
- Rock Hill
- Stoneridge Hills
- 2069 Fordhill St, Rock Hill, SC 29732

























