








Book your tour. Save an average of $18,473. We'll handle the rest.
We collect exclusive builder offers, book your tours, and support you from start to housewarming.
- Confirmed tours
- Get matched & compare top deals
- Expert help, no pressure
- No added fees
Estimated value based on Jome data, T&C apply



























Why tour with Jome?
- No pressure toursTour at your own pace with no sales pressure
- Expert guidanceGet insights from our home buying experts
- Exclusive accessSee homes and deals not available elsewhere
Jome is featured in
- Townhouse
- Quick move-in
- $180.86/sqft
- $160/monthly HOA
Home description
What's Special: Model Plan | Oversized Closet in Primary | Large Kitchen Island | White Cabinets | No Rear Neighbors. New Construction - July Completion! Built by America's Most Trusted Home Builder. Welcome to the Sage at 331 Sweetbay Tree Drive in Magnolia Townes! This thoughtfully designed new townhome welcomes you with a covered front porch and foyer that lead to an open kitchen, dining, and great room arrangement made for everyday living and easy entertaining. The kitchen offers generous counter space and a center island that keeps you connected to the gathering space, while the patio just beyond invites you to relax outdoors or host friends. A one car garage and a convenient half bath complete the first floor, keeping daily routines simple and organized. Upstairs, the primary suite feels like a retreat with a spacious layout, a walk-in closet, and a private en-suite bath, giving you a peaceful place to recharge. Two additional bedrooms, a full bath, a central loft, and a dedicated laundry space provide flexibility for guests, hobbies, or working from home. In the heart of Wendell, NC, this new townhome community offers a perfect blend of peaceful suburban living and the energy of nearby Raleigh. Just minutes from downtown Wendell, you'll enjoy easy access to great schools, major employers, and I-540 and I-87--keeping you close to everything that matters. Additional Highlights Include: a dual sink vanity in bathroom 2 and boxed stairs with TrueMatch stair treads. Photos are for representative purposes only. MLS#10163120
Taylor Morrison of Carolinas,, MLS 10163120
May also be listed on the Taylor Morrison website
Information last verified by Jome: Yesterday at 10:10 PM (April 28, 2026)
Home highlights
Book your tour. Save an average of $18,473. We'll handle the rest.
We collect exclusive builder offers, book your tours, and support you from start to housewarming.
- Confirmed tours
- Get matched & compare top deals
- Expert help, no pressure
- No added fees
Estimated value based on Jome data, T&C apply
Home details
- Property status:
- Move-in ready
- Lot size (acres):
- 0.05
- Size:
- 1,714 sqft
- Stories:
- 2
- Beds:
- 3
- Baths:
- 2
- Half baths:
- 1
- Garage spaces:
- 1
- Fence:
- No Fence
- Facing direction:
- Northwest
Construction details
- Builder Name:
- Taylor Morrison
- Completion Date:
- August, 2026
- Year Built:
- 2026
- Roof:
- Roof Gutter, Shingle Roofing
Home features & finishes
- Construction Materials:
- Cement
- Flooring:
- Laminate FlooringCarpet Flooring
- Foundation Details:
- Slab
- Garage/Parking:
- Door OpenerGarageFront Entry Garage/ParkingAttached Garage
- Interior Features:
- Walk-In ClosetFoyerPantryDouble Vanity
- Kitchen:
- DishwasherMicrowave OvenOvenGranite countertopKitchen IslandGas Oven
- Laundry facilities:
- Laundry Facilities On Upper LevelUtility/Laundry Room
- Property amenities:
- BasementLandscapingWalk-in ShowerPatioPorch
- Rooms:
- KitchenOpen Concept Floorplan
Room details
Master Bedroom
Dining Room
Bedroom 2

Get a consultation with our New Homes Expert
- See how your home builds wealth
- Plan your home-buying roadmap
- Discover hidden gems
Utility information
- Heating:
- Heat Pump, Zoned Heating, Water Heater
- Sewer:
- Public Sewer
- Utilities:
- Natural Gas Available, Underground Utilities, Sewer Available
- Water source:
- Public

Community details
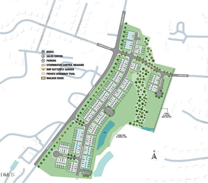
Magnolia Townes
by Taylor Morrison, Wendell, NC
- 10 homes
- 4 plans
- 1,616 - 1,885 sqft
View Magnolia Townes details
Community amenities
- Sidewalks Available
More homes in Magnolia Townes
- Home at address 318 Sweetbay Tree Dr, Wendell, NC 27591

Magnolia
Savings$284,999
- 3 bd
- 2.5 ba
- 1,616 sqft
318 Sweetbay Tree Dr, Wendell, NC 27591
- Home at address 323 Sweetbay Tree Dr, Wendell, NC 27591

Magnolia
Savings$289,999
- 3 bd
- 2.5 ba
- 1,616 sqft
323 Sweetbay Tree Dr, Wendell, NC 27591
- Home at address 335 Sweetbay Tree Dr, Wendell, NC 27591

Magnolia
Savings$292,999
- 3 bd
- 2.5 ba
- 1,616 sqft
335 Sweetbay Tree Dr, Wendell, NC 27591
- Home at address 324 Sweetbay Tree Dr, Wendell, NC 27591

Magnolia
Savings$297,999
- 3 bd
- 2.5 ba
- 1,616 sqft
324 Sweetbay Tree Dr, Wendell, NC 27591
- Home at address 320 Sweetbay Tree Dr, Wendell, NC 27591

Sage
Savings$299,999
- 3 bd
- 2.5 ba
- 1,714 sqft
320 Sweetbay Tree Dr, Wendell, NC 27591
- Home at address 337 Sweetbay Tree Dr, Wendell, NC 27591

Sage
Savings$309,999
- 3 bd
- 2.5 ba
- 1,714 sqft
337 Sweetbay Tree Dr, Wendell, NC 27591
Floor plans in Magnolia Townes
About the builder - Taylor Morrison

- 317communities on Jome
- 1,320homes on Jome
Neighborhood
Home address
Schools in Wake County Schools
- Grades PK-12Privateheritage christian academy4.0 mi615 mack todd rdna
GreatSchools’ Summary Rating calculation is based on 4 of the school’s themed ratings, including test scores, student/academic progress, college readiness, and equity. This information should only be used as a reference. Jome is not affiliated with GreatSchools and does not endorse or guarantee this information. Please reach out to schools directly to verify all information and enrollment eligibility. Data provided by GreatSchools.org © 2025
Places of interest
Getting around
Noise level
A Soundscore™ rating is a number between 50 (very loud) and 100 (very quiet) that tells you how loud a location is due to environmental noise.

Considering this home?
Our expert will guide your tour, in-person or virtual
Need more information?
Text or call (888) 545-5198
Financials
Estimated monthly payment
Let us help you find your dream home
How many bedrooms are you looking for?
Similar homes nearby
Recently added communities in this area
Nearby communities in Wendell
New homes in nearby cities
More New Homes in Wendell, NC
Taylor Morrison of Carolinas,, MLS 10163120
© 2025 Doorify MLS, Inc. of North Carolina. All rights reserved. Brokers make an effort to deliver accurate information, but buyers should independently verify any information on which they will rely in a transaction. The listing broker shall not be responsible for any typographical errors, misinformation, or misprints, and they shall be held totally harmless from any damages arising from reliance upon this data. This data is provided exclusively for consumers’ personal, non-commercial use. Some IDX listings have been excluded from this IDX display. Closed (sold) listings may have been listed and/or sold by a real estate firm other than the firm(s) featured on this website. Closed data is not available until the sale of the property is recorded in the MLS. Home sale data is not an appraisal, CMA, competitive or comparative market analysis, or home valuation of any property. Listings marked with an icon are provided courtesy of the Doorify MLS, Inc. of North Carolina, Internet Data Exchange Database.
Read moreLast checked Apr 28, 10:10 pm
- Jome
- New homes search
- North Carolina
- Raleigh-Durham Area
- Wake County
- Wendell
- Magnolia Townes
- 331 Sweetbay Tree Dr, Wendell, NC 27591



























