









Book your tour. Save an average of $18,473. We'll handle the rest.
We collect exclusive builder offers, book your tours, and support you from start to housewarming.
- Confirmed tours
- Get matched & compare top deals
- Expert help, no pressure
- No added fees
Estimated value based on Jome data, T&C apply






Why tour with Jome?
- No pressure toursTour at your own pace with no sales pressure
- Expert guidanceGet insights from our home buying experts
- Exclusive accessSee homes and deals not available elsewhere
Jome is featured in
- Single-Family
- Ready by May 2026
- $203.9/sqft
- 1 days on Jome
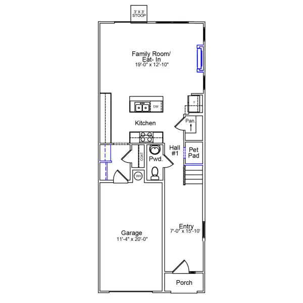
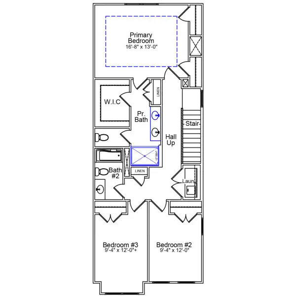
Home description
Welcome to this beautifully crafted two-story townhome featuring three bedrooms and two-and-one-half baths, designed with both comfort and style in mind. Just beyond the entryway, a welcoming hallway guides you past the staircase and powder room into a stunning open-concept living area. The great room, anchored by a cozy fireplace, flows effortlessly into a bright eat-in kitchen and extends to a private patio—perfect for relaxing or entertaining. Upstairs, the spacious primary suite offers a serene retreat, complete with a tray ceiling, a generous walk-in closet, and an en suite bath featuring dual vanities. A conveniently located laundry closet just outside the primary suite adds everyday ease. Two additional bedrooms and a full bath provide flexible space for guests, loved ones, or a home office. Enhanced with additional windows on both levels, this home is filled with abundant natural light, creating a warm and inviting atmosphere throughout. A one-car garage and a thoughtfully designed drop zone with built-in bench seating and cubbies add the perfect finishing touch to this functional and stylish floor plan.
May also be listed on the Mungo Homes website
Information last verified by Jome: Today at 6:04 AM (April 23, 2026)
Book your tour. Save an average of $18,473. We'll handle the rest.
We collect exclusive builder offers, book your tours, and support you from start to housewarming.
- Confirmed tours
- Get matched & compare top deals
- Expert help, no pressure
- No added fees
Estimated value based on Jome data, T&C apply
Home details
- Property status:
- Under construction
- Neighborhood:
- Hickory Grove
- Size:
- 1,711 sqft
- Stories:
- 2
- Beds:
- 3
- Baths:
- 2
- Half baths:
- 1
- Garage spaces:
- 1
Construction details
- Builder Name:
- Mungo Homes
- Completion Date:
- May, 2026
Home features & finishes
- Garage/Parking:
- Garage
- Rooms:
- Primary Bedroom Upstairs

Get a consultation with our New Homes Expert
- See how your home builds wealth
- Plan your home-buying roadmap
- Discover hidden gems

Community details
Ryder Park
by Mungo Homes, Charlotte, NC
- 1 home
- 2 plans
- 1,671 - 1,711 sqft
View Ryder Park details
Floor plans in Ryder Park
- View details for Foxglove - Genesis Value Collection

Foxglove - Genesis Value Collection
$323,000+- 3 bd
- 2.5 ba
- 1,671 sqft
- View details for Dahlia - Genesis Value Collection

Dahlia - Genesis Value Collection
$323,000+- 3 bd
- 2.5 ba
- 1,672 sqft
About the builder - Mungo Homes
Neighborhood
Home address
- Neighborhood:
- Hickory Grove
- City:
- Charlotte
- County:
- Mecklenburg
- Zip Code:
- 28215
Schools in Charlotte-Mecklenburg Schools
- Grades PK-04Publicgrove park elementary school0.6 mi7515 the plazana
GreatSchools’ Summary Rating calculation is based on 4 of the school’s themed ratings, including test scores, student/academic progress, college readiness, and equity. This information should only be used as a reference. Jome is not affiliated with GreatSchools and does not endorse or guarantee this information. Please reach out to schools directly to verify all information and enrollment eligibility. Data provided by GreatSchools.org © 2025
Places of interest
Getting around
2 nearby routes: 2 bus, 0 rail, 0 other
Considering this home?
Our expert will guide your tour, in-person or virtual
Need more information?
Text or call (888) 545-5198
Financials
Estimated monthly payment
Let us help you find your dream home
How many bedrooms are you looking for?
Similar homes nearby
Recently added communities in this area
Nearby communities in Charlotte
New homes in nearby cities
More New Homes in Charlotte, NC
- Jome
- New homes search
- North Carolina
- Charlotte Metropolitan Area
- Mecklenburg County
- Charlotte
- Ryder Park
- 3635 Teslow Dr, Charlotte, NC 28215


























