



Book your tour. Save an average of $18,473. We'll handle the rest.
We collect exclusive builder offers, book your tours, and support you from start to housewarming.
- Confirmed tours
- Get matched & compare top deals
- Expert help, no pressure
- No added fees
Estimated value based on Jome data, T&C apply


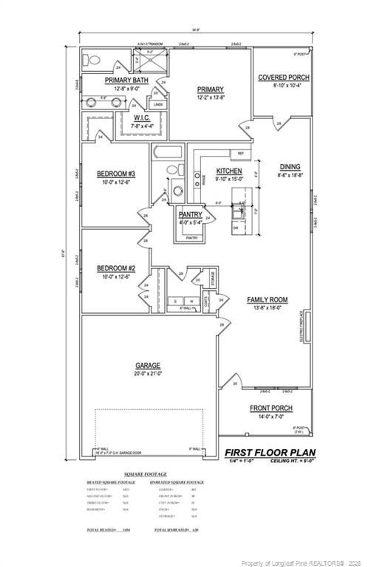
- 3 bd
- 2 ba
- 1,494 sqft
1430 Halsey Lp, Hope Mills, NC 28348
Why tour with Jome?
- No pressure toursTour at your own pace with no sales pressure
- Expert guidanceGet insights from our home buying experts
- Exclusive accessSee homes and deals not available elsewhere
Jome is featured in
- Single-Family
- Quick move-in
- $194.04/sqft
- 0.45-acre lot
Home description
Situated on almost a half-acre homesite, this stunning new construction ranch offers the perfect blend of comfort, style, and functionality. Featuring 3 bedrooms, 2 full bathrooms, and a desirable split-bedroom layout, this home is ideal for first-time buyers, downsizers, or anyone seeking easy one level living. A welcoming covered front porch leads into a spacious great room with an open and airy atmosphere. The thoughtfully designed floor plan flows seamlessly into the dining area and a beautifully appointed kitchen complete with a large island, granite countertops, stainless steel appliances, and abundant cabinet and counter space, and a walk in pantry; perfect for everyday living and entertaining. The private owner’s suite serves as a relaxing retreat, offering a generous walk-in closet, dual vanities, linen closet, and a walk-in shower. Two additional bedrooms share a full bath, providing comfort and flexibility for family or guests. A separate laundry room with additional storage adds to the home’s everyday convenience. Be sure to visit the covered back porch for relaxing and unwinding! Complete with a two-car garage and quality craftsmanship throughout, this home is ideally located just minutes from I-295, Fort Bragg, shopping, and schools, and is zoned for the sought-after Gray’s Creek School District. Take advantage of a 1% lender credit on loan amount available when using preferred lender, Christy Strickland w/ Atlantic Bay Mortgage, 910-574-2105.
LONGLEAF PROPERTIES OF SANDHILLS LLC., MLS LP760386
Information last verified by Jome: Today at 4:13 AM (May 31, 2026)
Book your tour. Save an average of $18,473. We'll handle the rest.
We collect exclusive builder offers, book your tours, and support you from start to housewarming.
- Confirmed tours
- Get matched & compare top deals
- Expert help, no pressure
- No added fees
Estimated value based on Jome data, T&C apply
Home details
- Property status:
- Move-in ready
- Lot size (acres):
- 0.45
- Size:
- 1,494 sqft
- Beds:
- 3
- Baths:
- 2
- Garage spaces:
- 2
Construction details
- Year Built:
- 2026
Home features & finishes
- Cooling:
- Ceiling Fan(s)
- Flooring:
- Vinyl FlooringTile FlooringHardwood Flooring
- Garage/Parking:
- GarageAttached Garage
- Interior Features:
- Walk-In Closet
- Kitchen:
- DishwasherMicrowave OvenGranite countertopKitchen IslandKitchen Range
- Laundry facilities:
- DryerWasher
- Property amenities:
- BasementWalk-in ShowerElectric FireplaceFireplacePorch
- Rooms:
- KitchenDining RoomOpen Concept Floorplan

Get a consultation with our New Homes Expert
- See how your home builds wealth
- Plan your home-buying roadmap
- Discover hidden gems
Utility information
- Heating:
- Heat Pump
Neighborhood
Home address
- City:
- Hope Mills
- County:
- Cumberland
- Zip Code:
- 28348
Schools in Cumberland County Schools
GreatSchools’ Summary Rating calculation is based on 4 of the school’s themed ratings, including test scores, student/academic progress, college readiness, and equity. This information should only be used as a reference. Jome is not affiliated with GreatSchools and does not endorse or guarantee this information. Please reach out to schools directly to verify all information and enrollment eligibility. Data provided by GreatSchools.org © 2025
Places of interest
Getting around
Air quality
Noise level
A Soundscore™ rating is a number between 50 (very loud) and 100 (very quiet) that tells you how loud a location is due to environmental noise.
Natural hazards risk
Provided by FEMA

Considering this home?
Our expert will guide your tour, in-person or virtual
Need more information?
Text or call (888) 545-5198
Financials
Estimated monthly payment
Let us help you find your dream home
How many bedrooms are you looking for?
Similar homes nearby
Recently added communities in this area
Nearby communities in Hope Mills
New homes in nearby cities
More New Homes in Hope Mills, NC
LONGLEAF PROPERTIES OF SANDHILLS LLC., MLS LP760386
© 2025 Doorify MLS, Inc. of North Carolina. All rights reserved. Brokers make an effort to deliver accurate information, but buyers should independently verify any information on which they will rely in a transaction. The listing broker shall not be responsible for any typographical errors, misinformation, or misprints, and they shall be held totally harmless from any damages arising from reliance upon this data. This data is provided exclusively for consumers’ personal, non-commercial use. Some IDX listings have been excluded from this IDX display. Closed (sold) listings may have been listed and/or sold by a real estate firm other than the firm(s) featured on this website. Closed data is not available until the sale of the property is recorded in the MLS. Home sale data is not an appraisal, CMA, competitive or comparative market analysis, or home valuation of any property. Listings marked with an icon are provided courtesy of the Doorify MLS, Inc. of North Carolina, Internet Data Exchange Database.
Read moreLast checked May 31, 4:10 am
- Jome
- New homes search
- North Carolina
- Cumberland County
- Hope Mills
- 1430 Halsey Lp, Hope Mills, NC 28348
























