



Book your tour. Save an average of $18,473. We'll handle the rest.
We collect exclusive builder offers, book your tours, and support you from start to housewarming.
- Confirmed tours
- Get matched & compare top deals
- Expert help, no pressure
- No added fees
Estimated value based on Jome data, T&C apply


Why tour with Jome?
- No pressure toursTour at your own pace with no sales pressure
- Expert guidanceGet insights from our home buying experts
- Exclusive accessSee homes and deals not available elsewhere
Jome is featured in
- Single-Family
- Ready by August 2026
- $198.61/sqft
- $105/monthly HOA
Home description
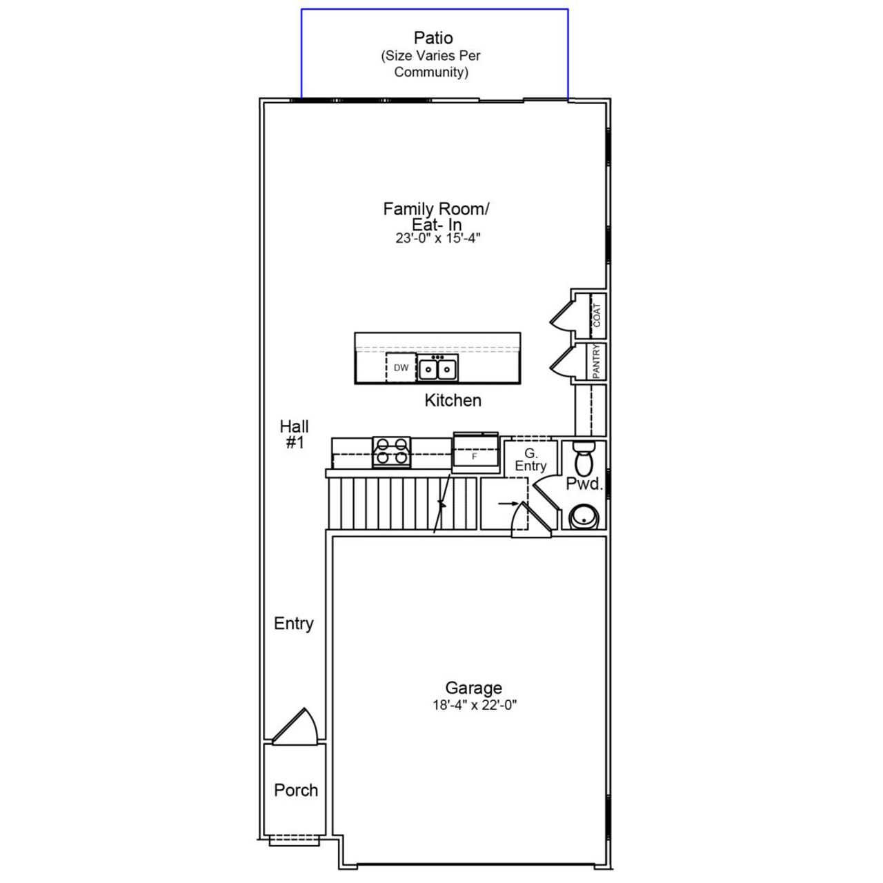
The popular Moonflower plan features three bedrooms and two-and-a-half bathrooms, thoughtfully designed for both comfort and style. Hardwood stairs lead up to a spacious loft and all three bedrooms. The primary suite includes an elegant tray ceiling, adding a touch of sophistication. The open-concept great room flows seamlessly into the kitchen, where a long island provides the perfect space for entertaining. The kitchen is equipped with a gas range, ideal for home chefs. Additional highlights include a two-car garage and Cat5 wired Ethernet connections in every bedroom, the loft and the great room for reliable high-speed connectivity.
May also be listed on the Mungo Homes website
Information last verified by Jome: Today at 5:34 AM (March 26, 2026)
Book your tour. Save an average of $18,473. We'll handle the rest.
We collect exclusive builder offers, book your tours, and support you from start to housewarming.
- Confirmed tours
- Get matched & compare top deals
- Expert help, no pressure
- No added fees
Estimated value based on Jome data, T&C apply
Home details
- Property status:
- Under construction
- Size:
- 1,974 sqft
- Stories:
- 2
- Beds:
- 3
- Baths:
- 2
- Half baths:
- 1
- Garage spaces:
- 2
Construction details
- Builder Name:
- Mungo Homes
- Completion Date:
- August, 2026
Home features & finishes
- Garage/Parking:
- Garage
- Rooms:
- Primary Bedroom Upstairs

Get a consultation with our New Homes Expert
- See how your home builds wealth
- Plan your home-buying roadmap
- Discover hidden gems

Community details
Sweetbrier
by Mungo Homes, Durham, NC
- 38 homes
- 16 plans
- 1,899 - 4,009 sqft
View Sweetbrier details
More homes in Sweetbrier
- Home at address 949 Westerland Wy, Durham, NC 27703

Mandevilla - Vanguard Collection
$364,000
- 3 bd
- 2.5 ba
- 1,947 sqft
949 Westerland Wy, Durham, NC 27703
- Home at address 939 Westerland Wy, Durham, NC 27703

Moonflower
$365,000
- 3 bd
- 2.5 ba
- 1,974 sqft
939 Westerland Wy, Durham, NC 27703
- Home at address 963 Westerland Wy, Durham, NC 27703

Mandevilla - Vanguard Collection
$365,000
- 3 bd
- 2.5 ba
- 1,933 sqft
963 Westerland Wy, Durham, NC 27703
- Home at address 939 Westerland Wy, Unit 71, Durham, NC 27703

Home
$365,000
- 3 bd
- 2.5 ba
- 1,974 sqft
939 Westerland Wy, Unit 71, Durham, NC 27703
- Home at address 937 Westerland Wy, Durham, NC 27703

Mandevilla - Vanguard Collection
$365,000
- 3 bd
- 2.5 ba
- 1,947 sqft
937 Westerland Wy, Durham, NC 27703
- Home at address 929 Westerland Wy Wy, Unit 75, Durham, NC 27703

Mandevilla - Vanguard Collection
$365,000
- 3 bd
- 2.5 ba
- 1,933 sqft
929 Westerland Wy Wy, Unit 75, Durham, NC 27703
Floor plans in Sweetbrier
- View details for Mandevilla - Vanguard Collection

Mandevilla - Vanguard Collection
$360,000+- 3 bd
- 2.5 ba
- 1,933 sqft
- View details for Moonflower - Vanguard Collection

Moonflower - Vanguard Collection
$362,000+- 3 bd
- 2.5 ba
- 1,968 sqft
About the builder - Mungo Homes
Neighborhood
Home address
Schools in Durham Public Schools
GreatSchools’ Summary Rating calculation is based on 4 of the school’s themed ratings, including test scores, student/academic progress, college readiness, and equity. This information should only be used as a reference. Jome is not affiliated with GreatSchools and does not endorse or guarantee this information. Please reach out to schools directly to verify all information and enrollment eligibility. Data provided by GreatSchools.org © 2025
Places of interest
Getting around
Air quality
Noise level
A Soundscore™ rating is a number between 50 (very loud) and 100 (very quiet) that tells you how loud a location is due to environmental noise.

Considering this home?
Our expert will guide your tour, in-person or virtual
Need more information?
Text or call (888) 545-5198
Financials
Estimated monthly payment
Let us help you find your dream home
How many bedrooms are you looking for?
Similar homes nearby
Recently added communities in this area
Nearby communities in Durham
New homes in nearby cities
More New Homes in Durham, NC
- Jome
- New homes search
- North Carolina
- Raleigh-Durham Area
- Durham County
- Durham
- Sweetbrier
- 921 Westerland Wy, Durham, NC 27703
































