














Book your tour. Save an average of $18,473. We'll handle the rest.
We collect exclusive builder offers, book your tours, and support you from start to housewarming.
- Confirmed tours
- Get matched & compare top deals
- Expert help, no pressure
- No added fees
Estimated value based on Jome data, T&C apply

























Why tour with Jome?
- No pressure toursTour at your own pace with no sales pressure
- Expert guidanceGet insights from our home buying experts
- Exclusive accessSee homes and deals not available elsewhere
Jome is featured in
- Townhouse
- Quick move-in
- $177.72/sqft
- $160/monthly HOA
Home description
What's Special: End Unit | Oversized Closet in Primary | No Rear Neighbors | Loft. New Construction - July Completion! Built by America's Most Trusted Home Builder. Welcome to the Birch at 329 Sweetbay Tree Drive in Magnolia Townes! This two-story townhome offers an open concept layout that feels airy, bright, and designed for casual, stylish living. An inviting foyer flows effortlessly into the great room, kitchen with a center island, and dining area, creating a space that is easy to gather in and enjoy. Upstairs, the primary suite sits at the front of the home and features an attached bathroom with a dual sink vanity, a roomy shower with a ledge, and a spacious closet. Two secondary bedrooms share a full bathroom, while a centrally located laundry room and an open loft complete the second floor. In the heart of Wendell, NC, this new townhome community offers a perfect blend of peaceful suburban living and the energy of nearby Raleigh. Just minutes from downtown Wendell, you'll enjoy easy access to great schools, major employers, and I-540 and I-87--keeping you close to everything that matters. Additional Highlights Include: primary bathroom with a linen closet and a tiled shower with a ledge, a dual sink vanity in the secondary bathroom, and open stair railing. Photos are for representative purposes only. MLS#10153079
Taylor Morrison of Carolinas,, MLS 10153079
May also be listed on the Taylor Morrison website
Information last verified by Jome: Today at 10:10 AM (March 18, 2026)
Home highlights
Book your tour. Save an average of $18,473. We'll handle the rest.
We collect exclusive builder offers, book your tours, and support you from start to housewarming.
- Confirmed tours
- Get matched & compare top deals
- Expert help, no pressure
- No added fees
Estimated value based on Jome data, T&C apply
Home details
- Property status:
- Move-in ready
- Lot size (acres):
- 0.09
- Size:
- 1,885 sqft
- Stories:
- 2
- Beds:
- 3
- Baths:
- 2
- Half baths:
- 1
- Garage spaces:
- 2
- Fence:
- No Fence
- Facing direction:
- Northwest
Construction details
- Builder Name:
- Taylor Morrison
- Year Built:
- 2026
- Roof:
- Roof Gutter, Shingle Roofing
Home features & finishes
- Construction Materials:
- Cement
- Flooring:
- Laminate FlooringCarpet Flooring
- Foundation Details:
- Slab
- Garage/Parking:
- Door OpenerGarageFront Entry Garage/ParkingAttached Garage
- Interior Features:
- Walk-In ClosetPantryDouble Vanity
- Kitchen:
- DishwasherMicrowave OvenGranite countertopKitchen Island
- Laundry facilities:
- Laundry Facilities On Upper LevelUtility/Laundry Room
- Property amenities:
- BasementLandscapingWalk-in ShowerPatio
- Rooms:
- KitchenDining RoomLiving RoomOpen Concept Floorplan
Room details
Master Bedroom
Dining Room
Bedroom 2

Get a consultation with our New Homes Expert
- See how your home builds wealth
- Plan your home-buying roadmap
- Discover hidden gems
Utility information
- Heating:
- Zoned Heating, Water Heater, Gas Heating
- Utilities:
- Natural Gas Available, Underground Utilities, Sewer Available

Community details
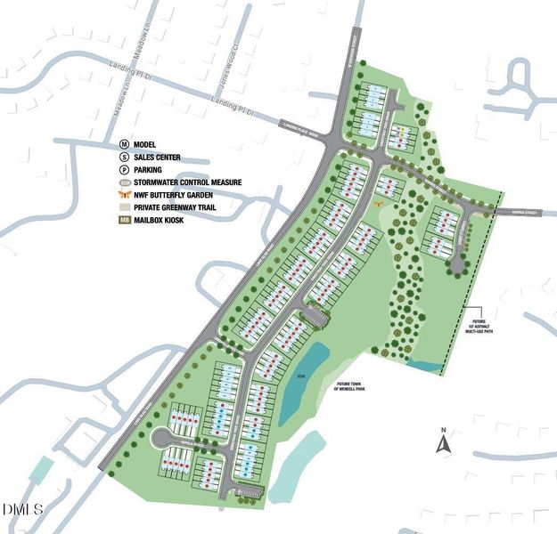
Magnolia Townes
by Taylor Morrison, Wendell, NC
- 16 homes
- 4 plans
- 1,616 - 1,885 sqft
View Magnolia Townes details
Community amenities
- Sidewalks Available
More homes in Magnolia Townes
- Home at address 318 Sweetbay Tree Dr, Wendell, NC 27591

Magnolia
Savings$289,999
- 3 bd
- 2.5 ba
- 1,616 sqft
318 Sweetbay Tree Dr, Wendell, NC 27591
- Home at address 323 Sweetbay Tree Dr, Wendell, NC 27591

Magnolia
Savings$299,999
- 3 bd
- 2.5 ba
- 1,616 sqft
323 Sweetbay Tree Dr, Wendell, NC 27591
- Home at address 335 Sweetbay Tree Dr, Wendell, NC 27591

Home
$304,999
- 3 bd
- 2.5 ba
- 1,616 sqft
335 Sweetbay Tree Dr, Wendell, NC 27591
- Home at address 335 Sweetbay Tree Dr, Wendell, NC 27591

Magnolia
Savings$304,999
- 3 bd
- 2.5 ba
- 1,616 sqft
335 Sweetbay Tree Dr, Wendell, NC 27591
- Home at address 320 Sweetbay Tree Dr, Wendell, NC 27591

Sage
Savings$309,999
- 3 bd
- 2.5 ba
- 1,714 sqft
320 Sweetbay Tree Dr, Wendell, NC 27591
- Home at address 324 Sweetbay Tree Dr, Wendell, NC 27591

Home
$309,999
- 3 bd
- 2.5 ba
- 1,616 sqft
324 Sweetbay Tree Dr, Wendell, NC 27591
Floor plans in Magnolia Townes
About the builder - Taylor Morrison

- 315communities on Jome
- 1,456homes on Jome
Neighborhood
Home address
Schools in Wake County Schools
- Grades PK-12Privateheritage christian academy3.9 mi615 mack todd rdna
GreatSchools’ Summary Rating calculation is based on 4 of the school’s themed ratings, including test scores, student/academic progress, college readiness, and equity. This information should only be used as a reference. Jome is not affiliated with GreatSchools and does not endorse or guarantee this information. Please reach out to schools directly to verify all information and enrollment eligibility. Data provided by GreatSchools.org © 2025
Places of interest
Getting around
Noise level
A Soundscore™ rating is a number between 50 (very loud) and 100 (very quiet) that tells you how loud a location is due to environmental noise.

Considering this home?
Our expert will guide your tour, in-person or virtual
Need more information?
Text or call (888) 545-5198
Financials
Estimated monthly payment
Let us help you find your dream home
How many bedrooms are you looking for?
Similar homes nearby
Recently added communities in this area
Nearby communities in Wendell
New homes in nearby cities
More New Homes in Wendell, NC
Taylor Morrison of Carolinas,, MLS 10153079
© 2025 Doorify MLS, Inc. of North Carolina. All rights reserved. Brokers make an effort to deliver accurate information, but buyers should independently verify any information on which they will rely in a transaction. The listing broker shall not be responsible for any typographical errors, misinformation, or misprints, and they shall be held totally harmless from any damages arising from reliance upon this data. This data is provided exclusively for consumers’ personal, non-commercial use. Some IDX listings have been excluded from this IDX display. Closed (sold) listings may have been listed and/or sold by a real estate firm other than the firm(s) featured on this website. Closed data is not available until the sale of the property is recorded in the MLS. Home sale data is not an appraisal, CMA, competitive or comparative market analysis, or home valuation of any property. Listings marked with an icon are provided courtesy of the Doorify MLS, Inc. of North Carolina, Internet Data Exchange Database.
Read moreLast checked Mar 18, 4:10 am
- Jome
- New homes search
- North Carolina
- Raleigh-Durham Area
- Wake County
- Wendell
- Magnolia Townes
- 329 Sweetbay Tree Dr, Wendell, NC 27591


























