














Book your tour. Save an average of $18,473. We'll handle the rest.
We collect exclusive builder offers, book your tours, and support you from start to housewarming.
- Confirmed tours
- Get matched & compare top deals
- Expert help, no pressure
- No added fees
Estimated value based on Jome data, T&C apply
















- 3 bd
- 2.5 ba
- 1,456 sqft
4618 Lakeview Rd N, Unit 3, Charlotte, NC 28216
Why tour with Jome?
- No pressure toursTour at your own pace with no sales pressure
- Expert guidanceGet insights from our home buying experts
- Exclusive accessSee homes and deals not available elsewhere
Jome is featured in
- Townhouse
- Under construction
- $220.41/sqft
- 0.04-acre lot
Home description
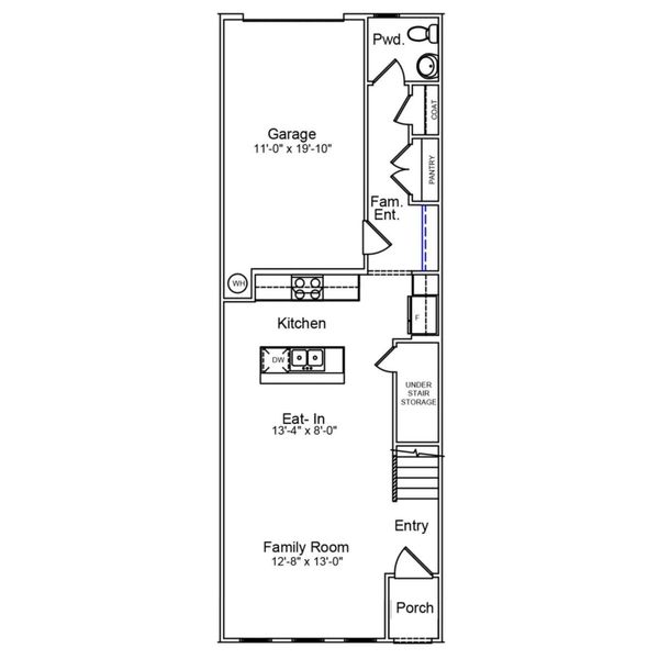
Discover the charm of this boutique townhome community built by Mungo Homes, a leader in quality craftsmanship & luxury design. This beautiful End-Unit two-story townhome features 3 bedrooms, 2.5 baths, & a rear-entry one-car garage, offering an open-concept layout with stylish upgrades finishes throughout. The main floor boasts luxury vinyl plank flooring, creating a seamless flow through the bright & airy living spaces. The chef’s kitchen is a standout, featuring a large sitting island w/ granite countertop, white cabinetry, tile backsplash, pendant lighting, & SS electric appliances! Upstairs, the spacious primary suite impresses w/ a boxed ceiling, generous walk-in closet, & a en suite bath w/ a quartz-topped dual vanity & a tiled walk-in shower. Two additional bedrooms, a full bath, & a convenient laundry closet complete the second level. Located just minutes from Uptown Charlotte, the airport, & shopping, Lakeview Village offers the perfect blend of style, comfort, & convenience. Ask about Move-in package & Financing Promotions! 2025 Parade of Homes GOLD Winner!
Mungo Homes, MLS CAR4352407
May also be listed on the Mungo Homes website
Information last verified by Jome: Today at 5:12 PM (March 2, 2026)
Home highlights
Major public research university in Charlotte offering strong STEM programs and fueling regional innovation and growth.
Book your tour. Save an average of $18,473. We'll handle the rest.
We collect exclusive builder offers, book your tours, and support you from start to housewarming.
- Confirmed tours
- Get matched & compare top deals
- Expert help, no pressure
- No added fees
Estimated value based on Jome data, T&C apply
Home details
- Property status:
- Under construction
- Neighborhood:
- Beatties Ford-Trinity
- Lot size (acres):
- 0.04
- Size:
- 1,456 sqft
- Stories:
- 2
- Beds:
- 3
- Baths:
- 2
- Half baths:
- 1
- Garage spaces:
- 1
Construction details
- Builder Name:
- Mungo Homes
- Year Built:
- 2026
Home features & finishes
- Cooling:
- Central Air
- Flooring:
- Vinyl FlooringCarpet Flooring
- Foundation Details:
- Slab
- Garage/Parking:
- Door OpenerGarageRear Entry Garage/ParkingAttached Garage
- Interior Features:
- Walk-In ClosetWalk-In Pantry
- Kitchen:
- DishwasherMicrowave OvenDisposalKitchen IslandKitchen RangeElectric Oven
- Laundry facilities:
- Laundry Facilities On Upper LevelDryerWasherLaundry Facilities In Closet
- Pets:
- Pets AllowedPets Allowed with Breed RestrictionsCat(s) Only AllowedDog(s) Only Allowed
- Property amenities:
- Irrigation
- Rooms:
- AtticOpen Concept Floorplan

Get a consultation with our New Homes Expert
- See how your home builds wealth
- Plan your home-buying roadmap
- Discover hidden gems
Utility information
- Heating:
- Heat Pump, Water Heater, Central Heating
- Utilities:
- Cable Available

Community details
Lakeview Village
by Mungo Homes, Charlotte, NC
- 19 homes
- 2 plans
- 1,456 - 1,506 sqft
View Lakeview Village details
Community amenities
- Dog Park
More homes in Lakeview Village
- Home at address 4742 Lakeview Rd N, Unit 17, Charlotte, NC 28216

Home
$286,000
- 3 bd
- 2.5 ba
- 1,456 sqft
4742 Lakeview Rd N, Unit 17, Charlotte, NC 28216
- Home at address 4742 Lakeview Rd, Charlotte, NC 28216

Cannalily
$286,000
- 3 bd
- 2.5 ba
- 1,456 sqft
4742 Lakeview Rd, Charlotte, NC 28216
- Home at address 5106 Orchardview Wy, Unit 29, Charlotte, NC 28216

Home
$293,000
- 3 bd
- 2.5 ba
- 1,456 sqft
5106 Orchardview Wy, Unit 29, Charlotte, NC 28216
- Home at address 5106 Orchardview Wy, Charlotte, NC 28216

Cannalily
$293,000
- 3 bd
- 2.5 ba
- 1,456 sqft
5106 Orchardview Wy, Charlotte, NC 28216
- Home at address 4724 Lakeview Rd, Charlotte, NC 28216

Cannalily
$296,000
- 3 bd
- 2.5 ba
- 1,456 sqft
4724 Lakeview Rd, Charlotte, NC 28216
- Home at address 4750 Lakeview Rd, Charlotte, NC 28216

Cannalily
$297,000
- 3 bd
- 2.5 ba
- 1,456 sqft
4750 Lakeview Rd, Charlotte, NC 28216
Floor plans in Lakeview Village
- View details for Clover - Genesis Value Collection

Clover - Genesis Value Collection
$285,000+- 3 bd
- 2.5 ba
- 1,505 sqft
- View details for Cannalily - Genesis Value Collection

Cannalily - Genesis Value Collection
$290,000+- 3 bd
- 2.5 ba
- 1,456 sqft
About the builder - Mungo Homes
Neighborhood
Home address
- Neighborhood:
- Beatties Ford-Trinity
- City:
- Charlotte
- County:
- Mecklenburg
- Zip Code:
- 28216
Schools in Charlotte-Mecklenburg Schools
- Grades PK-12Privatebrisbane academy2.3 mi5901 statesville rdna
GreatSchools’ Summary Rating calculation is based on 4 of the school’s themed ratings, including test scores, student/academic progress, college readiness, and equity. This information should only be used as a reference. Jome is not affiliated with GreatSchools and does not endorse or guarantee this information. Please reach out to schools directly to verify all information and enrollment eligibility. Data provided by GreatSchools.org © 2025
Places of interest
Getting around
2 nearby routes: 2 bus, 0 rail, 0 otherAir quality
Noise level
A Soundscore™ rating is a number between 50 (very loud) and 100 (very quiet) that tells you how loud a location is due to environmental noise.

Considering this home?
Our expert will guide your tour, in-person or virtual
Need more information?
Text or call (888) 488-9243
Financials
Estimated monthly payment
Let us help you find your dream home
How many bedrooms are you looking for?
Similar homes nearby
Recently added communities in this area
Nearby communities in Charlotte
New homes in nearby cities
More New Homes in Charlotte, NC
Mungo Homes, MLS CAR4352407
Based on information submitted to the MLS GRID as of 10/21/2024 2:31 PM CDT. All data is obtained from various sources and may not have been verified by the broker or MLS GRID. Supplied Open House Information is subject to change without notice. All information should be independently reviewed and verified for accuracy. Properties may or may not be listed by the office/agent presenting the information. Properties displayed may be listed or sold by various participants in the MLS. The Digital Millennium Copyright Act of 1998, 17 U.S.C. § 512 (the “DMCA”) provides recourse for copyright owners who believe that material appearing on the Internet infringes their rights under U.S. copyright law. If you believe in good faith that any content or material made available in connection with our website or services infringes your copyright, you (or your agent) may send us a notice requesting that the content or material be removed, or access to it blocked. Notices must be sent in writing by email to DMCAnotice@MLSGrid.com. The DMCA requires that your notice of alleged copyright infringement include the following information: (1) description of the copyrighted work that is the subject of claimed infringement; (2) description of the alleged infringing content and information sufficient to permit us to locate the content; (3) contact information for you, including your address, telephone number and email address; (4) a statement by you that you have a good faith belief that the content in the manner complained of is not authorized by the copyright owner, or its agent, or by the operation of any law; (5) a statement by you, signed under penalty of perjury, that the information in the notification is accurate and that you have the authority to enforce the copyrights that are claimed to be infringed; and (6) a physical or electronic signature of the copyright owner or a person authorized to act on the copyright owner’s behalf. Failure to include all of the above information may result in the delay of the processing of your complaint.
Read moreLast checked Mar 2, 5:00 pm
- Jome
- New homes search
- North Carolina
- Charlotte Metropolitan Area
- Mecklenburg County
- Charlotte
- Lakeview Village
- 4618 Lakeview Rd N, Unit 3, Charlotte, NC 28216























