














Book your tour. Save an average of $18,473. We'll handle the rest.
We collect exclusive builder offers, book your tours, and support you from start to housewarming.
- Confirmed tours
- Get matched & compare top deals
- Expert help, no pressure
- No added fees
Estimated value based on Jome data, T&C apply


















- 3 bd
- 2 ba
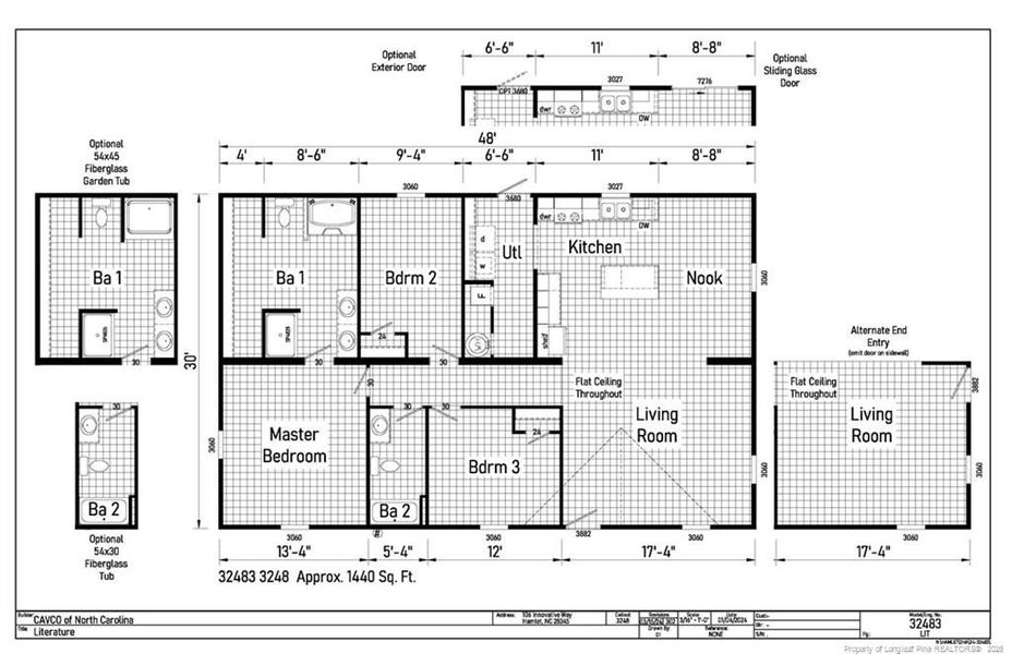
- 1,440 sqft
1875 Nc-904, Fairmont, NC 28340
Why tour with Jome?
- No pressure toursTour at your own pace with no sales pressure
- Expert guidanceGet insights from our home buying experts
- Exclusive accessSee homes and deals not available elsewhere
Jome is featured in
- Manufactured Home
- Quick move-in
- $117.36/sqft
- 1.10-acre lot
Home description
Brand New Country Living — Just Outside Fairmont, NC!Welcome home to this beautiful 2025 double-wide manufactured home perfectly situated on a spacious 1.1-acre lot in the peaceful countryside just outside charming Fairmont, North Carolina.Step inside to discover 1,440 square feet of thoughtfully designed living space featuring a bright, open, and spacious living area — perfect for relaxing or entertaining. The home sits on a permanent brick foundation, offering both durability and curb appeal.Property Highlights:2025 Double-Wide Manufactured Home1,440 Sq Ft of Living SpacePermanent Brick FoundationGiant Primary Bathroom with Double VanityOpen, Spacious Living AreaGenerous 1.1-Acre Country LotPeaceful Location Just Outside TownThe oversized primary suite features a luxurious en-suite bath with dual vanities, giving you plenty of room to unwind at the end of the day.Enjoy the best of both worlds — quiet country living with convenient access to Fairmont amenities. With plenty of room outdoors for gardening, recreation, or future additions, this property is full of potential.Don’t miss your chance to own affordable new construction in a serene rural setting! BROKER OWNED
COLDWELL BANKER PREMIER TEAM REALTY, MLS LP757828
Information last verified by Jome: Today at 4:22 AM (March 2, 2026)
Book your tour. Save an average of $18,473. We'll handle the rest.
We collect exclusive builder offers, book your tours, and support you from start to housewarming.
- Confirmed tours
- Get matched & compare top deals
- Expert help, no pressure
- No added fees
Estimated value based on Jome data, T&C apply
Home details
- Property status:
- Move-in ready
- Lot size (acres):
- 1.10
- Size:
- 1,440 sqft
- Beds:
- 3
- Baths:
- 2
Construction details
- Year Built:
- 2025
Home features & finishes
- Cooling:
- Central Air
- Flooring:
- Vinyl FlooringHardwood Flooring
- Interior Features:
- Walk-In ClosetSeparate ShowerDouble Vanity
- Kitchen:
- DishwasherKitchen Island
- Laundry facilities:
- Laundry Facilities On Main Level
- Property amenities:
- BasementDeck
- Rooms:
- Primary Bedroom On MainPrimary Bedroom Downstairs

Get a consultation with our New Homes Expert
- See how your home builds wealth
- Plan your home-buying roadmap
- Discover hidden gems
Utility information
- Heating:
- Heat Pump, Forced Air Heating
Neighborhood
Home address
Schools in Robeson County Schools
GreatSchools’ Summary Rating calculation is based on 4 of the school’s themed ratings, including test scores, student/academic progress, college readiness, and equity. This information should only be used as a reference. Jome is not affiliated with GreatSchools and does not endorse or guarantee this information. Please reach out to schools directly to verify all information and enrollment eligibility. Data provided by GreatSchools.org © 2025
Places of interest
Getting around
Air quality
Natural hazards risk
Provided by FEMA

Considering this home?
Our expert will guide your tour, in-person or virtual
Need more information?
Text or call (888) 488-9243
Financials
Estimated monthly payment
Let us help you find your dream home
How many bedrooms are you looking for?
Similar homes nearby
Recently added communities in this area
New homes in nearby cities
More New Homes in Fairmont, NC
COLDWELL BANKER PREMIER TEAM REALTY, MLS LP757828
© 2025 Doorify MLS, Inc. of North Carolina. All rights reserved. Brokers make an effort to deliver accurate information, but buyers should independently verify any information on which they will rely in a transaction. The listing broker shall not be responsible for any typographical errors, misinformation, or misprints, and they shall be held totally harmless from any damages arising from reliance upon this data. This data is provided exclusively for consumers’ personal, non-commercial use. Some IDX listings have been excluded from this IDX display. Closed (sold) listings may have been listed and/or sold by a real estate firm other than the firm(s) featured on this website. Closed data is not available until the sale of the property is recorded in the MLS. Home sale data is not an appraisal, CMA, competitive or comparative market analysis, or home valuation of any property. Listings marked with an icon are provided courtesy of the Doorify MLS, Inc. of North Carolina, Internet Data Exchange Database.
Read moreLast checked Mar 2, 4:10 am
- Jome
- New homes search
- North Carolina
- Robeson County
- Fairmont
- 1875 Nc-904, Fairmont, NC 28340




