




Book your tour. Save an average of $18,473. We'll handle the rest.
We collect exclusive builder offers, book your tours, and support you from start to housewarming.
- Confirmed tours
- Get matched & compare top deals
- Expert help, no pressure
- No added fees
Estimated value based on Jome data, T&C apply
- 4 bd
- 3 ba
- 2,662 sqft
4219 Round Table Dr, Gastonia, NC 28056
Why tour with Jome?
- No pressure toursTour at your own pace with no sales pressure
- Expert guidanceGet insights from our home buying experts
- Exclusive accessSee homes and deals not available elsewhere
Jome is featured in
- Single-Family
- Under construction
- $184.22/sqft
- 0.14-acre lot
Home description
Come see 4219 Round Table Drive located in Gastonia, North Carolina!
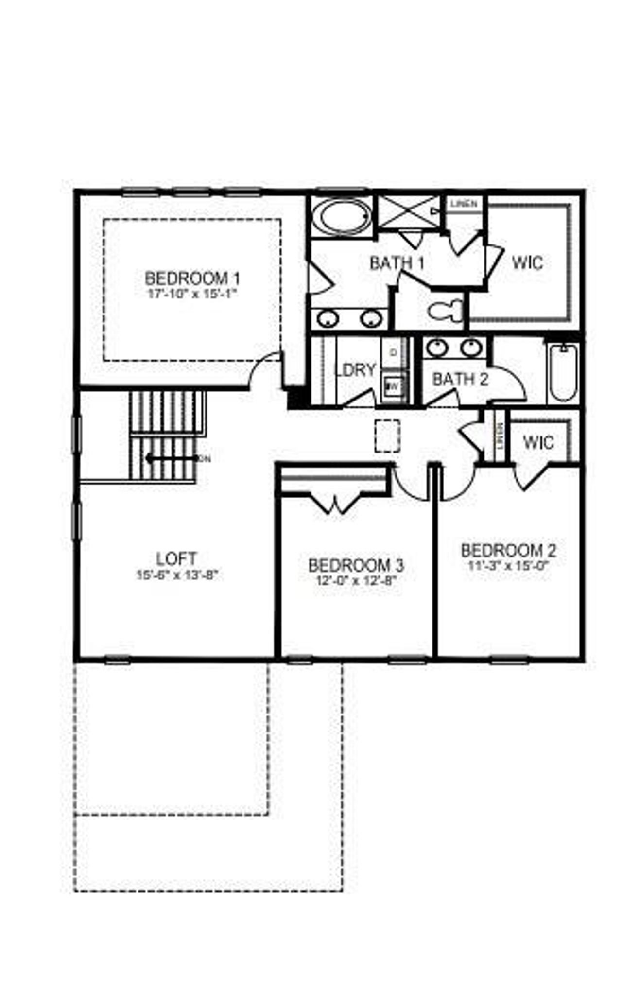
The Edisto is a spacious two-story home offered at Avalon in Gastonia, NC. The home features four bedrooms, 3 bathrooms, plus a loft as well as two-car garage.
The open concept layer connects the home beautifully, where the inviting foyer greats you upon entering the home and opens you a bedroom and bath on the main level. You are then welcomed into the heart of the home, where the kitchen, dining and large family room meet to create a relaxing atmosphere. The kitchen’s stainless-steel appliances, ample cabinet space, large pantry and a center island make it perfect for cooking and entertaining.
Upstairs you will discover a large primary suite with a walk-in closet and an en-suite bathroom with dual vanities and a separate tub and shower. The additional two bedrooms provide privacy and comfort and share access to a secondary bathroom. A loft space on the second floor can be used as a media room, home office, or playroom. Additional features include a laundry room, ample storage closets, and large windows for natural light.
With its thoughtful design, spacious layout, and modern conveniences, the Edisto is the perfect place to call home.
Pictures are representative.
DR Horton Inc, MLS CAR4346196
May also be listed on the D.R. Horton website
Information last verified by Jome: Today at 5:00 PM (February 15, 2026)
Home highlights
1300-acre outdoor hub minutes from Charlotte offering rafting, biking, climbing and festival events.
Book your tour. Save an average of $18,473. We'll handle the rest.
We collect exclusive builder offers, book your tours, and support you from start to housewarming.
- Confirmed tours
- Get matched & compare top deals
- Expert help, no pressure
- No added fees
Estimated value based on Jome data, T&C apply
Home details
- Property status:
- Under construction
- Lot size (acres):
- 0.14
- Size:
- 2,662 sqft
- Stories:
- 2
- Beds:
- 4
- Baths:
- 3
- Garage spaces:
- 2
Construction details
- Builder Name:
- D.R. Horton
- Year Built:
- 2026
Home features & finishes
- Appliances:
- Exhaust Fan
- Construction Materials:
- CementStone
- Cooling:
- Central Air
- Flooring:
- Laminate FlooringCarpet FlooringTile Flooring
- Foundation Details:
- Slab
- Garage/Parking:
- Door OpenerGarageFront Entry Garage/ParkingAttached Garage
- Home amenities:
- ENERGY STAR Certified
- Kitchen:
- DishwasherMicrowave OvenDisposalGas CooktopGas OvenKitchen Range
- Laundry facilities:
- Utility/Laundry Room
- Property amenities:
- FireplacePorch
- Rooms:
- Family RoomLiving Room
- Security system:
- Smoke DetectorCarbon Monoxide Detector

Get a consultation with our New Homes Expert
- See how your home builds wealth
- Plan your home-buying roadmap
- Discover hidden gems
Utility information
- Heating:
- Heat Pump, Zoned Heating, Water Heater, Tankless water heater
- Utilities:
- Natural Gas on Property

Community details
Avalon of Gastonia
by D.R. Horton, Gastonia, NC
- 7 homes
- 8 plans
- 1,650 - 3,212 sqft
View Avalon of Gastonia details
Community amenities
- Playground
- Club House
- Community Pool
- Game Room/Area
- Sidewalks Available
- Mountain(s) View
- Walking, Jogging, Hike Or Bike Trails
More homes in Avalon of Gastonia
- Home at address 4207 Round Table Dr, Gastonia, NC 28056

Cooper
$472,490
- 4 bd
- 3 ba
- 2,459 sqft
4207 Round Table Dr, Gastonia, NC 28056
- Home at address 4261 Round Table Dr, Gastonia, NC 28056

Ashley
$478,390
- 4 bd
- 3 ba
- 2,273 sqft
4261 Round Table Dr, Gastonia, NC 28056
- Home at address 4201 Round Table Dr, Gastonia, NC 28056

Lawson
$501,215
- 4 bd
- 3 ba
- 2,907 sqft
4201 Round Table Dr, Gastonia, NC 28056
- Home at address 4273 Round Table Dr, Gastonia, NC 28056

Morgan
$509,990
- 5 bd
- 4 ba
- 3,093 sqft
4273 Round Table Dr, Gastonia, NC 28056
- Home at address 4151 Round Table Dr, Gastonia, NC 29745

Home
$509,990
- 5 bd
- 4 ba
- 3,212 sqft
4151 Round Table Dr, Gastonia, NC 29745
Floor plans in Avalon of Gastonia
About the builder - D.R. Horton

- 1,208communities on Jome
- 9,605homes on Jome
Neighborhood
Home address
Schools in Gaston County Schools
GreatSchools’ Summary Rating calculation is based on 4 of the school’s themed ratings, including test scores, student/academic progress, college readiness, and equity. This information should only be used as a reference. Jome is not affiliated with GreatSchools and does not endorse or guarantee this information. Please reach out to schools directly to verify all information and enrollment eligibility. Data provided by GreatSchools.org © 2025
Places of interest
Getting around
Noise level
A Soundscore™ rating is a number between 50 (very loud) and 100 (very quiet) that tells you how loud a location is due to environmental noise.

Considering this home?
Our expert will guide your tour, in-person or virtual
Need more information?
Text or call (888) 486-2818
Financials
Estimated monthly payment
Let us help you find your dream home
How many bedrooms are you looking for?
Similar homes nearby
Recently added communities in this area
Nearby communities in Gastonia
New homes in nearby cities
More New Homes in Gastonia, NC
DR Horton Inc, MLS CAR4346196
Based on information submitted to the MLS GRID as of 10/21/2024 2:31 PM CDT. All data is obtained from various sources and may not have been verified by the broker or MLS GRID. Supplied Open House Information is subject to change without notice. All information should be independently reviewed and verified for accuracy. Properties may or may not be listed by the office/agent presenting the information. Properties displayed may be listed or sold by various participants in the MLS. The Digital Millennium Copyright Act of 1998, 17 U.S.C. § 512 (the “DMCA”) provides recourse for copyright owners who believe that material appearing on the Internet infringes their rights under U.S. copyright law. If you believe in good faith that any content or material made available in connection with our website or services infringes your copyright, you (or your agent) may send us a notice requesting that the content or material be removed, or access to it blocked. Notices must be sent in writing by email to DMCAnotice@MLSGrid.com. The DMCA requires that your notice of alleged copyright infringement include the following information: (1) description of the copyrighted work that is the subject of claimed infringement; (2) description of the alleged infringing content and information sufficient to permit us to locate the content; (3) contact information for you, including your address, telephone number and email address; (4) a statement by you that you have a good faith belief that the content in the manner complained of is not authorized by the copyright owner, or its agent, or by the operation of any law; (5) a statement by you, signed under penalty of perjury, that the information in the notification is accurate and that you have the authority to enforce the copyrights that are claimed to be infringed; and (6) a physical or electronic signature of the copyright owner or a person authorized to act on the copyright owner’s behalf. Failure to include all of the above information may result in the delay of the processing of your complaint.
Read moreLast checked Feb 15, 5:00 pm
- Jome
- New homes search
- North Carolina
- Charlotte Metropolitan Area
- Gaston County
- Gastonia
- Avalon of Gastonia
- 4219 Round Table Dr, Gastonia, NC 28056
































