








Book your tour. Save an average of $18,473. We'll handle the rest.
We collect exclusive builder offers, book your tours, and support you from start to housewarming.
- Confirmed tours
- Get matched & compare top deals
- Expert help, no pressure
- No added fees
Estimated value based on Jome data, T&C apply





















Why tour with Jome?
- No pressure toursTour at your own pace with no sales pressure
- Expert guidanceGet insights from our home buying experts
- Exclusive accessSee homes and deals not available elsewhere
Jome is featured in
- Townhouse
- Quick move-in
- $177.91/sqft
- $160/monthly HOA
Home description
What's Special: End Unit | Large Kitchen Island | Loft | Wooded View | No Rear Neighbors. New Construction - June Completion! Built by America's Most Trusted Home Builder. Welcome to the Willow at 325 Sweetbay Tree Drive in Magnolia Townes! This lovely end‑unit townhome features an open, airy layout designed for comfortable, effortless living. The welcoming foyer flows into the great room, kitchen, and dining area, creating a bright space you'll enjoy every day. A convenient powder room sits near the stairwell and across from the garage entry to the attached two‑car garage. Step outside to a cozy patio that extends your living space. Upstairs, the spacious primary suite includes an inviting en-suite bath and a large walk‑in closet, along with two secondary bedrooms, a secondary bath, a centrally located laundry room, and an open loft for added versatility. In the heart of Wendell, NC, this new townhome community offers a perfect blend of peaceful suburban living and the energy of nearby Raleigh. Just minutes from downtown Wendell, you'll enjoy easy access to great schools, major employers, and I‑540 and I‑87—keeping you close to everything that matters. Additional Highlights Include: a dual sink vanity in the secondary bath. Photos are for representative purposes only. MLS#10146371
Taylor Morrison of Carolinas,, MLS 10146371
May also be listed on the Taylor Morrison website
Information last verified by Jome: Today at 4:11 AM (April 2, 2026)
Home highlights
Book your tour. Save an average of $18,473. We'll handle the rest.
We collect exclusive builder offers, book your tours, and support you from start to housewarming.
- Confirmed tours
- Get matched & compare top deals
- Expert help, no pressure
- No added fees
Estimated value based on Jome data, T&C apply
Home details
- Property status:
- Move-in ready
- Lot size (acres):
- 0.09
- Size:
- 1,883 sqft
- Stories:
- 2
- Beds:
- 3
- Baths:
- 2
- Half baths:
- 1
- Garage spaces:
- 2
- Fence:
- No Fence
- Facing direction:
- Northwest
Construction details
- Builder Name:
- Taylor Morrison
- Year Built:
- 2026
- Roof:
- Roof Gutter, Shingle Roofing
Home features & finishes
- Construction Materials:
- Cement
- Flooring:
- Laminate FlooringCarpet Flooring
- Foundation Details:
- Slab
- Garage/Parking:
- Door OpenerGarageFront Entry Garage/ParkingAttached Garage
- Interior Features:
- Walk-In ClosetFoyerDouble Vanity
- Kitchen:
- DishwasherMicrowave OvenGas CooktopGranite countertopKitchen IslandGas OvenKitchen Range
- Laundry facilities:
- Laundry Facilities On Upper LevelUtility/Laundry Room
- Property amenities:
- BasementLandscapingWalk-in ShowerPatio
Room details
Master Bedroom
Dining Room
Bedroom 2

Get a consultation with our New Homes Expert
- See how your home builds wealth
- Plan your home-buying roadmap
- Discover hidden gems
Utility information
- Heating:
- Zoned Heating, Water Heater, Gas Heating
- Utilities:
- Natural Gas Available, Underground Utilities, Sewer Available

Community details
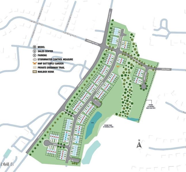
Magnolia Townes
by Taylor Morrison, Wendell, NC
- 16 homes
- 4 plans
- 1,616 - 1,885 sqft
View Magnolia Townes details
Community amenities
- Sidewalks Available
More homes in Magnolia Townes
- Home at address 318 Sweetbay Tree Dr, Wendell, NC 27591

Magnolia
Savings$284,999
- 3 bd
- 2.5 ba
- 1,616 sqft
318 Sweetbay Tree Dr, Wendell, NC 27591
- Home at address 323 Sweetbay Tree Dr, Wendell, NC 27591

Magnolia
Savings$289,999
- 3 bd
- 2.5 ba
- 1,616 sqft
323 Sweetbay Tree Dr, Wendell, NC 27591
- Home at address 335 Sweetbay Tree Dr, Wendell, NC 27591

Home
Savings$292,999
- 3 bd
- 2.5 ba
- 1,616 sqft
335 Sweetbay Tree Dr, Wendell, NC 27591
- Home at address 335 Sweetbay Tree Dr, Wendell, NC 27591

Magnolia
Savings$292,999
- 3 bd
- 2.5 ba
- 1,616 sqft
335 Sweetbay Tree Dr, Wendell, NC 27591
- Home at address 324 Sweetbay Tree Dr, Wendell, NC 27591

Home
Savings$297,999
- 3 bd
- 2.5 ba
- 1,616 sqft
324 Sweetbay Tree Dr, Wendell, NC 27591
- Home at address 324 Sweetbay Tree Dr, Wendell, NC 27591

Magnolia
Savings$297,999
- 3 bd
- 2.5 ba
- 1,616 sqft
324 Sweetbay Tree Dr, Wendell, NC 27591
Floor plans in Magnolia Townes
About the builder - Taylor Morrison

- 313communities on Jome
- 1,418homes on Jome
Neighborhood
Home address
Schools in Wake County Schools
- Grades PK-12Privateheritage christian academy4.0 mi615 mack todd rdna
GreatSchools’ Summary Rating calculation is based on 4 of the school’s themed ratings, including test scores, student/academic progress, college readiness, and equity. This information should only be used as a reference. Jome is not affiliated with GreatSchools and does not endorse or guarantee this information. Please reach out to schools directly to verify all information and enrollment eligibility. Data provided by GreatSchools.org © 2025
Places of interest
Getting around
Noise level
A Soundscore™ rating is a number between 50 (very loud) and 100 (very quiet) that tells you how loud a location is due to environmental noise.

Considering this home?
Our expert will guide your tour, in-person or virtual
Need more information?
Text or call (888) 545-5198
Financials
Estimated monthly payment
Let us help you find your dream home
How many bedrooms are you looking for?
Similar homes nearby
Recently added communities in this area
Nearby communities in Wendell
New homes in nearby cities
More New Homes in Wendell, NC
Taylor Morrison of Carolinas,, MLS 10146371
© 2025 Doorify MLS, Inc. of North Carolina. All rights reserved. Brokers make an effort to deliver accurate information, but buyers should independently verify any information on which they will rely in a transaction. The listing broker shall not be responsible for any typographical errors, misinformation, or misprints, and they shall be held totally harmless from any damages arising from reliance upon this data. This data is provided exclusively for consumers’ personal, non-commercial use. Some IDX listings have been excluded from this IDX display. Closed (sold) listings may have been listed and/or sold by a real estate firm other than the firm(s) featured on this website. Closed data is not available until the sale of the property is recorded in the MLS. Home sale data is not an appraisal, CMA, competitive or comparative market analysis, or home valuation of any property. Listings marked with an icon are provided courtesy of the Doorify MLS, Inc. of North Carolina, Internet Data Exchange Database.
Read moreLast checked Apr 2, 10:10 am
- Jome
- New homes search
- North Carolina
- Raleigh-Durham Area
- Wake County
- Wendell
- Magnolia Townes
- 325 Sweetbay Tree Dr, Wendell, NC 27591


























