














Book your tour. Save an average of $18,473. We'll handle the rest.
We collect exclusive builder offers, book your tours, and support you from start to housewarming.
- Confirmed tours
- Get matched & compare top deals
- Expert help, no pressure
- No added fees
Estimated value based on Jome data, T&C apply
Why tour with Jome?
- No pressure toursTour at your own pace with no sales pressure
- Expert guidanceGet insights from our home buying experts
- Exclusive accessSee homes and deals not available elsewhere
Jome is featured in
- Single-Family
- Ready by May 2026
- $220.41/sqft
- 5 days on Jome
Home description
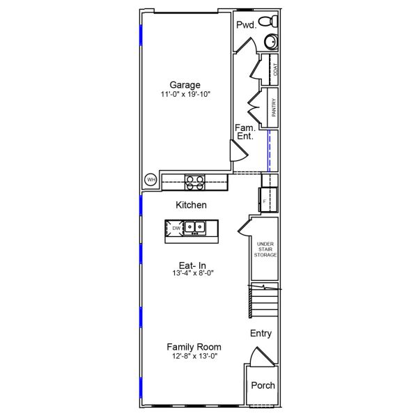
This beautifully crafted townhome offers an open and inviting layout with three bedrooms and two-and-one-half baths. The main level welcomes you into a spacious great room that flows effortlessly into the eat-in area and kitchen, where a large sitting island takes center stage alongside modern Stone Gray cabinets, quartz countertops, and stainless-steel appliances. Upstairs, the primary suite serves as a relaxing retreat with a generous walk-in closet, elegant, boxed ceiling, and dual vanities in the ensuite bath. A conveniently located laundry closet sits just outside the primary suite for added ease. Two additional bedrooms and a full bathroom complete the upper level. Near the entrance from the rear one-car garage, a built-in bench and cubby system provides smart storage and everyday organization. Enjoy the perfect balance of comfort and convenience in this low-maintenance townhome designed to meet your needs now and into the future.
May also be listed on the Mungo Homes website
Information last verified by Jome: Today at 5:49 AM (February 16, 2026)
Book your tour. Save an average of $18,473. We'll handle the rest.
We collect exclusive builder offers, book your tours, and support you from start to housewarming.
- Confirmed tours
- Get matched & compare top deals
- Expert help, no pressure
- No added fees
Estimated value based on Jome data, T&C apply
Home details
- Property status:
- Under construction
- Neighborhood:
- Beatties Ford-Trinity
- Size:
- 1,456 sqft
- Stories:
- 2
- Beds:
- 3
- Baths:
- 2
- Half baths:
- 1
- Garage spaces:
- 1
Construction details
- Builder Name:
- Mungo Homes
- Completion Date:
- May, 2026
Home features & finishes
- Garage/Parking:
- Garage
- Rooms:
- Primary Bedroom Upstairs

Get a consultation with our New Homes Expert
- See how your home builds wealth
- Plan your home-buying roadmap
- Discover hidden gems

Community details
Lakeview Village
by Mungo Homes, Charlotte, NC
- 20 homes
- 2 plans
- 1,456 - 1,506 sqft
View Lakeview Village details
More homes in Lakeview Village
- Home at address 4742 Lakeview Rd N, Unit 17, Charlotte, NC 28216

Home
$286,000
- 3 bd
- 2.5 ba
- 1,456 sqft
4742 Lakeview Rd N, Unit 17, Charlotte, NC 28216
- Home at address 4742 Lakeview Rd, Charlotte, NC 28216

Cannalily
$286,000
- 3 bd
- 2.5 ba
- 1,456 sqft
4742 Lakeview Rd, Charlotte, NC 28216
- Home at address 4754 Lakeview Rd, Charlotte, NC 28216

Cannalily
$289,000
- 3 bd
- 2.5 ba
- 1,456 sqft
4754 Lakeview Rd, Charlotte, NC 28216
- Home at address 4754 Lakeview Rd N, Unit 19, Charlotte, NC 28216

Home
$289,000
- 3 bd
- 2.5 ba
- 1,456 sqft
4754 Lakeview Rd N, Unit 19, Charlotte, NC 28216
- Home at address 5106 Orchardview Wy, Unit 29, Charlotte, NC 28216

Home
$293,000
- 3 bd
- 2.5 ba
- 1,456 sqft
5106 Orchardview Wy, Unit 29, Charlotte, NC 28216
- Home at address 5106 Orchardview Wy, Charlotte, NC 28216

Cannalily
$293,000
- 3 bd
- 2.5 ba
- 1,456 sqft
5106 Orchardview Wy, Charlotte, NC 28216
Floor plans in Lakeview Village
- View details for Clover - Genesis Value Collection

Clover - Genesis Value Collection
$285,000+- 3 bd
- 2.5 ba
- 1,505 sqft
- View details for Cannalily - Genesis Value Collection

Cannalily - Genesis Value Collection
$290,000+- 3 bd
- 2.5 ba
- 1,456 sqft
About the builder - Mungo Homes
Neighborhood
Home address
- Neighborhood:
- Beatties Ford-Trinity
- City:
- Charlotte
- County:
- Mecklenburg
- Zip Code:
- 28216
Schools in Charlotte-Mecklenburg Schools
- Grades PK-12Privatebrisbane academy2.3 mi5901 statesville rdna
GreatSchools’ Summary Rating calculation is based on 4 of the school’s themed ratings, including test scores, student/academic progress, college readiness, and equity. This information should only be used as a reference. Jome is not affiliated with GreatSchools and does not endorse or guarantee this information. Please reach out to schools directly to verify all information and enrollment eligibility. Data provided by GreatSchools.org © 2025
Places of interest
Getting around
2 nearby routes: 2 bus, 0 rail, 0 otherAir quality
Noise level
A Soundscore™ rating is a number between 50 (very loud) and 100 (very quiet) that tells you how loud a location is due to environmental noise.

Considering this home?
Our expert will guide your tour, in-person or virtual
Need more information?
Text or call (888) 488-9243
Financials
Estimated monthly payment
Let us help you find your dream home
How many bedrooms are you looking for?
Similar homes nearby
Recently added communities in this area
Nearby communities in Charlotte
New homes in nearby cities
More New Homes in Charlotte, NC
- Jome
- New homes search
- North Carolina
- Charlotte Metropolitan Area
- Mecklenburg County
- Charlotte
- Lakeview Village
- 4618 Lakeview Rd, Charlotte, NC 28216






















