














Book your tour. Save an average of $18,473. We'll handle the rest.
- Confirmed tours
- Get matched & compare top deals
- Expert help, no pressure
- No added fees
Estimated value based on Jome data, T&C apply
















- 3 bd
- 1 ba
- 1,334 sqft
1304 Carbon City Rd, Unit 2, Morganton, NC 28655
Why tour with Jome?
- No pressure toursTour at your own pace with no sales pressure
- Expert guidanceGet insights from our home buying experts
- Exclusive accessSee homes and deals not available elsewhere
Jome is featured in
- Single-Family
- Under construction
- $184.41/sqft
- 0.40-acre lot
Home description
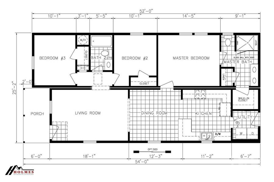
PRE CONSTRUCTION OFF FRAME MODULAR HOME ON hwy 70 Morganton NC property has city water city sewer level lot with . home has 3 bedrooms 2 baths living area open kitchen concept covered front porch Off Frame Modular 1,334 Square Feet 9' Smooth Ceilings 2"x6" Exterior Walls 16" On Center 2"x10" Floor Joists 16" On Center Insulated Single-Hung Windows 7/12 Roof 30 Year Architectural Shingles Block/Stucco Foundation 6'x12' Covered Wooden Front Porch & 4'x4' Wooden Back Deck Ceramic Backsplash in Kitchen & Baths Heat pump
Discounts to Veterans and First Responders an Medical workers
PRE CONSTRUCTION OFF FRAME MODULAR HOME ON hwy 70 Morganton NC property has city water city sewer level lot with . home has 3 bedrooms 2 baths living area open kitchen concept covered front porch Off Frame Modular 1,334 Square Feet 9' Smooth Ceilings 2"x6" Exterior Walls 16" On Center 2"x10" Floor Joists 16" On Center Insulated Single-Hung Windows 7/12 Roof 30 Year Architectural Shingles Block/Stucco Foundation 6'x12' Covered Wooden Front Porch & 4'x4' Wooden Back Deck Ceramic Backsplash in Kitchen & Baths Heat pump
Discounts to Veterans and First Responders an Medical workers
N C Land and Lots LLC, MLS CAR4340810
Information last verified by Jome: Today at 12:10 AM (February 3, 2026)
Book your tour. Save an average of $18,473. We'll handle the rest.
We collect exclusive builder offers, book your tours, and support you from start to housewarming.
- Confirmed tours
- Get matched & compare top deals
- Expert help, no pressure
- No added fees
Estimated value based on Jome data, T&C apply
Home details
- Property status:
- Under construction
- Lot size (acres):
- 0.40
- Size:
- 1,334 sqft
- Stories:
- 1
- Beds:
- 3
- Baths:
- 1
Construction details
- Year Built:
- 2026
Home features & finishes
- Foundation Details:
- Crawl Space
- Laundry facilities:
- Utility/Laundry Room
- Rooms:
- Primary Bedroom On MainPrimary Bedroom Downstairs

Get a consultation with our New Homes Expert
- See how your home builds wealth
- Plan your home-buying roadmap
- Discover hidden gems
Utility information
- Heating:
- Heat Pump
- Utilities:
- Underground Utilities
Neighborhood
Home address
Schools in Burke County Schools
GreatSchools’ Summary Rating calculation is based on 4 of the school’s themed ratings, including test scores, student/academic progress, college readiness, and equity. This information should only be used as a reference. Jome is not affiliated with GreatSchools and does not endorse or guarantee this information. Please reach out to schools directly to verify all information and enrollment eligibility. Data provided by GreatSchools.org © 2025
Places of interest
Getting around
Natural hazards risk
Provided by FEMA

Considering this home?
Our expert will guide your tour, in-person or virtual
Need more information?
Text or call (888) 486-2818
Financials
Estimated monthly payment
Let us help you find your dream home
How many bedrooms are you looking for?
Similar homes nearby
Recently added communities in this area
Nearby communities in Morganton
New homes in nearby cities
More New Homes in Morganton, NC
N C Land and Lots LLC, MLS CAR4340810
Based on information submitted to the MLS GRID as of 10/21/2024 2:31 PM CDT. All data is obtained from various sources and may not have been verified by the broker or MLS GRID. Supplied Open House Information is subject to change without notice. All information should be independently reviewed and verified for accuracy. Properties may or may not be listed by the office/agent presenting the information. Properties displayed may be listed or sold by various participants in the MLS. The Digital Millennium Copyright Act of 1998, 17 U.S.C. § 512 (the “DMCA”) provides recourse for copyright owners who believe that material appearing on the Internet infringes their rights under U.S. copyright law. If you believe in good faith that any content or material made available in connection with our website or services infringes your copyright, you (or your agent) may send us a notice requesting that the content or material be removed, or access to it blocked. Notices must be sent in writing by email to DMCAnotice@MLSGrid.com. The DMCA requires that your notice of alleged copyright infringement include the following information: (1) description of the copyrighted work that is the subject of claimed infringement; (2) description of the alleged infringing content and information sufficient to permit us to locate the content; (3) contact information for you, including your address, telephone number and email address; (4) a statement by you that you have a good faith belief that the content in the manner complained of is not authorized by the copyright owner, or its agent, or by the operation of any law; (5) a statement by you, signed under penalty of perjury, that the information in the notification is accurate and that you have the authority to enforce the copyrights that are claimed to be infringed; and (6) a physical or electronic signature of the copyright owner or a person authorized to act on the copyright owner’s behalf. Failure to include all of the above information may result in the delay of the processing of your complaint.
Read moreLast checked Feb 3, 5:00 pm
- Jome
- New homes search
- North Carolina
- Burke County
- Morganton
- 1304 Carbon City Rd, Unit 2, Morganton, NC 28655

















