




- 3 bd
- 2.5 ba
- 2,091 sqft
1206 Westerland Wy, Durham, NC 27703
- Single-Family
- $231.95/sqft
- $105/monthly HOA
- 105 days on Jome
New Homes for Sale Near 1206 Westerland Wy, Durham, NC 27703
About this Home
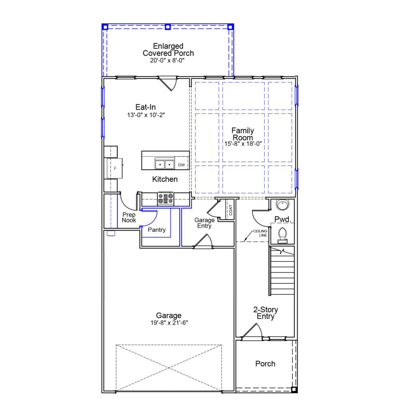
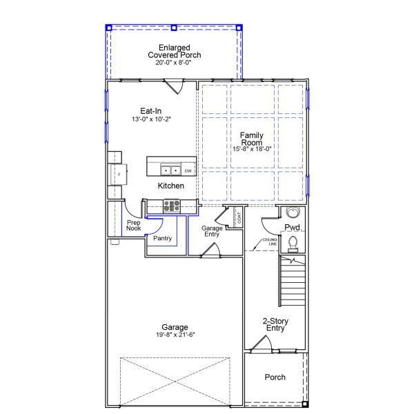
The Cameron welcomes you with a stunning two-story entryway that sets the tone for this elegant and spacious design. Enjoy indoor-outdoor living with an enlarged back porch, perfect for entertaining or relaxing. The primary suite features boxed ceilings and two large walk-in closets, while a versatile loft adds flexible living space upstairs for work or play.
May also be listed on the Mungo Homes website
Information last verified by Jome: Thursday at 5:39 AM (April 16, 2026)
Home details
- Property status:
- Sold
- Size:
- 2,091 sqft
- Stories:
- 2
- Beds:
- 3
- Baths:
- 2
- Half baths:
- 1
- Garage spaces:
- 2

Floor plan details
Cameron - Vanguard Collection
- 3 bd
- 2.5 ba
- 2,082 sqft
View Cameron - Vanguard Collection details
Construction details
- Builder Name:
- Mungo Homes
- Completion Date:
- June, 2026
Home features & finishes
- Garage/Parking:
- GarageAttached Garage
- Interior Features:
- Walk-In ClosetFoyerLoft
- Laundry facilities:
- Utility/Laundry Room
- Property amenities:
- Porch
- Rooms:
- Flex RoomKitchenOffice/StudyDining RoomFamily RoomPrimary Bedroom Upstairs

Community details
Sweetbrier
by Mungo Homes, Durham, NC
- 32 homes
- 18 plans
- 1,671 - 4,009 sqft
View Sweetbrier details
More homes in Sweetbrier
- Home at address 927 Westerland Wy, Unit 76, Durham, NC 27703
Savings$375,000
Move-in ready- 3 bd
- 2.5 ba
- 1,974 sqft
927 Westerland Wy, Unit 76, Durham, NC 27703
- Home at address 919 Westerland Wy, Durham, NC 27703
Savings$375,661
Move-in ready- 3 bd
- 2.5 ba
- 1,947 sqft
919 Westerland Wy, Durham, NC 27703
- Home at address 915 Westerland Wy, Durham, NC 27703
Savings$376,025
Move-in ready- 3 bd
- 2.5 ba
- 1,946 sqft
915 Westerland Wy, Durham, NC 27703
- Home at address 917 Westerland Wy, Unit 80, Durham, NC 27703
Savings$378,943
Move-in ready- 3 bd
- 2.5 ba
- 1,974 sqft
917 Westerland Wy, Unit 80, Durham, NC 27703
- Home at address 941 Westerland Wy, Durham, NC 27703
Savings$380,000
Move-in ready- 3 bd
- 2.5 ba
- 1,946 sqft
941 Westerland Wy, Durham, NC 27703
- Home at address 953 Westerland Wy, Durham, NC 27703
Savings$385,000
Move-in ready- 3 bd
- 2.5 ba
- 1,946 sqft
953 Westerland Wy, Durham, NC 27703
Floor plans in Sweetbrier
- View details for Dahlia - Genesis Value Collection

Dahlia - Genesis Value Collection
$323,000+- 3 bd
- 2.5 ba
- 1,672 sqft
- View details for Foxglove - Genesis Value Collection

Foxglove - Genesis Value Collection
$324,000+- 3 bd
- 2.5 ba
- 1,671 sqft
About the builder - Mungo Homes
Neighborhood
Home address
Schools in Durham Public Schools
GreatSchools’ Summary Rating calculation is based on 4 of the school’s themed ratings, including test scores, student/academic progress, college readiness, and equity. This information should only be used as a reference. Jome is not affiliated with GreatSchools and does not endorse or guarantee this information. Please reach out to schools directly to verify all information and enrollment eligibility. Data provided by GreatSchools.org © 2025
Places of interest
Getting around
Air quality
Financials
Nearby communities in Durham
Homes in Durham Neighborhoods
- Morehead Hill
- Watts Hospital-Hillandale
- Downtown
- Omah Street
- Northgate Park
- Warehouse District
- Pleasant Drive
- Forest Hills
- Oak Grove Community
- Scarsdale Village
- Hope Valley
- Walltown
- Northeast Hills
- Old East Durham
- Colvard Farms
- Milan Woods
- Merrick Moore
- Lyon Park
- Lochaven Hills
- Duke Homestead
- Tuscaloosa-Lakewood
- Old North Durham
- Cleveland-Holloway
- Hope Valley Farms
- Southside / St. Teresa
Homes in Durham by Mungo Homes
Recently added communities in this area
Other Builders in Durham, NC
Nearby sold homes
New homes in nearby cities
More New Homes in Durham, NC
- Jome
- New homes search
- North Carolina
- Raleigh-Durham Area
- Durham County
- Durham
- Sweetbrier
- 1206 Westerland Wy, Durham, NC 27703






































































