




- 3 bd
- 2.5 ba
- 1,817 sqft
4315 Black Ct, Harrisburg, NC 28075
- Single-Family
- $155/monthly HOA
- 96 days on Jome
New Homes for Sale Near 4315 Black Ct, Harrisburg, NC 28075
About this Home
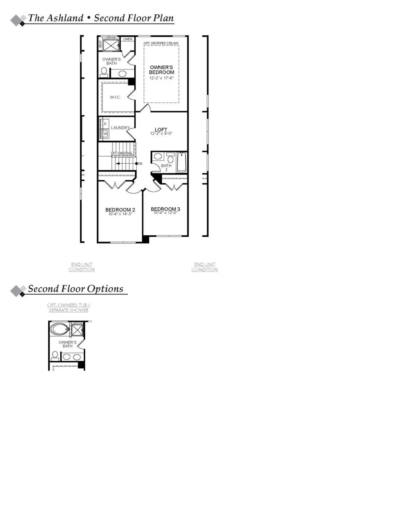
The Ashland is a three-bedroom, two-and-a-half-bath townhome with a one-car garage, spacious family room, kitchen with an island and large pantry, and a covered rear porch. All bedrooms are located on the second level, including the primary bedroom with a walk-in closet and large shower, an additional full bath, a loft area, and a laundry room.
May also be listed on the Eastwood Homes website
Information last verified by Jome: Today at 6:28 AM (April 4, 2026)
Home details
- Property status:
- Sold
- Size:
- 1,817 sqft
- Stories:
- 2
- Beds:
- 3
- Baths:
- 2
- Half baths:
- 1
- Garage spaces:
- 1
Construction details
- Builder Name:
- Eastwood Homes
Home features & finishes
- Garage/Parking:
- GarageAttached Garage
- Interior Features:
- FoyerTray CeilingLoft
- Kitchen:
- Kitchen Island
- Property amenities:
- Porch
- Rooms:
- Kitchen

Community details
Harrisburg Village Townhomes
by Eastwood Homes, Harrisburg, NC
- 10 homes
- 1,732 - 2,026 sqft
View Harrisburg Village Townhomes details
More homes in Harrisburg Village Townhomes
- Home at address 4269 Black Ct, Harrisburg, NC 28075
Savings$371,400
Move-in ready- 3 bd
- 2.5 ba
- 1,732 sqft
4269 Black Ct, Harrisburg, NC 28075
- Home at address 4263 Black Ct, Harrisburg, NC 28075
Savings$372,400
Move-in ready- 3 bd
- 2.5 ba
- 1,732 sqft
4263 Black Ct, Harrisburg, NC 28075
- Home at address 4327 Black Ct, Harrisburg, NC 28075
Savings$382,400
Under construction- 3 bd
- 2.5 ba
- 1,817 sqft
4327 Black Ct, Harrisburg, NC 28075
- Home at address 4321 Black Ct, Harrisburg, NC 28075
Savings$387,400
Under construction- 3 bd
- 2.5 ba
- 1,732 sqft
4321 Black Ct, Harrisburg, NC 28075
- Home at address 4257 Black Ct, Harrisburg, NC 28075
Savings$387,400
Move-in ready- 3 bd
- 2.5 ba
- 1,817 sqft
4257 Black Ct, Harrisburg, NC 28075
- Home at address 4347 Black Ct, Harrisburg, NC 28075
Savings$402,400
Under construction- 3 bd
- 2.5 ba
- 1,817 sqft
4347 Black Ct, Harrisburg, NC 28075
About the builder - Eastwood Homes
Neighborhood
Home address
- City:
- Harrisburg
- County:
- Cabarrus
- Zip Code:
- 28075
Schools in Cabarrus County Schools
GreatSchools’ Summary Rating calculation is based on 4 of the school’s themed ratings, including test scores, student/academic progress, college readiness, and equity. This information should only be used as a reference. Jome is not affiliated with GreatSchools and does not endorse or guarantee this information. Please reach out to schools directly to verify all information and enrollment eligibility. Data provided by GreatSchools.org © 2025
Places of interest
Getting around
Noise level
A Soundscore™ rating is a number between 50 (very loud) and 100 (very quiet) that tells you how loud a location is due to environmental noise.
Financials
Nearby communities in Harrisburg
Homes in Harrisburg by Eastwood Homes
Recently added communities in this area
Other Builders in Harrisburg, NC
Nearby sold homes
New homes in nearby cities
More New Homes in Harrisburg, NC
- Jome
- New homes search
- North Carolina
- Charlotte Metropolitan Area
- Cabarrus County
- Harrisburg
- Harrisburg Village Townhomes
- 4315 Black Ct, Harrisburg, NC 28075

























































