




Book your tour. Save an average of $18,473. We'll handle the rest.
- Confirmed tours
- Get matched & compare top deals
- Expert help, no pressure
- No added fees
Estimated value based on Jome data, T&C apply
- 4 bd
- 3.5 ba
- 2,560 sqft
278 Steelwood St, Raeford, NC 28376
Why tour with Jome?
- No pressure toursTour at your own pace with no sales pressure
- Expert guidanceGet insights from our home buying experts
- Exclusive accessSee homes and deals not available elsewhere
Jome is featured in
- Single-Family
- Under construction
- $154.28/sqft
- $300/annual HOA
Home description
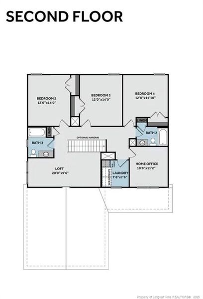
Awesome home designed for a growing family! The popular Clayton floorplan offers 4 bedrooms, 3.5 baths, plus a flex room, spacious loft, and dedicated home office. The open-concept layout features a large great room that flows seamlessly into the kitchen and out to the covered back porch—perfect for everyday living and entertaining. The kitchen has an island with sink, stainless steel appliances, pantry, and ample cabinet space. A first-floor flex room with French doors sits just off the foyer, along with a convenient mudroom at the garage entry. The primary suite is located on the main level and features dual vanities, a private water closet, garden tub, separate shower, and a generous walk-in closet. Upstairs you'll find a large loft, home office, laundry room, three additional bedrooms, two full baths, and multiple linen closets for extra storage. Located in a gated community offering sidewalks, a dog park, playground, walking trail, and covered picnic area—this home truly has it all!
COLDWELL BANKER ADVANTAGE - FAYETTEVILLE, MLS LP754872
Information last verified by Jome: Today at 4:13 PM (December 22, 2025)
Home highlights
Tight-knit military community with modern homes, schools, and amenities near Fort Bragg's airborne operations.
Book your tour. Save an average of $18,473. We'll handle the rest.
We collect exclusive builder offers, book your tours, and support you from start to housewarming.
- Confirmed tours
- Get matched & compare top deals
- Expert help, no pressure
- No added fees
Estimated value based on Jome data, T&C apply
Home details
- Property status:
- Under construction
- Lot size (acres):
- 0.20
- Size:
- 2,560 sqft
- Stories:
- 2
- Beds:
- 4
- Baths:
- 3
- Half baths:
- 1
- Garage spaces:
- 2
Construction details
- Year Built:
- 2026
Home features & finishes
- Cooling:
- Central Air
- Flooring:
- Vinyl Flooring
- Garage/Parking:
- GarageAttached Garage
- Interior Features:
- Walk-In ClosetFoyerSeparate ShowerDouble Vanity
- Kitchen:
- DishwasherMicrowave OvenGranite countertopKitchen IslandKitchen Range
- Laundry facilities:
- Laundry Facilities On Upper LevelDryerWasher
- Property amenities:
- BasementPatio
- Rooms:
- Primary Bedroom On MainPrimary Bedroom Downstairs
Utility information
- Heating:
- Heat Pump
Community amenities
- Sidewalks Available
Neighborhood
Home address
Schools in Hoke County Schools
GreatSchools’ Summary Rating calculation is based on 4 of the school’s themed ratings, including test scores, student/academic progress, college readiness, and equity. This information should only be used as a reference. Jome is not affiliated with GreatSchools and does not endorse or guarantee this information. Please reach out to schools directly to verify all information and enrollment eligibility. Data provided by GreatSchools.org © 2025
Places of interest
Getting around
Natural hazards risk
Climate hazards can impact homes and communities, with risks varying by location. These scores reflect the potential impact of natural disasters and climate-related risks on Hoke County
Provided by FEMA

Considering this home?
Our expert will guide your tour, in-person or virtual
Need more information?
Text or call (888) 486-2818
Financials
Similar homes nearby
Recently added communities in this area
Nearby communities in Raeford
New homes in nearby cities
More New Homes in Raeford, NC
COLDWELL BANKER ADVANTAGE - FAYETTEVILLE, MLS LP754872
© 2025 Doorify MLS, Inc. of North Carolina. All rights reserved. Brokers make an effort to deliver accurate information, but buyers should independently verify any information on which they will rely in a transaction. The listing broker shall not be responsible for any typographical errors, misinformation, or misprints, and they shall be held totally harmless from any damages arising from reliance upon this data. This data is provided exclusively for consumers’ personal, non-commercial use. Some IDX listings have been excluded from this IDX display. Closed (sold) listings may have been listed and/or sold by a real estate firm other than the firm(s) featured on this website. Closed data is not available until the sale of the property is recorded in the MLS. Home sale data is not an appraisal, CMA, competitive or comparative market analysis, or home valuation of any property. Listings marked with an icon are provided courtesy of the Doorify MLS, Inc. of North Carolina, Internet Data Exchange Database.
Read moreLast checked Dec 22, 4:10 pm
- Jome
- New homes search
- North Carolina
- Hoke County
- Raeford
- 278 Steelwood St, Raeford, NC 28376



























