






Book your tour. Save an average of $18,473. We'll handle the rest.
We collect exclusive builder offers, book your tours, and support you from start to housewarming.
- Confirmed tours
- Get matched & compare top deals
- Expert help, no pressure
- No added fees
Estimated value based on Jome data, T&C apply



- 3 bd
- 2 ba
- 1,120 sqft
48 Twinbrook Ln, Maggie Valley, NC 28751
Why tour with Jome?
- No pressure toursTour at your own pace with no sales pressure
- Expert guidanceGet insights from our home buying experts
- Exclusive accessSee homes and deals not available elsewhere
Jome is featured in
- Single-Family
- Under construction
- $321.34/sqft
- 0.25-acre lot
Home description
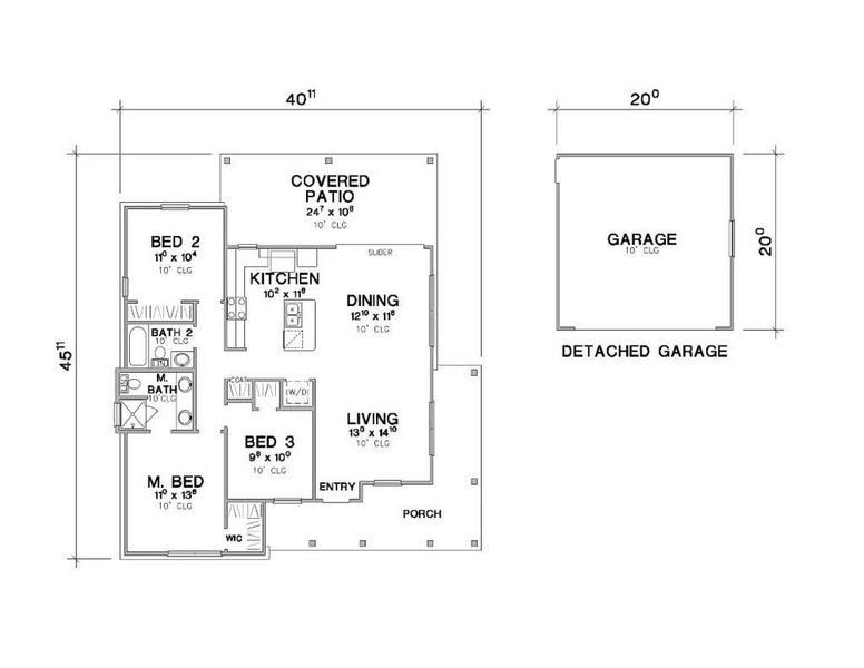
Is there a new construction cottage in Maggie Valley with porches, a creek, and resort perks? Yes—this 2026 proposed build in Twinbrook Resort blends timeless mountain style with updated comfort. Offering 1,155 sq ft on one level, the home features 3 bedrooms, 2 full baths, and a spacious open living plan with 10’ ceilings, LVP flooring, stainless steel appliances, and granite countertops. The kitchen includes a large island, breakfast nook, and eating bar, and flows out to a covered rear patio with views toward the creek-lined backyard. Set on a .25-acre lot bordered by a mountain stream, this plan also includes a charming covered front porch and optional 20x20 detached garage (available at added cost). Perfect for empty nesters, vacationers, or STR buyers looking for low-maintenance living with a premium feel. HOA is $1,200/year and includes access to the clubhouse, indoor pool, and hot tub. Zoned for Jonathan Valley Elementary, Waynesville Middle, and Tuscola High, and located just minutes from shops, dining, and the Blue Ridge Parkway.
Better Homes and Gardens Real Estate Heritage, MLS CAR4329489
Information last verified by Jome: Today at 12:03 AM (March 20, 2026)
Home highlights
Book your tour. Save an average of $18,473. We'll handle the rest.
We collect exclusive builder offers, book your tours, and support you from start to housewarming.
- Confirmed tours
- Get matched & compare top deals
- Expert help, no pressure
- No added fees
Estimated value based on Jome data, T&C apply
Home details
- Property status:
- Under construction
- Lot size (acres):
- 0.25
- Size:
- 1,120 sqft
- Stories:
- 1
- Beds:
- 3
- Baths:
- 2
- Garage spaces:
- 1
Construction details
- Year Built:
- 2026
Home features & finishes
- Construction Materials:
- Cement
- Cooling:
- Ceiling Fan(s)Central Air
- Flooring:
- Vinyl Flooring
- Foundation Details:
- Crawl Space
- Garage/Parking:
- GarageAttached Garage
- Kitchen:
- DishwasherMicrowave OvenRefrigeratorKitchen RangeElectric Oven
- Laundry facilities:
- Utility/Laundry Room
- Property amenities:
- Porch
- Rooms:
- Primary Bedroom On MainPrimary Bedroom Downstairs

Get a consultation with our New Homes Expert
- See how your home builds wealth
- Plan your home-buying roadmap
- Discover hidden gems
Utility information
- Heating:
- Heat Pump, Central Heating
- Utilities:
- Underground Utilities, Internet Cable, Cable Available
Community amenities
- Club House
- Community Pool
- Community Hot Tub
Neighborhood
Home address
- City:
- Maggie Valley
- County:
- Haywood
- Zip Code:
- 28751
Schools in Haywood County Schools
- Grades 02-12Privatest joseph academy1.4 mi175 rich cove rdna
- Grades 08-12Privateacademy at soar, soar inc.4.9 mi112 virginia ave bldg b.na
GreatSchools’ Summary Rating calculation is based on 4 of the school’s themed ratings, including test scores, student/academic progress, college readiness, and equity. This information should only be used as a reference. Jome is not affiliated with GreatSchools and does not endorse or guarantee this information. Please reach out to schools directly to verify all information and enrollment eligibility. Data provided by GreatSchools.org © 2025
Places of interest
Getting around
Air quality
Natural hazards risk
Provided by FEMA

Considering this home?
Our expert will guide your tour, in-person or virtual
Need more information?
Text or call (888) 545-5198
Financials
Estimated monthly payment
Let us help you find your dream home
How many bedrooms are you looking for?
Similar homes nearby
Recently added communities in this area
Nearby communities in Maggie Valley
New homes in nearby cities
More New Homes in Maggie Valley, NC
Better Homes and Gardens Real Estate Heritage, MLS CAR4329489
Based on information submitted to the MLS GRID as of 10/21/2024 2:31 PM CDT. All data is obtained from various sources and may not have been verified by the broker or MLS GRID. Supplied Open House Information is subject to change without notice. All information should be independently reviewed and verified for accuracy. Properties may or may not be listed by the office/agent presenting the information. Properties displayed may be listed or sold by various participants in the MLS. The Digital Millennium Copyright Act of 1998, 17 U.S.C. § 512 (the “DMCA”) provides recourse for copyright owners who believe that material appearing on the Internet infringes their rights under U.S. copyright law. If you believe in good faith that any content or material made available in connection with our website or services infringes your copyright, you (or your agent) may send us a notice requesting that the content or material be removed, or access to it blocked. Notices must be sent in writing by email to DMCAnotice@MLSGrid.com. The DMCA requires that your notice of alleged copyright infringement include the following information: (1) description of the copyrighted work that is the subject of claimed infringement; (2) description of the alleged infringing content and information sufficient to permit us to locate the content; (3) contact information for you, including your address, telephone number and email address; (4) a statement by you that you have a good faith belief that the content in the manner complained of is not authorized by the copyright owner, or its agent, or by the operation of any law; (5) a statement by you, signed under penalty of perjury, that the information in the notification is accurate and that you have the authority to enforce the copyrights that are claimed to be infringed; and (6) a physical or electronic signature of the copyright owner or a person authorized to act on the copyright owner’s behalf. Failure to include all of the above information may result in the delay of the processing of your complaint.
Read moreLast checked Mar 20, 11:00 am
- Jome
- New homes search
- North Carolina
- Haywood County
- Maggie Valley
- 48 Twinbrook Ln, Maggie Valley, NC 28751


















