













Book your tour. Save an average of $18,473. We'll handle the rest.
We collect exclusive builder offers, book your tours, and support you from start to housewarming.
- Confirmed tours
- Get matched & compare top deals
- Expert help, no pressure
- No added fees
Estimated value based on Jome data, T&C apply







Why tour with Jome?
- No pressure toursTour at your own pace with no sales pressure
- Expert guidanceGet insights from our home buying experts
- Exclusive accessSee homes and deals not available elsewhere
Jome is featured in
- Townhouse
- Ready by May 2026
- $232.76/sqft
- $206/monthly HOA
Home description
Quick Move In - Live Close to Everything!
Just 1 mile from Uptown Charlotte and less than a mile from Camp North End, this townhome puts you in the heart of it all. Easy access to I-77 and I-85 means stress-free commuting.
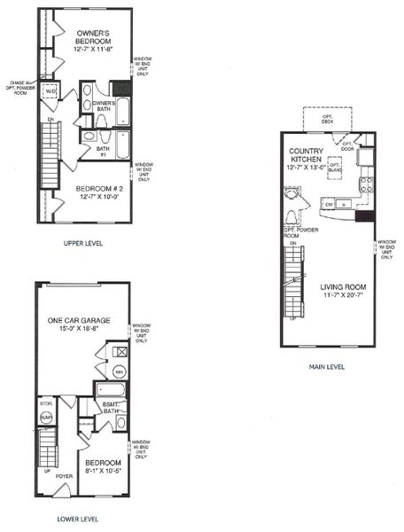
Inside, you’ll find a smart floor plan with 3 bedrooms—each with its own private bath—plus a convenient powder room for guests. Perfect for families or roommates!
The modern kitchen comes fully equipped with stainless steel appliances and a spacious island, quartz countertops, making cooking and entertaining a breeze. Enjoy LVP flooring on the main level, LED lighting package in the Great Room, a deck for outdoor relaxation, and a one-car garage plus driveway parking.
Top it off with a community green space for gatherings and fresh air. Whether you’re looking for a primary home or an investment opportunity, this townhome delivers style, convenience, and value.. Overall, this townhome combines functionality with modern amenities. Primary residence or investment opportunity. - Photos are for illustrative purposes. Under construction.
highlighted features: Ceiling Fan Rough-in
Smith Capital Partners LLC, MLS CAR4328847
May also be listed on the Ryan Homes website
Information last verified by Jome: Today at 12:06 AM (March 17, 2026)
Home highlights
Popular Charlotte park with walking trails, playgrounds, and gardens near upscale neighborhoods and top schools.
Book your tour. Save an average of $18,473. We'll handle the rest.
We collect exclusive builder offers, book your tours, and support you from start to housewarming.
- Confirmed tours
- Get matched & compare top deals
- Expert help, no pressure
- No added fees
Estimated value based on Jome data, T&C apply
Home details
- Property status:
- Under construction
- Neighborhood:
- Double Oaks
- Lot size (acres):
- 0.03
- Size:
- 1,420 sqft
- Stories:
- 3+
- Beds:
- 3
- Baths:
- 3
- Half baths:
- 1
- Garage spaces:
- 1
Construction details
- Builder Name:
- Ryan Homes
- Completion Date:
- May, 2026
- Year Built:
- 2026
Home features & finishes
- Appliances:
- Ice Maker
- Construction Materials:
- CementBrick
- Cooling:
- Central Air
- Flooring:
- Vinyl FlooringCarpet Flooring
- Foundation Details:
- Slab
- Garage/Parking:
- Door OpenerGarageRear Entry Garage/ParkingAttached Garage
- Interior Features:
- Walk-In ClosetFoyerPantry
- Kitchen:
- DishwasherMicrowave OvenRefrigeratorDisposalKitchen IslandKitchen RangeElectric Oven
- Laundry facilities:
- Laundry Facilities On Upper LevelDryerWasherLaundry Facilities In ClosetUtility/Laundry Room
- Pets:
- Pets Allowed
- Property amenities:
- DeckPorch
- Rooms:
- KitchenPowder RoomFamily RoomLiving RoomOpen Concept FloorplanPrimary Bedroom Upstairs
- Security system:
- Smoke DetectorCarbon Monoxide Detector

Get a consultation with our New Homes Expert
- See how your home builds wealth
- Plan your home-buying roadmap
- Discover hidden gems
Utility information
- Heating:
- Electric Heating, Water Heater
- Utilities:
- Underground Utilities, Cable Available

Community details
Northerly
by Ryan Homes, Charlotte, NC
- 1 home
- 2 plans
- 1,420 - 1,601 sqft
View Northerly details
Community amenities
- Dog Park
- Sidewalks Available
Floor plans in Northerly
About the builder - Ryan Homes
Neighborhood
Home address
- Neighborhood:
- Double Oaks
- City:
- Charlotte
- County:
- Mecklenburg
- Zip Code:
- 28206
Schools in Charlotte-Mecklenburg Schools
GreatSchools’ Summary Rating calculation is based on 4 of the school’s themed ratings, including test scores, student/academic progress, college readiness, and equity. This information should only be used as a reference. Jome is not affiliated with GreatSchools and does not endorse or guarantee this information. Please reach out to schools directly to verify all information and enrollment eligibility. Data provided by GreatSchools.org © 2025
Places of interest
Getting around
4 nearby routes: 4 bus, 0 rail, 0 otherAir quality
Noise level
A Soundscore™ rating is a number between 50 (very loud) and 100 (very quiet) that tells you how loud a location is due to environmental noise.

Considering this home?
Our expert will guide your tour, in-person or virtual
Need more information?
Text or call (888) 545-5198
Financials
Estimated monthly payment
Let us help you find your dream home
How many bedrooms are you looking for?
Similar homes nearby
Recently added communities in this area
Nearby communities in Charlotte
New homes in nearby cities
More New Homes in Charlotte, NC
Smith Capital Partners LLC, MLS CAR4328847
Based on information submitted to the MLS GRID as of 10/21/2024 2:31 PM CDT. All data is obtained from various sources and may not have been verified by the broker or MLS GRID. Supplied Open House Information is subject to change without notice. All information should be independently reviewed and verified for accuracy. Properties may or may not be listed by the office/agent presenting the information. Properties displayed may be listed or sold by various participants in the MLS. The Digital Millennium Copyright Act of 1998, 17 U.S.C. § 512 (the “DMCA”) provides recourse for copyright owners who believe that material appearing on the Internet infringes their rights under U.S. copyright law. If you believe in good faith that any content or material made available in connection with our website or services infringes your copyright, you (or your agent) may send us a notice requesting that the content or material be removed, or access to it blocked. Notices must be sent in writing by email to DMCAnotice@MLSGrid.com. The DMCA requires that your notice of alleged copyright infringement include the following information: (1) description of the copyrighted work that is the subject of claimed infringement; (2) description of the alleged infringing content and information sufficient to permit us to locate the content; (3) contact information for you, including your address, telephone number and email address; (4) a statement by you that you have a good faith belief that the content in the manner complained of is not authorized by the copyright owner, or its agent, or by the operation of any law; (5) a statement by you, signed under penalty of perjury, that the information in the notification is accurate and that you have the authority to enforce the copyrights that are claimed to be infringed; and (6) a physical or electronic signature of the copyright owner or a person authorized to act on the copyright owner’s behalf. Failure to include all of the above information may result in the delay of the processing of your complaint.
Read moreLast checked Mar 17, 12:00 am
- Jome
- New homes search
- North Carolina
- Charlotte Metropolitan Area
- Mecklenburg County
- Charlotte
- Northerly
- 1418 Samuel St, Charlotte, NC 28206





























