













- 3 bd
- 2.5 ba
- 1,671 sqft
7440 Mashburn Dr, Charlotte, NC 28269
- Single-Family
- $212.82/sqft
- 104 days on Jome
New Homes for Sale Near 7440 Mashburn Dr, Charlotte, NC 28269
About this Home
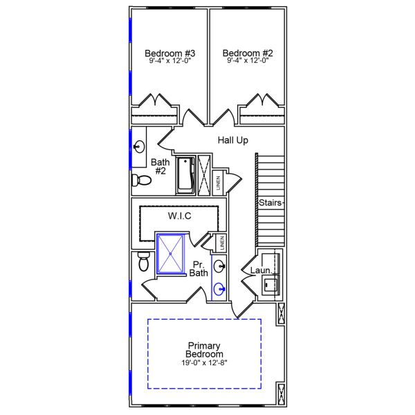
This two-story end unit townhome has three bedrooms and two-and-one-half bathrooms. Additional windows on both levels ensure plenty of natural light. Immediately inside the entrance, a hallway leads past the staircase and half bathroom and into the open concept great room with an eat-in, kitchen, and patio. The primary suite features a walk-in closet, tray ceiling, and dual vanities. A laundry closet is located just outside of the primary suite for ultimate convenience. Two secondary bedrooms and one full bathroom are also located upstairs. A one-car garage and bench and cubbies complete this floor plan.
May also be listed on the Mungo Homes website
Information last verified by Jome: Wednesday at 6:42 AM (January 7, 2026)
Home details
- Property status:
- Sold
- Neighborhood:
- Nevin Community
- Size:
- 1,671 sqft
- Stories:
- 2
- Beds:
- 3
- Baths:
- 2
- Half baths:
- 1
- Garage spaces:
- 1
Construction details
- Builder Name:
- Mungo Homes
Home features & finishes
- Garage/Parking:
- Garage
- Rooms:
- Primary Bedroom Upstairs

Community details
Nichols Landing
by Mungo Homes, Charlotte, NC
- 26 homes
- 8 plans
- 1,456 - 2,322 sqft
View Nichols Landing details
More homes in Nichols Landing
- Home at address 6514 Harlech St, Charlotte, NC 28269

$329,353
Under construction- 3 bd
- 2.5 ba
- 1,505 sqft
6514 Harlech St, Charlotte, NC 28269
- Home at address 6518 Harlech St, Unit 17, Charlotte, NC 28269

$339,335
Under construction- 3 bd
- 2.5 ba
- 1,462 sqft
6518 Harlech St, Unit 17, Charlotte, NC 28269
- Home at address 7414 Mashburn Dr, Charlotte, NC 28269

$342,000
Under construction- 3 bd
- 2.5 ba
- 1,671 sqft
7414 Mashburn Dr, Charlotte, NC 28269
- Home at address 7414 Mashburn Dr, Charlotte, NC 28269

$342,000
Under construction- 3 bd
- 2.5 ba
- 1,671 sqft
7414 Mashburn Dr, Charlotte, NC 28269
- Home at address 7418 Mashburn Dr, Charlotte, NC 28269

$344,000
Under construction- 3 bd
- 3.5 ba
- 1,672 sqft
7418 Mashburn Dr, Charlotte, NC 28269
- Home at address 7418 Mashburn Dr, Unit 96, Charlotte, NC 28269

$344,000
Under construction- 3 bd
- 2.5 ba
- 1,672 sqft
7418 Mashburn Dr, Unit 96, Charlotte, NC 28269
Floor plans in Nichols Landing
- View details for Clover - Genesis Value Collection

Clover - Genesis Value Collection
$305,000+- 3 bd
- 2.5 ba
- 1,505 sqft
- View details for Cannalily - Genesis Value Collection

Cannalily - Genesis Value Collection
$310,000+- 3 bd
- 2.5 ba
- 1,456 sqft
About the builder - Mungo Homes
Neighborhood
Home address
- Neighborhood:
- Nevin Community
- City:
- Charlotte
- County:
- Mecklenburg
- Zip Code:
- 28269
Schools in Charlotte-Mecklenburg Schools
- Grades PK-12Privatebrisbane academy1.0 mi5901 statesville rdna
- Grades 06-08Publicturning point middle2.1 mi2300 w sugar creek rdna
GreatSchools’ Summary Rating calculation is based on 4 of the school’s themed ratings, including test scores, student/academic progress, college readiness, and equity. This information should only be used as a reference. Jome is not affiliated with GreatSchools and does not endorse or guarantee this information. Please reach out to schools directly to verify all information and enrollment eligibility. Data provided by GreatSchools.org © 2025
Places of interest
Getting around
2 nearby routes: 2 bus, 0 rail, 0 otherAir quality
Noise level
A Soundscore™ rating is a number between 50 (very loud) and 100 (very quiet) that tells you how loud a location is due to environmental noise.
Financials
Nearby communities in Charlotte
Homes in Charlotte Neighborhoods
- Nevin Community
- Toddville Road
- Cotswold
- Highland Creek
- Beatties Ford-Trinity
- Back Creek Church Road
- Steele Creek
- Newell
- Oakdale South
- Smallwood
- Hickory Grove
- North Charlotte
- Enderly Park
- Provincetowne
- Eagle Lake
- Westerly Hills
- Montclaire South
- Myers Park
- Mineral Springs-Rumble Road
- York Road
- Tryon Hills
- Mallard Creek - Withrow Downs
- Lansdowne
- Prosperity Church Road
- Ponderosa-Wingate
- Derita-Statesville
- Providence Park
- Eastland-Wilora Lake
- Starmount
- Elizabeth
- Oakhurst
- Coulwood West
- Wessex Square
- Ballantyne West
- Foxcroft
- Sugaw Creek-Ritch Ave
- Sedgefield
- Optimist Park
- Oaklawn
- Plaza Midwood
- Wendover-Sedgewood
- Plaza-Shamrock
- Lincoln Heights
- Newell South
- Sunset Road
- Slater Rd-Hamilton Circle
- University City North
- Echo Hills
- Biddleville
- Sherwood Forest
- Sardis Forest
- Farm Pond
- Villa Heights
- College Downs
- Arbor Glen
- Oxford Hunt
- Sterling
- Hidden Valley
- Whiteoak
- Marshbrooke
- Olde Providence North
- Dilworth
- Lakewood
- Ashbrook-Clawson Village
- Wilson Heights
- Druid Hills South
- Seversville
- Barclay Downs
- Country Club Heights
- Lockwood
- Freedom Park
- Thomasboro-Hoskins
- Yorkmount
- Mountain Island
- Belmont
- Coulwood East
- Firestone-Garden Park
- Harris-Houston
- Third Ward
- Madison Park
- Plaza-Eastway
- Downtown Charlotte
- Quail Hollow
- Mountainbrook
- Seven Eagles
- Collingwood
- Plaza Hills
- Sardis Woods
- Chantilly
- Marlwood
- Westchester
- Briarcreek-Woodland
- Providence Crossing
- Brookhill
- Carmel
- Double Oaks
- Wildwood
- West Sugar Creek-W T Harris Bl
- Washington Heights
- Stonehaven
Homes in Charlotte by Mungo Homes
Recently added communities in this area
Other Builders in Charlotte, NC
Nearby sold homes
New homes in nearby cities
More New Homes in Charlotte, NC
- Jome
- New homes search
- North Carolina
- Charlotte Metropolitan Area
- Mecklenburg County
- Charlotte
- Nichols Landing
- 7440 Mashburn Dr, Charlotte, NC 28269

























































