








Book your tour. Save an average of $18,473. We'll handle the rest.
We collect exclusive builder offers, book your tours, and support you from start to housewarming.
- Confirmed tours
- Get matched & compare top deals
- Expert help, no pressure
- No added fees
Estimated value based on Jome data, T&C apply
































- 4 bd
- 3 ba
- 2,204 sqft
406 Silver Birch Ct, Shelby, NC 28152
Why tour with Jome?
- No pressure toursTour at your own pace with no sales pressure
- Expert guidanceGet insights from our home buying experts
- Exclusive accessSee homes and deals not available elsewhere
Jome is featured in
- Single-Family
- $120.69/sqft
- Northeast facing
- 0.17-acre lot
Home description
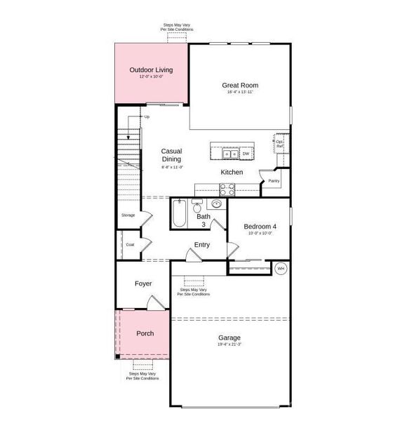
What's Special: Oversized Patio | 1st Floor Guest Bedroom | Loft | Oversized Lot. New Construction - June Completion! Built by America's Most Trusted Home Builder. Welcome to the Pisgah at 406 Silver Birch Court in Fincastle Glen. This two-story home offers a thoughtful design with a first-floor bedroom and full bath, perfect for guests. The open-concept layout features a kitchen that flows into the casual dining area and spacious great room, with the option to add outdoor living space. Upstairs, the primary suite provides a relaxing retreat alongside two additional bedrooms, a full bath, a laundry room, and a loft with a tech area ideal for working from home. Fincastle Glen in Shelby, NC offers a connected, comfortable lifestyle in a welcoming neighborhood designed for walkability and everyday convenience. Sidewalk-lined streets encourage community connection, with Shelby Middle School located directly across the street and Uptown Shelby’s live music, local shops, cafés, and dining just a short walk or drive away. Ideally situated near I-85 and I-74, the community provides easy access to Charlotte, Charlotte Douglas International Airport, Asheville, and Greenville, SC. Daily necessities are close by with Food Lion less than half a mile away and Ingles Market and Walmart just two miles from home, while nearby outdoor destinations like Crowder’s Mountain, Lake Lure, Chimney Rock Park, and the Blue Ridge Parkway offer endless recreation. Homebuyers enjoy added peace of mind with a comprehensive home warranty, along with convenient access to James Love Elementary, Shelby Middle, Shelby High School, and Gardner-Webb University, making Fincastle Glen a place where location, lifestyle, and ease come together. Additional highlights include: uncovered outdoor living. Photos are for representative purposes only. MLS#4359557
Taylor Morrison of Carolinas Inc, MLS CAR4359557
May also be listed on the Taylor Morrison website
Information last verified by Jome: Today at 12:09 AM (April 22, 2026)
Home highlights
Book your tour. Save an average of $18,473. We'll handle the rest.
We collect exclusive builder offers, book your tours, and support you from start to housewarming.
- Confirmed tours
- Get matched & compare top deals
- Expert help, no pressure
- No added fees
Estimated value based on Jome data, T&C apply
Home details
- Property status:
- Pending/Under contract
- Lot size (acres):
- 0.17
- Size:
- 2,204 sqft
- Stories:
- 2
- Beds:
- 4
- Baths:
- 3
- Garage spaces:
- 2
- Facing direction:
- Northeast
Construction details
- Builder Name:
- Taylor Morrison
- Completion Date:
- July, 2026
- Year Built:
- 2026
Home features & finishes
- Cooling:
- Central Air
- Flooring:
- Laminate FlooringVinyl FlooringCarpet FlooringTile Flooring
- Foundation Details:
- Slab
- Garage/Parking:
- Door OpenerGarageFront Entry Garage/ParkingAttached Garage
- Home amenities:
- Internet
- Interior Features:
- Walk-In ClosetFoyerPantryLoft
- Kitchen:
- DishwasherMicrowave OvenOvenDisposalKitchen IslandKitchen Range
- Laundry facilities:
- Laundry Facilities On Upper LevelDryerWasherUtility/Laundry Room
- Property amenities:
- Tech SpacePorch
- Rooms:
- Guest RoomOpen Concept Floorplan
- Security system:
- Smoke DetectorCarbon Monoxide Detector
Room details
Master Bedroom
Dining Room
Bedroom 1

Get a consultation with our New Homes Expert
- See how your home builds wealth
- Plan your home-buying roadmap
- Discover hidden gems
Utility information
- Heating:
- Electric Heating, Heat Pump, Zoned Heating
- Sewer:
- Public Sewer
- Utilities:
- Electricity Available, Underground Utilities, Internet Cable, Cable Available
- Water source:
- Public

Community details
Fincastle Glen
by Taylor Morrison, Shelby, NC
- 2 homes
- 5 plans
- 1,611 - 2,204 sqft
View Fincastle Glen details
Community amenities
- Sidewalks Available
More homes in Fincastle Glen
- Home at address 509 Silver Birch Ct, Shelby, NC 28152

Manteo
Savings$267,990
- 3 bd
- 2.5 ba
- 1,832 sqft
509 Silver Birch Ct, Shelby, NC 28152
- Home at address 502 Silver Birch Ct, Shelby, NC 28152

Home
$331,990
- 3 bd
- 2.5 ba
- 1,771 sqft
502 Silver Birch Ct, Shelby, NC 28152
Floor plans in Fincastle Glen
About the builder - Taylor Morrison

- 315communities on Jome
- 1,325homes on Jome
Neighborhood
Home address
Schools in Cleveland County Schools
GreatSchools’ Summary Rating calculation is based on 4 of the school’s themed ratings, including test scores, student/academic progress, college readiness, and equity. This information should only be used as a reference. Jome is not affiliated with GreatSchools and does not endorse or guarantee this information. Please reach out to schools directly to verify all information and enrollment eligibility. Data provided by GreatSchools.org © 2025
Places of interest
Getting around
Noise level
A Soundscore™ rating is a number between 50 (very loud) and 100 (very quiet) that tells you how loud a location is due to environmental noise.

Considering this home?
Our expert will guide your tour, in-person or virtual
Need more information?
Text or call (888) 545-5198
Financials
Estimated monthly payment
Let us help you find your dream home
How many bedrooms are you looking for?
Similar homes nearby
Recently added communities in this area
Nearby communities in Shelby
New homes in nearby cities
More New Homes in Shelby, NC
Taylor Morrison of Carolinas Inc, MLS CAR4359557
Based on information submitted to the MLS GRID as of 10/21/2024 2:31 PM CDT. All data is obtained from various sources and may not have been verified by the broker or MLS GRID. Supplied Open House Information is subject to change without notice. All information should be independently reviewed and verified for accuracy. Properties may or may not be listed by the office/agent presenting the information. Properties displayed may be listed or sold by various participants in the MLS. The Digital Millennium Copyright Act of 1998, 17 U.S.C. § 512 (the “DMCA”) provides recourse for copyright owners who believe that material appearing on the Internet infringes their rights under U.S. copyright law. If you believe in good faith that any content or material made available in connection with our website or services infringes your copyright, you (or your agent) may send us a notice requesting that the content or material be removed, or access to it blocked. Notices must be sent in writing by email to DMCAnotice@MLSGrid.com. The DMCA requires that your notice of alleged copyright infringement include the following information: (1) description of the copyrighted work that is the subject of claimed infringement; (2) description of the alleged infringing content and information sufficient to permit us to locate the content; (3) contact information for you, including your address, telephone number and email address; (4) a statement by you that you have a good faith belief that the content in the manner complained of is not authorized by the copyright owner, or its agent, or by the operation of any law; (5) a statement by you, signed under penalty of perjury, that the information in the notification is accurate and that you have the authority to enforce the copyrights that are claimed to be infringed; and (6) a physical or electronic signature of the copyright owner or a person authorized to act on the copyright owner’s behalf. Failure to include all of the above information may result in the delay of the processing of your complaint.
Read moreLast checked Apr 22, 5:00 pm
- Jome
- New homes search
- North Carolina
- Cleveland County
- Shelby
- Fincastle Glen
- 406 Silver Birch Ct, Shelby, NC 28152




























