



















- 4 bd
- 3.5 ba
- 3,471 sqft
506 Blue River Dr, Unit 87, Arden, NC 28704
- Single-Family
- $266.49/sqft
- 0.34-acre lot
- 180 days on Jome
New Homes for Sale Near 506 Blue River Dr, Unit 87, Arden, NC 28704
About this Home
Welcome to Victoria Hills, an exclusive gated community in the scenic surroundings of Arden, NC. Combining tranquility with everyday convenience, this premier neighborhood is just an 8-minute drive from Biltmore Park. Residents enjoy beautiful mountain views, two dog parks, a playground, a peaceful creek, and a community pavilion.
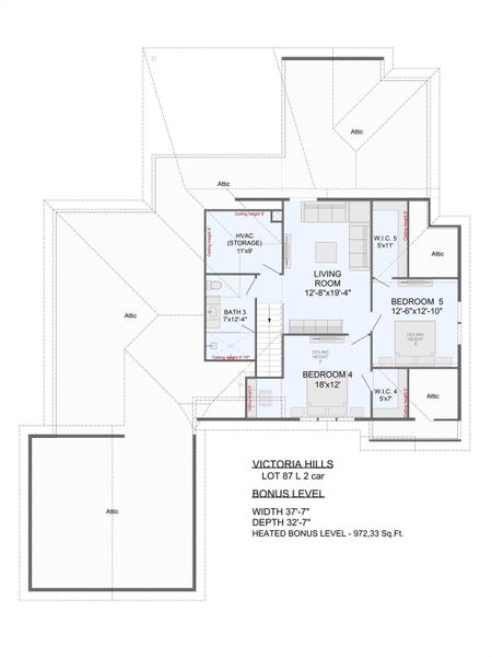
This impressive two-story home offers 3,472 square feet of refined living space, featuring an open floor plan anchored by a stunning floor-to-ceiling fireplace. A gourmet kitchen with top-of-the-line appliances enhances the home's modern elegance. The residence also includes a spacious two-car garage and a beautifully designed paver driveway. Outdoors, a private backyard provides the perfect place to relax, entertain, and take in the surrounding mountain scenery.
Discover exceptional luxury and comfort in Victoria Hills.
Big Hills Real Estate LLC, MLS CAR4323188
Information last verified by Jome: Friday at 11:00 AM (March 13, 2026)
Home details
- Property status:
- Sold
- Lot size (acres):
- 0.34
- Size:
- 3,471 sqft
- Stories:
- 2
- Beds:
- 4
- Baths:
- 3
- Half baths:
- 1
- Garage spaces:
- 2
Construction details
- Year Built:
- 2026
Home features & finishes
- Construction Materials:
- CementStone
- Cooling:
- Ceiling Fan(s)Central Air
- Flooring:
- Tile Flooring
- Foundation Details:
- Slab
- Garage/Parking:
- Door OpenerGarageFront Entry Garage/ParkingAttached Garage
- Home amenities:
- ENERGY STAR Certified
- Interior Features:
- Sliding Doors
- Kitchen:
- DishwasherOvenRefrigeratorDisposalGas Cooktop
- Laundry facilities:
- WasherLaundry Facilities On Main LevelUtility/Laundry Room
- Property amenities:
- Gas Log FireplaceFireplacePorch
- Rooms:
- Family Room
- Security system:
- Smoke Detector
Utility information
- Heating:
- Water Heater, Gas Heating, Forced Air Heating, Tankless water heater
- Utilities:
- Natural Gas on Property
Community amenities
- Dog Park
- Playground
- Gated Community
- Picnic Area
- Mountain(s) View
- Walking, Jogging, Hike Or Bike Trails
Neighborhood
Home address
Schools in Buncombe County Schools
GreatSchools’ Summary Rating calculation is based on 4 of the school’s themed ratings, including test scores, student/academic progress, college readiness, and equity. This information should only be used as a reference. Jome is not affiliated with GreatSchools and does not endorse or guarantee this information. Please reach out to schools directly to verify all information and enrollment eligibility. Data provided by GreatSchools.org © 2025
Places of interest
Getting around
Noise level
A Soundscore™ rating is a number between 50 (very loud) and 100 (very quiet) that tells you how loud a location is due to environmental noise.
Natural hazards risk
Provided by FEMA
Financials
Nearby communities in Arden
Recently added communities in this area
Other Builders in Arden, NC
Nearby sold homes
New homes in nearby cities
More New Homes in Arden, NC
Big Hills Real Estate LLC, MLS CAR4323188
Based on information submitted to the MLS GRID as of 10/21/2024 2:31 PM CDT. All data is obtained from various sources and may not have been verified by the broker or MLS GRID. Supplied Open House Information is subject to change without notice. All information should be independently reviewed and verified for accuracy. Properties may or may not be listed by the office/agent presenting the information. Properties displayed may be listed or sold by various participants in the MLS. The Digital Millennium Copyright Act of 1998, 17 U.S.C. § 512 (the “DMCA”) provides recourse for copyright owners who believe that material appearing on the Internet infringes their rights under U.S. copyright law. If you believe in good faith that any content or material made available in connection with our website or services infringes your copyright, you (or your agent) may send us a notice requesting that the content or material be removed, or access to it blocked. Notices must be sent in writing by email to DMCAnotice@MLSGrid.com. The DMCA requires that your notice of alleged copyright infringement include the following information: (1) description of the copyrighted work that is the subject of claimed infringement; (2) description of the alleged infringing content and information sufficient to permit us to locate the content; (3) contact information for you, including your address, telephone number and email address; (4) a statement by you that you have a good faith belief that the content in the manner complained of is not authorized by the copyright owner, or its agent, or by the operation of any law; (5) a statement by you, signed under penalty of perjury, that the information in the notification is accurate and that you have the authority to enforce the copyrights that are claimed to be infringed; and (6) a physical or electronic signature of the copyright owner or a person authorized to act on the copyright owner’s behalf. Failure to include all of the above information may result in the delay of the processing of your complaint.
Read moreLast checked May 20, 11:00 am
- Jome
- New homes search
- North Carolina
- Buncombe County
- Arden
- 506 Blue River Dr, Unit 87, Arden, NC 28704





















































