














Book your tour. Save an average of $18,473. We'll handle the rest.
- Confirmed tours
- Get matched & compare top deals
- Expert help, no pressure
- No added fees
Estimated value based on Jome data, T&C apply







- 5 bd
- 3 ba
- 2,762 sqft
828 Ballaster Rd, Fuquay Varina, NC 27526
Why tour with Jome?
- No pressure toursTour at your own pace with no sales pressure
- Expert guidanceGet insights from our home buying experts
- Exclusive accessSee homes and deals not available elsewhere
Jome is featured in
- Single-Family
- Under construction
- $243.49/sqft
- $60/monthly HOA
Home description
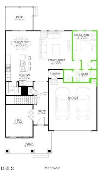
To Be Built - Welcome home to 828 Ballaster Rd, a stunning 5-bedroom, 3-bath retreat designed for comfort, convenience, and modern living. This spacious two-story home features a private first-floor guest suite, ideal for visitors, multi-generational living, or anyone who appreciates a quiet, accessible space of their own. The open-concept main floor seamlessly connects the family room, gourmet kitchen with a large island, and the bright breakfast area, creating a warm and inviting setting for everyday moments and effortless entertaining. Just beyond, a back deck overlooks the community garden, offering a peaceful backdrop for outdoor dining, relaxation, and gatherings. Upstairs, the luxurious primary suite includes dual vanities, a walk-in shower, and an expansive walk-in closet. A generous loft, convenient laundry room, and three additional bedrooms complete the thoughtfully designed second floor. Optional enhancements—such as a cozy fireplace and elegant coffered ceilings—allow you to tailor the space to your personal style. With its flexible layout, upscale details, and room for everyone, 828 Ballaster Rd is the perfect place to grow, unwind, and create lasting memories.
Baker Residential, MLS 10134057
May also be listed on the Baker Residential website
Information last verified by Jome: Today at 4:24 AM (December 5, 2025)
Home highlights
Raleigh’s premier arena hosting NHL games, concerts, and events near NC State and suburban neighborhoods.
Book your tour. Save an average of $18,473. We'll handle the rest.
We collect exclusive builder offers, book your tours, and support you from start to housewarming.
- Confirmed tours
- Get matched & compare top deals
- Expert help, no pressure
- No added fees
Estimated value based on Jome data, T&C apply
Home details
- Property status:
- Under construction
- Lot size (acres):
- 0.13
- Size:
- 2,762 sqft
- Stories:
- 2
- Beds:
- 5
- Baths:
- 3
- Garage spaces:
- 2
Construction details
- Builder Name:
- Baker Residential
- Year Built:
- 2026
- Roof:
- Shingle Roofing
Home features & finishes
- Cooling:
- Central Air
- Flooring:
- Vinyl Flooring
- Garage/Parking:
- GarageAttached Garage
- Property amenities:
- Basement
Utility information
- Heating:
- Forced Air Heating
About the builder - Baker Residential
Neighborhood
Home address
- City:
- Fuquay Varina
- County:
- Wake
- Zip Code:
- 27526
Schools in Wake County Schools
- Grades M-MPublicherbert akins road middle1.0 mi2255 herbert akins roadna
GreatSchools’ Summary Rating calculation is based on 4 of the school’s themed ratings, including test scores, student/academic progress, college readiness, and equity. This information should only be used as a reference. Jome is not affiliated with GreatSchools and does not endorse or guarantee this information. Please reach out to schools directly to verify all information and enrollment eligibility. Data provided by GreatSchools.org © 2025
Places of interest
Getting around
Natural hazards risk
Climate hazards can impact homes and communities, with risks varying by location. These scores reflect the potential impact of natural disasters and climate-related risks on Wake County
Provided by FEMA

Considering this home?
Our expert will guide your tour, in-person or virtual
Need more information?
Text or call (888) 486-2818
Financials
Similar homes nearby
Recently added communities in this area
Nearby communities in Fuquay Varina
New homes in nearby cities
More New Homes in Fuquay Varina, NC
Baker Residential, MLS 10134057
© 2025 Doorify MLS, Inc. of North Carolina. All rights reserved. Brokers make an effort to deliver accurate information, but buyers should independently verify any information on which they will rely in a transaction. The listing broker shall not be responsible for any typographical errors, misinformation, or misprints, and they shall be held totally harmless from any damages arising from reliance upon this data. This data is provided exclusively for consumers’ personal, non-commercial use. Some IDX listings have been excluded from this IDX display. Closed (sold) listings may have been listed and/or sold by a real estate firm other than the firm(s) featured on this website. Closed data is not available until the sale of the property is recorded in the MLS. Home sale data is not an appraisal, CMA, competitive or comparative market analysis, or home valuation of any property. Listings marked with an icon are provided courtesy of the Doorify MLS, Inc. of North Carolina, Internet Data Exchange Database.
Read moreLast checked Dec 5, 4:10 am
- Home
- New homes
- North Carolina
- Raleigh-Durham Area
- Wake County
- Fuquay Varina
- 828 Ballaster Rd, Fuquay Varina, NC 27526




























