




Book your tour. Save an average of $18,473. We'll handle the rest.
- Confirmed tours
- Get matched & compare top deals
- Expert help, no pressure
- No added fees
Estimated value based on Jome data, T&C apply
- 4 bd
- 3.5 ba
- 3,043 sqft
334 N Fork Rd, Unit 6, Black Mountain, NC 28711
Why tour with Jome?
- No pressure toursTour at your own pace with no sales pressure
- Expert guidanceGet insights from our home buying experts
- Exclusive accessSee homes and deals not available elsewhere
Jome is featured in
- Single-Family
- Under construction
- $500/sqft
- 0.36-acre lot
Home description
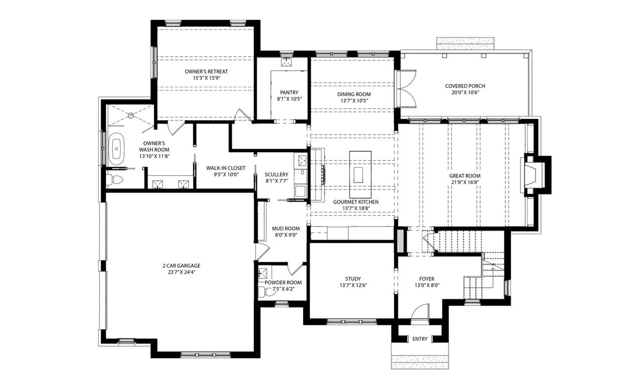
WINDSOR COTTAGE
Evoking the grace and grandeur of English countryside manors, Windsor Cottage offers a harmonious blend of timeless beauty and modern sophistication. Encompassing over 3,000 square feet, this four-bedroom, three-and-a-half-bath home features elegant rooflines, warm materials, and an inviting symmetry that exudes quiet confidence.
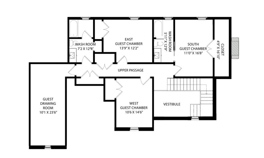
Inside, tall ceilings and expansive windows bathe the living spaces in natural light, from the generous living room with its graceful flow to the chef’s kitchen designed for gathering and connection. The primary suite on the main level provides a tranquil retreat, while the upper floor’s three bedrooms and flexible spaces lend balance and versatility to family living. Every corner of Windsor speaks to a reverence for tradition, reimagined for contemporary life.
Windsor Cottage is not merely a residence — it is a portrait of refinement and ease, where heritage and modern design meet in graceful harmony.
“Subject to final plat approval by the Town of Black Mountain. Seller reserves the right to create, retain, or grant easements affecting the subject property. CCR to be recorded prior to closing.”
AN EXCLUSIVE PLANK & PILLOW DESIGN - CREATED IN PARTNERSHIP WITH STAG BROOK COTTAGES TO CELEBRATE CRAFTSMANSHIP, SOPHISTICATION, AND LEGACY IN EVERY DETAIL.
STAG BROOK COTTAGES is a curated collection of manor-sized English-inspired cottages where timeless architecture meets modern craftsmanship, located right outside of Asheville, in Black Mountain, NC. Nestled in a tranquil setting surrounded by nature, each cottage is thoughtfully designed to reflect the charm of old-world England while embracing today’s comforts and conveniences. From distinctive façades and handcrafted details to an inviting sense of community, Stag Brook Cottages offers a place not merely to live - but to belong.
Artist’s rendering. Final design, finishes, and details may vary.
All information to be verified by buyer.
Optional elevator upgrade available on select cottages.
Keller Williams Professionals, MLS CAR4319105
Information last verified by Jome: Today at 12:07 AM (December 5, 2025)
Home highlights
Book your tour. Save an average of $18,473. We'll handle the rest.
We collect exclusive builder offers, book your tours, and support you from start to housewarming.
- Confirmed tours
- Get matched & compare top deals
- Expert help, no pressure
- No added fees
Estimated value based on Jome data, T&C apply
Home details
- Property status:
- Under construction
- Lot size (acres):
- 0.36
- Size:
- 3,043 sqft
- Stories:
- 2
- Beds:
- 4
- Baths:
- 3
- Half baths:
- 1
- Garage spaces:
- 2
Construction details
- Year Built:
- 2026
Home features & finishes
- Appliances:
- Ice Maker
- Construction Materials:
- Stone
- Cooling:
- Central Air
- Foundation Details:
- Crawl Space
- Garage/Parking:
- GarageAttached Garage
- Kitchen:
- DishwasherMicrowave OvenOvenRefrigeratorGas CooktopGas OvenKitchen Range
- Laundry facilities:
- DryerWasherUtility/Laundry Room
- Property amenities:
- Fireplace
Utility information
- Heating:
- Heat Pump, Water Heater, Central Heating
- Utilities:
- Propane
Neighborhood
Home address
- City:
- Black Mountain
- County:
- Buncombe
- Zip Code:
- 28711
Schools in Buncombe County Schools
GreatSchools’ Summary Rating calculation is based on 4 of the school’s themed ratings, including test scores, student/academic progress, college readiness, and equity. This information should only be used as a reference. Jome is not affiliated with GreatSchools and does not endorse or guarantee this information. Please reach out to schools directly to verify all information and enrollment eligibility. Data provided by GreatSchools.org © 2025
Places of interest
Getting around
Natural hazards risk
Climate hazards can impact homes and communities, with risks varying by location. These scores reflect the potential impact of natural disasters and climate-related risks on Buncombe County
Provided by FEMA

Considering this home?
Our expert will guide your tour, in-person or virtual
Need more information?
Text or call (888) 486-2818
Financials
Similar homes nearby
Recently added communities in this area
Nearby communities in Black Mountain
New homes in nearby cities
More New Homes in Black Mountain, NC
Keller Williams Professionals, MLS CAR4319105
Based on information submitted to the MLS GRID as of 10/21/2024 2:31 PM CDT. All data is obtained from various sources and may not have been verified by the broker or MLS GRID. Supplied Open House Information is subject to change without notice. All information should be independently reviewed and verified for accuracy. Properties may or may not be listed by the office/agent presenting the information. Properties displayed may be listed or sold by various participants in the MLS. The Digital Millennium Copyright Act of 1998, 17 U.S.C. § 512 (the “DMCA”) provides recourse for copyright owners who believe that material appearing on the Internet infringes their rights under U.S. copyright law. If you believe in good faith that any content or material made available in connection with our website or services infringes your copyright, you (or your agent) may send us a notice requesting that the content or material be removed, or access to it blocked. Notices must be sent in writing by email to DMCAnotice@MLSGrid.com. The DMCA requires that your notice of alleged copyright infringement include the following information: (1) description of the copyrighted work that is the subject of claimed infringement; (2) description of the alleged infringing content and information sufficient to permit us to locate the content; (3) contact information for you, including your address, telephone number and email address; (4) a statement by you that you have a good faith belief that the content in the manner complained of is not authorized by the copyright owner, or its agent, or by the operation of any law; (5) a statement by you, signed under penalty of perjury, that the information in the notification is accurate and that you have the authority to enforce the copyrights that are claimed to be infringed; and (6) a physical or electronic signature of the copyright owner or a person authorized to act on the copyright owner’s behalf. Failure to include all of the above information may result in the delay of the processing of your complaint.
Read moreLast checked Dec 5, 5:00 am
- Home
- New homes
- North Carolina
- Buncombe County
- Black Mountain
- 334 N Fork Rd, Unit 6, Black Mountain, NC 28711





















