
























- 4 bd
- 3 ba
- 2,604 sqft
1225 Kildare Dr, Unit 7, Salisbury, NC 28146
- Single-Family
- $146.66/sqft
- 0.26-acre lot
- 172 days on Jome
New Homes for Sale Near 1225 Kildare Dr, Unit 7, Salisbury, NC 28146
About this Home
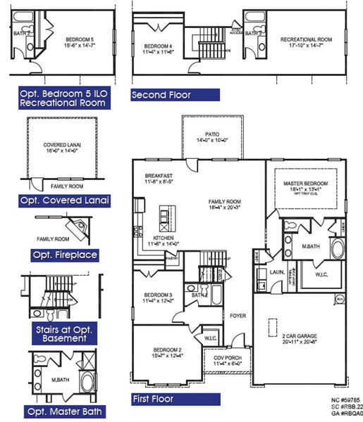
Home for the Holidays with below market rates and special financing options. The 2604 floorplan is a stunning two-story home that offers 4 bedrooms, 3 bathrooms, and a 2-car garage. This thoughtfully designed layout provides ample space for comfortable living and entertaining. As you enter the home, you are greeted by a welcoming foyer that leads you to the heart of the house. The open-concept design seamlessly connects the main living areas, creating a sense of flow and connectivity. The spacious family room is perfect for relaxing and spending quality time with loved ones. Adjacent to the family room is the dining area, providing a designated space for enjoying meals and hosting gatherings. The kitchen features a large center island with a breakfast bar, perfect for meal preparation and casual dining. The abundance of cabinet space ensures you have plenty of storage for all your kitchen essentials. Stainless steel appliances and high-quality finishes add a touch of elegance to the space. The primary suite offers a spacious bedroom and well-appointed ensuite bathroom that includes a large walk-in closet, dual vanity, and 5' shower with tile walls. The additional bedrooms are located throughout the home and provide privacy and comfort for family members or guests. A designated laundry room conveniently located near the bedrooms adds to the functionality of the home. Don't miss the opportunity to make the 2604 floorplan your dream home.
Adams Homes Realty-NC, Inc., MLS CAR4311267
May also be listed on the Adams Homes website
Information last verified by Jome: Wednesday at 5:00 PM (March 11, 2026)
Home details
- Property status:
- Sold
- Lot size (acres):
- 0.26
- Size:
- 2,604 sqft
- Stories:
- 2
- Beds:
- 4
- Baths:
- 3
- Garage spaces:
- 2
Construction details
- Builder Name:
- Adams Homes
- Year Built:
- 2025
Home features & finishes
- Construction Materials:
- Stone
- Flooring:
- Laminate FlooringCarpet FlooringTile Flooring
- Foundation Details:
- Slab
- Garage/Parking:
- GarageAttached Garage
- Interior Features:
- Walk-In ClosetFoyerPantryStorage
- Kitchen:
- DishwasherMicrowave OvenDisposalKitchen Range
- Laundry facilities:
- Laundry Facilities On Main LevelUtility/Laundry Room
- Property amenities:
- PatioPorch
- Rooms:
- Primary Bedroom On MainKitchenRecreational RoomFamily RoomBreakfast AreaOpen Concept FloorplanPrimary Bedroom Downstairs
Utility information
- Heating:
- Electric Heating

Community details
Kerns Ridge
by Adams Homes, Salisbury, NC
- 10 homes
- 10 plans
- 1,709 - 3,629 sqft
View Kerns Ridge details
Community amenities
- Community Pool
- Game Room/Area
- Picnic Area
- Cabana
- Sidewalks Available
More homes in Kerns Ridge
- Home at address 165 Swinford Dr, Unit 82, Salisbury, NC 28146

$341,400
Under construction- 4 bd
- 2 ba
- 2,100 sqft
165 Swinford Dr, Unit 82, Salisbury, NC 28146
- Home at address 1075 Kildare Dr, Unit 66, Salisbury, NC 28146

$342,900
Under construction- 4 bd
- 2 ba
- 2,100 sqft
1075 Kildare Dr, Unit 66, Salisbury, NC 28146
- Home at address 120 Nolen Dr, Unit 72, Salisbury, NC 28146

$346,400
Move-in ready- 4 bd
- 2 ba
- 2,030 sqft
120 Nolen Dr, Unit 72, Salisbury, NC 28146
- Home at address 1095 Kildare Dr, Unit 68, Salisbury, NC 28146

$364,900
Under construction- 4 bd
- 2.5 ba
- 2,307 sqft
1095 Kildare Dr, Unit 68, Salisbury, NC 28146
- Home at address 1165 Kildare Dr, Unit 2, Salisbury, NC 28146

$372,900
Move-in ready- 4 bd
- 2.5 ba
- 2,307 sqft
1165 Kildare Dr, Unit 2, Salisbury, NC 28146
- Home at address 1065 Kildare Dr, Unit 65, Salisbury, NC 28146

$389,050
Under construction- 4 bd
- 3.5 ba
- 2,721 sqft
1065 Kildare Dr, Unit 65, Salisbury, NC 28146
Floor plans in Kerns Ridge
About the builder - Adams Homes

- 161communities on Jome
- 1,157homes on Jome
Neighborhood
Home address
Schools in Rowan-Salisbury Schools
GreatSchools’ Summary Rating calculation is based on 4 of the school’s themed ratings, including test scores, student/academic progress, college readiness, and equity. This information should only be used as a reference. Jome is not affiliated with GreatSchools and does not endorse or guarantee this information. Please reach out to schools directly to verify all information and enrollment eligibility. Data provided by GreatSchools.org © 2025
Places of interest
Getting around
Air quality
Noise level
A Soundscore™ rating is a number between 50 (very loud) and 100 (very quiet) that tells you how loud a location is due to environmental noise.
Financials
Nearby communities in Salisbury
Homes in Salisbury by Adams Homes
Recently added communities in this area
Other Builders in Salisbury, NC
Nearby sold homes
New homes in nearby cities
More New Homes in Salisbury, NC
Adams Homes Realty-NC, Inc., MLS CAR4311267
Based on information submitted to the MLS GRID as of 10/21/2024 2:31 PM CDT. All data is obtained from various sources and may not have been verified by the broker or MLS GRID. Supplied Open House Information is subject to change without notice. All information should be independently reviewed and verified for accuracy. Properties may or may not be listed by the office/agent presenting the information. Properties displayed may be listed or sold by various participants in the MLS. The Digital Millennium Copyright Act of 1998, 17 U.S.C. § 512 (the “DMCA”) provides recourse for copyright owners who believe that material appearing on the Internet infringes their rights under U.S. copyright law. If you believe in good faith that any content or material made available in connection with our website or services infringes your copyright, you (or your agent) may send us a notice requesting that the content or material be removed, or access to it blocked. Notices must be sent in writing by email to DMCAnotice@MLSGrid.com. The DMCA requires that your notice of alleged copyright infringement include the following information: (1) description of the copyrighted work that is the subject of claimed infringement; (2) description of the alleged infringing content and information sufficient to permit us to locate the content; (3) contact information for you, including your address, telephone number and email address; (4) a statement by you that you have a good faith belief that the content in the manner complained of is not authorized by the copyright owner, or its agent, or by the operation of any law; (5) a statement by you, signed under penalty of perjury, that the information in the notification is accurate and that you have the authority to enforce the copyrights that are claimed to be infringed; and (6) a physical or electronic signature of the copyright owner or a person authorized to act on the copyright owner’s behalf. Failure to include all of the above information may result in the delay of the processing of your complaint.
Read moreLast checked Apr 13, 11:00 am
- Jome
- New homes search
- North Carolina
- Charlotte Metropolitan Area
- Rowan County
- Salisbury
- Kerns Ridge
- 1225 Kildare Dr, Unit 7, Salisbury, NC 28146








































































