




















































- 3 bd
- 2.5 ba
- 2,085 sqft
31 Hillcrest Rd, Black Mountain, NC 28711
- Single-Family
- $364.03/sqft
- 0.33-acre lot
- 122 days on Jome
New Homes for Sale Near 31 Hillcrest Rd, Black Mountain, NC 28711
About this Home
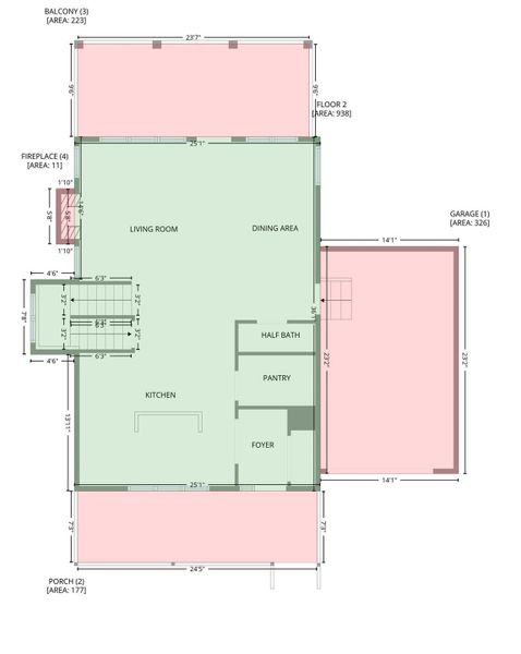
Welcome to modern mountain living in beautiful Black Mountain! This brand-new GreenBuilt and Energy Star–certified home combines thoughtful architecture with exceptional energy efficiency. Enjoy inspiring mountain views from the open living, dining, and kitchen areas or from the double back decks overlooking a peaceful Western North Carolina setting. The light-filled interior features white oak flooring, 8-foot doors, and oversized windows. The chef’s kitchen dazzles with quartz countertops, stainless steel appliances, soft-close cabinetry, a walk-in pantry, and a large island with breakfast bar. Relax by the gas fireplace or dine al fresco on the covered deck surrounded by a mature forest backdrop. Upstairs, the primary suite offers mountain views, a custom walk-in closet, and a spa-like bath. Two additional bedrooms, a bonus room, and laundry add convenience. With a ready-to-finish basement, oversized garage, and professional landscaping, this home blends sustainability, comfort, and stunning natural beauty; ideal for a primary home, second home or vacation rental. See brochure for more details.
Mosaic Community Lifestyle Realty, MLS CAR4312850
Information last verified by Jome: Tuesday at 11:00 PM (December 23, 2025)
Home details
- Property status:
- Sold
- Lot size (acres):
- 0.33
- Size:
- 2,085 sqft
- Stories:
- 2
- Beds:
- 3
- Baths:
- 2
- Half baths:
- 1
- Garage spaces:
- 1
Construction details
- Year Built:
- 2025
- Roof:
- Metal Roofing
Home features & finishes
- Appliances:
- Ice Maker
- Construction Materials:
- Cement
- Flooring:
- Wood FlooringConcrete FlooringTile Flooring
- Garage/Parking:
- GarageFront Entry Garage/ParkingAttached Garage
- Interior Features:
- Walk-In ClosetFoyerBreakfast BarWalk-In Pantry
- Kitchen:
- DishwasherRefrigeratorDisposalGas CooktopKitchen IslandGas OvenKitchen Range
- Laundry facilities:
- Laundry Facilities On Upper LevelLaundry Facilities In Closet
- Property amenities:
- BasementDeckFireplacePorch
- Rooms:
- Living RoomBreakfast AreaOpen Concept Floorplan
- Security system:
- Smoke DetectorCarbon Monoxide Detector
Utility information
- Heating:
- Heat Pump, Water Heater, Tankless water heater
- Utilities:
- Propane
Community amenities
- Mountain(s) View
Neighborhood
Home address
- City:
- Black Mountain
- County:
- Buncombe
- Zip Code:
- 28711
Schools in Buncombe County Schools
GreatSchools’ Summary Rating calculation is based on 4 of the school’s themed ratings, including test scores, student/academic progress, college readiness, and equity. This information should only be used as a reference. Jome is not affiliated with GreatSchools and does not endorse or guarantee this information. Please reach out to schools directly to verify all information and enrollment eligibility. Data provided by GreatSchools.org © 2025
Places of interest
Getting around
Natural hazards risk
Provided by FEMA
Financials
Nearby communities in Black Mountain
Recently added communities in this area
Other Builders in Black Mountain, NC
Nearby sold homes
New homes in nearby cities
More New Homes in Black Mountain, NC
Mosaic Community Lifestyle Realty, MLS CAR4312850
Based on information submitted to the MLS GRID as of 10/21/2024 2:31 PM CDT. All data is obtained from various sources and may not have been verified by the broker or MLS GRID. Supplied Open House Information is subject to change without notice. All information should be independently reviewed and verified for accuracy. Properties may or may not be listed by the office/agent presenting the information. Properties displayed may be listed or sold by various participants in the MLS. The Digital Millennium Copyright Act of 1998, 17 U.S.C. § 512 (the “DMCA”) provides recourse for copyright owners who believe that material appearing on the Internet infringes their rights under U.S. copyright law. If you believe in good faith that any content or material made available in connection with our website or services infringes your copyright, you (or your agent) may send us a notice requesting that the content or material be removed, or access to it blocked. Notices must be sent in writing by email to DMCAnotice@MLSGrid.com. The DMCA requires that your notice of alleged copyright infringement include the following information: (1) description of the copyrighted work that is the subject of claimed infringement; (2) description of the alleged infringing content and information sufficient to permit us to locate the content; (3) contact information for you, including your address, telephone number and email address; (4) a statement by you that you have a good faith belief that the content in the manner complained of is not authorized by the copyright owner, or its agent, or by the operation of any law; (5) a statement by you, signed under penalty of perjury, that the information in the notification is accurate and that you have the authority to enforce the copyrights that are claimed to be infringed; and (6) a physical or electronic signature of the copyright owner or a person authorized to act on the copyright owner’s behalf. Failure to include all of the above information may result in the delay of the processing of your complaint.
Read moreLast checked Feb 16, 5:00 am
- Jome
- New homes search
- North Carolina
- Buncombe County
- Black Mountain
- 31 Hillcrest Rd, Black Mountain, NC 28711


















































