




Book your tour. Save an average of $18,473. We'll handle the rest.
We collect exclusive builder offers, book your tours, and support you from start to housewarming.
- Confirmed tours
- Get matched & compare top deals
- Expert help, no pressure
- No added fees
Estimated value based on Jome data, T&C apply
Why tour with Jome?
- No pressure toursTour at your own pace with no sales pressure
- Expert guidanceGet insights from our home buying experts
- Exclusive accessSee homes and deals not available elsewhere
Jome is featured in
- Single-Family
- Quick move-in
- $201.18/sqft
- $105/monthly HOA
Home description
PRICE IMPROVEMENT AND INCENTIVES!
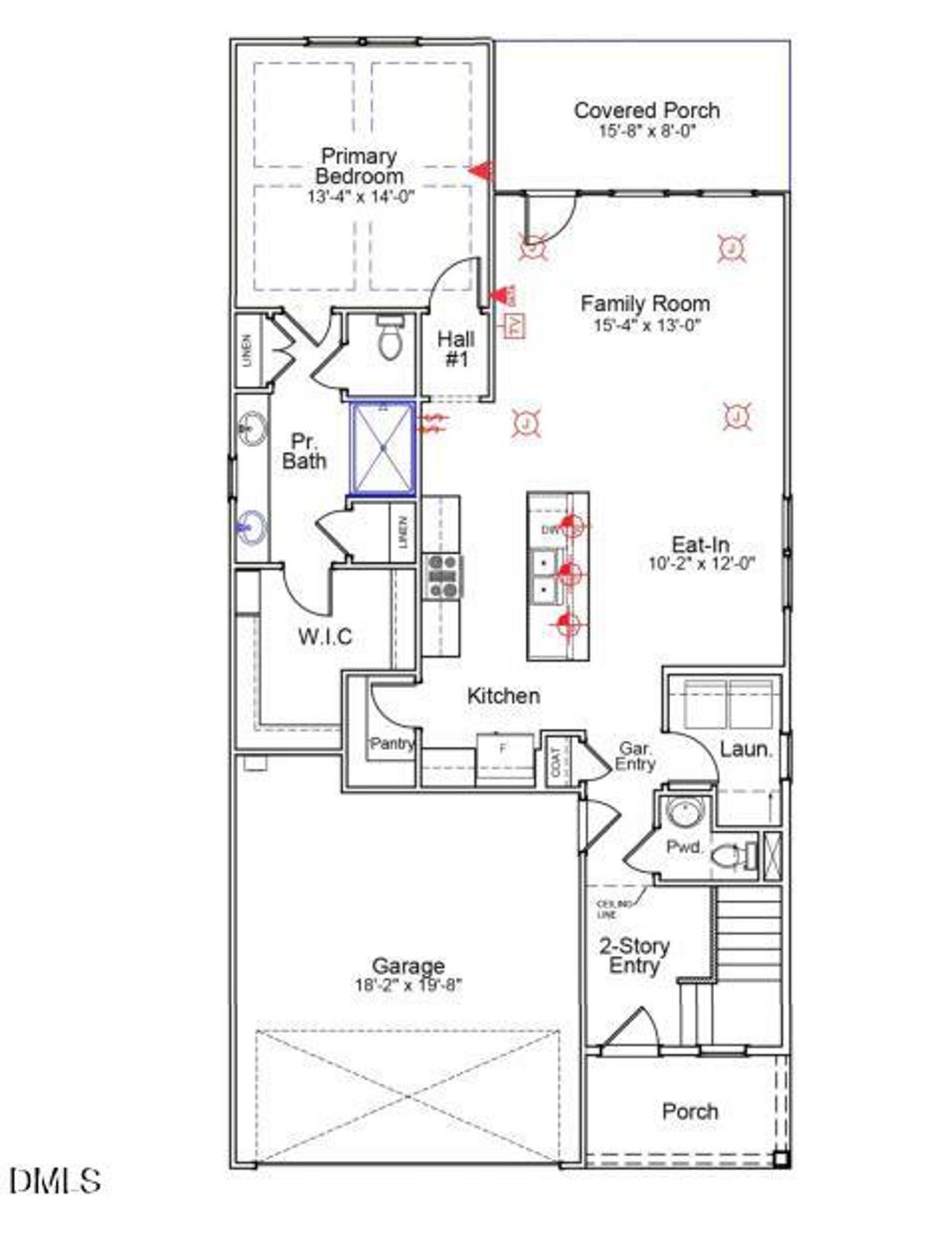
This homesite offers a modern, functional layout with a rich selection of premium features. From the gourmet kitchen with quartz countertops and a designer tile backsplash, to the spacious primary suites with upgraded cabinetry and frameless tile showers, every detail has been carefully selected to enhance comfort and style. The home includes elegant finishes such as brushed nickel fixtures, decorative ceilings, LVP flooring, and a covered screen porch—perfect for indoor-outdoor living.
Clayton Properties Group INC, MLS 10123422
May also be listed on the Mungo Homes website
Information last verified by Jome: Today at 10:11 AM (February 16, 2026)
Book your tour. Save an average of $18,473. We'll handle the rest.
We collect exclusive builder offers, book your tours, and support you from start to housewarming.
- Confirmed tours
- Get matched & compare top deals
- Expert help, no pressure
- No added fees
Estimated value based on Jome data, T&C apply
Home details
- Property status:
- Move-in ready
- Lot size (acres):
- 0.11
- Size:
- 2,535 sqft
- Stories:
- 2
- Beds:
- 4
- Baths:
- 3
- Half baths:
- 1
- Garage spaces:
- 2
Construction details
- Builder Name:
- Mungo Homes
- Year Built:
- 2025
- Roof:
- Shingle Roofing
Home features & finishes
- Construction Materials:
- CementFrame
- Cooling:
- Central Air
- Flooring:
- Vinyl FlooringCarpet Flooring
- Foundation Details:
- Slab
- Garage/Parking:
- GarageAttached Garage
- Property amenities:
- Basement

Get a consultation with our New Homes Expert
- See how your home builds wealth
- Plan your home-buying roadmap
- Discover hidden gems
Utility information
- Heating:
- Zoned Heating, Gas Heating, Forced Air Heating

Community details
Sweetbrier
by Mungo Homes, Durham, NC
- 71 homes
- 16 plans
- 1,899 - 4,166 sqft
View Sweetbrier details
More homes in Sweetbrier
- Home at address 2120 Pink Peony Cir, Durham, NC 27703

Winterberry
$450,662
- 4 bd
- 3.5 ba
- 2,459 sqft
2120 Pink Peony Cir, Durham, NC 27703
- Home at address 2109 Pink Peony Cir, Unit 195, Durham, NC 27703

Home
$455,000
- 4 bd
- 3.5 ba
- 2,497 sqft
2109 Pink Peony Cir, Unit 195, Durham, NC 27703
- Home at address 2113 Pink Peony Cir, Unit 193, Durham, NC 27703

Home
$455,000
- 4 bd
- 3.5 ba
- 2,459 sqft
2113 Pink Peony Cir, Unit 193, Durham, NC 27703
- Home at address 944 Westerland Wy, Durham, NC 27703

Winterberry
$455,894
- 4 bd
- 3.5 ba
- 2,459 sqft
944 Westerland Wy, Durham, NC 27703
- Home at address 2109 Pink Peony Cir, Durham, NC 27703

Veronica
$457,046
- 4 bd
- 3.5 ba
- 2,497 sqft
2109 Pink Peony Cir, Durham, NC 27703
- Home at address 2113 Pink Peony Cir, Durham, NC 27703

Winterberry
$458,482
- 4 bd
- 3.5 ba
- 2,259 sqft
2113 Pink Peony Cir, Durham, NC 27703
Floor plans in Sweetbrier
- View details for Lacey - Vanguard Collection

Lacey - Vanguard Collection
$485,000+- 4 bd
- 3.5 ba
- 2,465 sqft
- View details for Nantahala II - Vanguard Collection

Nantahala II - Vanguard Collection
$537,000+- 4 bd
- 2.5 ba
- 2,450 sqft
About the builder - Mungo Homes
Neighborhood
Home address
Schools in Durham Public Schools
GreatSchools’ Summary Rating calculation is based on 4 of the school’s themed ratings, including test scores, student/academic progress, college readiness, and equity. This information should only be used as a reference. Jome is not affiliated with GreatSchools and does not endorse or guarantee this information. Please reach out to schools directly to verify all information and enrollment eligibility. Data provided by GreatSchools.org © 2025
Places of interest
Getting around
Air quality

Considering this home?
Our expert will guide your tour, in-person or virtual
Need more information?
Text or call (888) 486-2818
Financials
Estimated monthly payment
Let us help you find your dream home
How many bedrooms are you looking for?
Similar homes nearby
Recently added communities in this area
Nearby communities in Durham
New homes in nearby cities
More New Homes in Durham, NC
Clayton Properties Group INC, MLS 10123422
© 2025 Doorify MLS, Inc. of North Carolina. All rights reserved. Brokers make an effort to deliver accurate information, but buyers should independently verify any information on which they will rely in a transaction. The listing broker shall not be responsible for any typographical errors, misinformation, or misprints, and they shall be held totally harmless from any damages arising from reliance upon this data. This data is provided exclusively for consumers’ personal, non-commercial use. Some IDX listings have been excluded from this IDX display. Closed (sold) listings may have been listed and/or sold by a real estate firm other than the firm(s) featured on this website. Closed data is not available until the sale of the property is recorded in the MLS. Home sale data is not an appraisal, CMA, competitive or comparative market analysis, or home valuation of any property. Listings marked with an icon are provided courtesy of the Doorify MLS, Inc. of North Carolina, Internet Data Exchange Database.
Read moreLast checked Feb 16, 10:10 am
- Jome
- New homes search
- North Carolina
- Raleigh-Durham Area
- Durham County
- Durham
- Sweetbrier
- 1109 Westerland Wy 28, Durham, NC 27703































