














Book your tour. Save an average of $18,473. We'll handle the rest.
- Confirmed tours
- Get matched & compare top deals
- Expert help, no pressure
- No added fees
Estimated value based on Jome data, T&C apply


































- 5 bd
- 4 ba
- 3,610 sqft
2534 Vining Branch Wy, Apex, NC 27523
Why tour with Jome?
- No pressure toursTour at your own pace with no sales pressure
- Expert guidanceGet insights from our home buying experts
- Exclusive accessSee homes and deals not available elsewhere
Jome is featured in
- Single-Family
- Under construction
- $334.34/sqft
- West facing
Home description
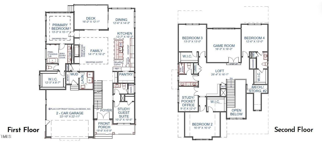
Framed Walkable Version of this Plan on Lot 17!! Welcome to Estates at White Oak! Nice Brick Accented Elevation w/Stained Wood Porch Columns & Relaxing Front Porch w/Double Door Entry to 2 Story Foyer is Very Inviting!! 1st Flr Features Trayed Primary Bdrm w/Tub inside Shower in Bath & Large WIC! Guest Suite/Study! Large Gourmet Kitchen w/Large Hidden Pantry! Open Family Rm w/Trayed 11' Ceiling w/Nice Glass Slider Doorway to Deck!! Upstairs Features Large 16x16 Bonus!! Generous Loft w/Pocket Office & Private Study!! 3 Bdrms w/WICs & 2 Full Baths!! Laundry Chute!!! Structural Options still Available! You can Add a Screen Porch, 4 Season Room off Family Rm, Wet Bar, Grilling Deck Too! Upgrade Pantry into a Gourmet Chef's Scullery!! Add Powder Room on 1st!!! Upstairs you can Add a Wet Bar & Covered or UnCovered Balcony to Game Room!!! Great Standard Finishes!! Great Location!! Great Wake County Schools!! Delayed Start to Allow Structural Options to be Added if Wanted!!! Contact Listing Agent for further details or with any questions!! Renderings Show Options Not Included in Purchase Price and are for Demonstration Purposes Only of Possible Options. Other Homesites Available! You are Welcome to Visit the Community and See Your Future Homesite and that Back Yard View! All of the View off the Back & None of the Maintenance!
Coldwell Banker HPW New Homes, MLS 10121846
Information last verified by Jome: Today at 4:27 AM (December 17, 2025)
Home highlights
Raleigh’s premier arena hosting NHL games, concerts, and events near NC State and suburban neighborhoods.
Book your tour. Save an average of $18,473. We'll handle the rest.
We collect exclusive builder offers, book your tours, and support you from start to housewarming.
- Confirmed tours
- Get matched & compare top deals
- Expert help, no pressure
- No added fees
Estimated value based on Jome data, T&C apply
Home details
- Property status:
- Under construction
- Lot size (acres):
- 0.15
- Size:
- 3,610 sqft
- Stories:
- 2
- Beds:
- 5
- Baths:
- 4
- Garage spaces:
- 2
- Facing direction:
- West
Construction details
- Year Built:
- 2026
- Roof:
- Metal Roofing, Asphalt Roofing, Shingle Roofing
Home features & finishes
- Appliances:
- Exhaust Fan Vented
- Construction Materials:
- CementBrick
- Cooling:
- Central Air
- Flooring:
- Carpet FlooringTile FlooringHardwood Flooring
- Garage/Parking:
- Door OpenerGarageAttached Garage
- Interior Features:
- Ceiling-HighWalk-In ClosetCrown MoldingFoyerPantrySliding DoorsStorageTray CeilingBreakfast BarSeparate ShowerFrench DoorsDouble Vanity
- Kitchen:
- DishwasherMicrowave OvenDisposalStainless Steel AppliancesGas CooktopQuartz countertopCook TopKitchen Island
- Laundry facilities:
- Laundry Facilities On Main LevelUtility/Laundry Room
- Lighting:
- Lighting Recessed
- Property amenities:
- BasementDeckGas Log FireplaceSoaking TubLandscapingWalk-in ShowerFireplacePorch
- Rooms:
- Primary Bedroom On MainKitchenDining RoomFamily RoomBreakfast AreaOpen Concept FloorplanPrimary Bedroom Downstairs

Get a consultation with our New Homes Expert
- See how your home builds wealth
- Plan your home-buying roadmap
- Discover hidden gems
Utility information
- Heating:
- Zoned Heating, Water Heater, Central Heating, Gas Heating, Forced Air Heating
- Utilities:
- Electricity Available, Natural Gas Available, Underground Utilities, Phone Available, Cable Available, Water Available
Community amenities
- Sidewalks Available
Neighborhood
Home address
Schools in Wake County Schools
GreatSchools’ Summary Rating calculation is based on 4 of the school’s themed ratings, including test scores, student/academic progress, college readiness, and equity. This information should only be used as a reference. Jome is not affiliated with GreatSchools and does not endorse or guarantee this information. Please reach out to schools directly to verify all information and enrollment eligibility. Data provided by GreatSchools.org © 2025
Places of interest
Getting around
Natural hazards risk
Climate hazards can impact homes and communities, with risks varying by location. These scores reflect the potential impact of natural disasters and climate-related risks on Wake County
Provided by FEMA

Considering this home?
Our expert will guide your tour, in-person or virtual
Need more information?
Text or call (888) 486-2818
Financials
Let us help you find your dream home
How many bedrooms are you looking for?
Similar homes nearby
Recently added communities in this area
Nearby communities in Apex
New homes in nearby cities
More New Homes in Apex, NC
Coldwell Banker HPW New Homes, MLS 10121846
© 2025 Doorify MLS, Inc. of North Carolina. All rights reserved. Brokers make an effort to deliver accurate information, but buyers should independently verify any information on which they will rely in a transaction. The listing broker shall not be responsible for any typographical errors, misinformation, or misprints, and they shall be held totally harmless from any damages arising from reliance upon this data. This data is provided exclusively for consumers’ personal, non-commercial use. Some IDX listings have been excluded from this IDX display. Closed (sold) listings may have been listed and/or sold by a real estate firm other than the firm(s) featured on this website. Closed data is not available until the sale of the property is recorded in the MLS. Home sale data is not an appraisal, CMA, competitive or comparative market analysis, or home valuation of any property. Listings marked with an icon are provided courtesy of the Doorify MLS, Inc. of North Carolina, Internet Data Exchange Database.
Read moreLast checked Dec 17, 10:10 am
- Jome
- New homes search
- North Carolina
- Raleigh-Durham Area
- Wake County
- Apex
- 2534 Vining Branch Wy, Apex, NC 27523



























