
































- 4 bd
- 3.5 ba
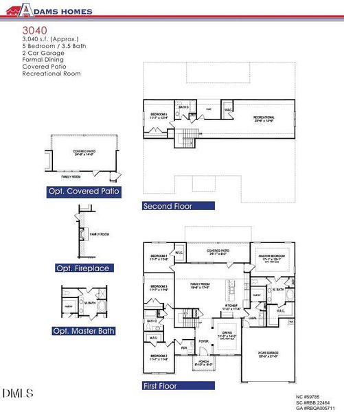
- 3,040 sqft
582 Sweet Potato Ln, Unit Lot 39, Nashville, NC 27856
- Single-Family
- $146.25/sqft
- $250/annual HOA
- 0.46-acre lot
New Homes for Sale Near 582 Sweet Potato Ln, Unit Lot 39, Nashville, NC 27856
About this Home
UNDER CONSTRUCTION. Spacious 3040 sq. ft. home offering main-level living on a beautiful .46-acre homesite. This thoughtfully designed plan features a 2-car garage, a stunning coffered ceiling in the formal dining room, and a tray ceiling in the primary suite. The primary bathroom includes a separate tub and shower for added luxury.
The gourmet kitchen is highlighted by quartz countertops and flows seamlessly into the open living space — perfect for entertaining.
Upstairs you'll find a 5th bedroom, a full bathroom, and an expansive 23x14 recreational room, creating the ideal space for guests, a media room, or a home office. THIS IS A 5 BEDROOM PLAN, septic permit is a 4-bedroom.
Adams Homes Realty- NC Inc, MLS 10121283
May also be listed on the Adams Homes website
Information last verified by Jome: Today at 4:12 AM (April 1, 2026)
Home details
- Property status:
- Sold
- Lot size (acres):
- 0.46
- Size:
- 3,040 sqft
- Stories:
- 1.5
- Beds:
- 4
- Baths:
- 3
- Half baths:
- 1
- Garage spaces:
- 2
Construction details
- Builder Name:
- Adams Homes
- Year Built:
- 2025
- Roof:
- Shingle Roofing
Home features & finishes
- Construction Materials:
- ConcreteVinyl SidingStone
- Cooling:
- Ceiling Fan(s)Central Air
- Flooring:
- Laminate FlooringCarpet Flooring
- Garage/Parking:
- Door OpenerGarageFront Entry Garage/ParkingAttached Garage
- Interior Features:
- Walk-In ClosetCrown MoldingCoffered CeilingPantryTray CeilingSeparate Shower
- Kitchen:
- Quartz countertopKitchen Island
- Property amenities:
- BasementPatioFireplace
Room details
Master Bedroom
Kitchen
Dining Room
Utility information
- Heating:
- Forced Air Heating

Community details
Harvest Creek
by Adams Homes, Nashville, NC
- 12 homes
- 1,826 - 3,213 sqft
View Harvest Creek details
More homes in Harvest Creek
- Home at address 600 Sweet Potato Ln, Nashville, NC 27856

$393,800
Move-in ready- 4 bd
- 2.5 ba
- 2,505 sqft
600 Sweet Potato Ln, Nashville, NC 27856
- Home at address 1491 Pecan Dr, Unit Model Home, Nashville, NC 27856

$396,200
Move-in ready- 4 bd
- 2.5 ba
- 2,505 sqft
1491 Pecan Dr, Unit Model Home, Nashville, NC 27856
- Home at address 1590 Pecan Dr, Nashville, NC 27856

$407,095
Move-in ready- 4 bd
- 2.5 ba
- 2,505 sqft
1590 Pecan Dr, Nashville, NC 27856
- Home at address 1737 Pecan Dr, Nashville, NC 27856

$423,100
Move-in ready- 4 bd
- 3 ba
- 2,604 sqft
1737 Pecan Dr, Nashville, NC 27856
- Home at address 1737 Pecan, Lot 21 Dr, Nashville, NC 27856

$423,100
Move-in ready- 4 bd
- 3 ba
- 2,604 sqft
1737 Pecan, Lot 21 Dr, Nashville, NC 27856
- Home at address 1667 Pecan Dr, Nashville, NC 27856
Savings$434,900
Move-in ready- 5 bd
- 3.5 ba
- 2,628 sqft
1667 Pecan Dr, Nashville, NC 27856
About the builder - Adams Homes

- 161communities on Jome
- 1,200homes on Jome
Neighborhood
Home address
Schools in Nash-Rocky Mount Schools
GreatSchools’ Summary Rating calculation is based on 4 of the school’s themed ratings, including test scores, student/academic progress, college readiness, and equity. This information should only be used as a reference. Jome is not affiliated with GreatSchools and does not endorse or guarantee this information. Please reach out to schools directly to verify all information and enrollment eligibility. Data provided by GreatSchools.org © 2025
Places of interest
Getting around
Noise level
A Soundscore™ rating is a number between 50 (very loud) and 100 (very quiet) that tells you how loud a location is due to environmental noise.
Financials
Nearby communities in Nashville
Homes in Nashville by Adams Homes
Recently added communities in this area
Other Builders in Nashville, NC
Nearby sold homes
New homes in nearby cities
More New Homes in Nashville, NC
Adams Homes Realty- NC Inc, MLS 10121283
© 2025 Doorify MLS, Inc. of North Carolina. All rights reserved. Brokers make an effort to deliver accurate information, but buyers should independently verify any information on which they will rely in a transaction. The listing broker shall not be responsible for any typographical errors, misinformation, or misprints, and they shall be held totally harmless from any damages arising from reliance upon this data. This data is provided exclusively for consumers’ personal, non-commercial use. Some IDX listings have been excluded from this IDX display. Closed (sold) listings may have been listed and/or sold by a real estate firm other than the firm(s) featured on this website. Closed data is not available until the sale of the property is recorded in the MLS. Home sale data is not an appraisal, CMA, competitive or comparative market analysis, or home valuation of any property. Listings marked with an icon are provided courtesy of the Doorify MLS, Inc. of North Carolina, Internet Data Exchange Database.
Read moreLast checked Apr 1, 10:10 am
- Jome
- New homes search
- North Carolina
- Nash County
- Nashville
- Harvest Creek
- 582 Sweet Potato Ln, Unit Lot 39, Nashville, NC 27856


















































