





















- 4 bd
- 2.5 ba
- 1,930 sqft
12502 Susanna Dr, Charlotte, NC 28214
- Townhouse
- $194.82/sqft
- 0.97-acre lot
- 111 days on Jome
New Homes for Sale Near 12502 Susanna Dr, Charlotte, NC 28214
About this Home
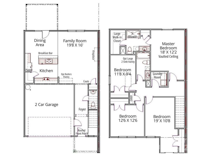
New Construction, Duet Home home on nearly 1 acre. Create your own backyard OASIS! These homes feature great lot sizes without restrictions. No HOA! Fence in your property for maximum privacy. The builder is offering up to $10,000 to buyers at closing, if a preferred lender is used, making this an unbeatable opportunity. Enjoy stylish modern/craftsman finishes, luxury vinyl plank flooring on the main level, and luxury tile in all baths and the laundry room. This spacious layout features 4 bedrooms. Bright white and soft gray tones create a fresh, inviting atmosphere. SC Homes delivers desirable upgrades at an affordable price. Discover your dream home today! All photos are representation photos and help to give an idea of the possibilities this home and land can offer. The only fencing provided by the builder is the 16' privacy fencing between the units.
EXP Realty LLC Mooresville, MLS CAR4299514
May also be listed on the SouthCraft Builders website
Information last verified by Jome: Today at 5:00 PM (December 24, 2025)
Home details
- Property status:
- Sold
- Neighborhood:
- Harwood Lane
- Lot size (acres):
- 0.97
- Size:
- 1,930 sqft
- Stories:
- 2
- Beds:
- 4
- Baths:
- 2
- Half baths:
- 1
- Garage spaces:
- 2
- Fence:
- Privacy Fence, Partial Fence
Construction details
- Builder Name:
- SouthCraft Builders
- Year Built:
- 2025
- Roof:
- Composition Roofing
Home features & finishes
- Construction Materials:
- Stone
- Cooling:
- Central Air
- Flooring:
- Vinyl FlooringCarpet FlooringTile Flooring
- Foundation Details:
- Slab
- Garage/Parking:
- Door OpenerGarageAttached Garage
- Interior Features:
- Walk-In ClosetFoyerPantry
- Kitchen:
- DishwasherMicrowave OvenKitchen IslandKitchen Range
- Laundry facilities:
- Laundry Facilities On Upper LevelUtility/Laundry Room
- Pets:
- Pets Allowed
- Property amenities:
- PatioFireplace
- Rooms:
- Living RoomOpen Concept Floorplan
- Security system:
- Smoke DetectorCarbon Monoxide Detector
Utility information
- Heating:
- Heat Pump, Water Heater
- Utilities:
- Electricity Available
About the builder - SouthCraft Builders
Neighborhood
Home address
- Neighborhood:
- Harwood Lane
- City:
- Charlotte
- County:
- Mecklenburg
- Zip Code:
- 28214
Schools in Charlotte-Mecklenburg Schools
GreatSchools’ Summary Rating calculation is based on 4 of the school’s themed ratings, including test scores, student/academic progress, college readiness, and equity. This information should only be used as a reference. Jome is not affiliated with GreatSchools and does not endorse or guarantee this information. Please reach out to schools directly to verify all information and enrollment eligibility. Data provided by GreatSchools.org © 2025
Places of interest
Getting around
Air quality
Noise level
A Soundscore™ rating is a number between 50 (very loud) and 100 (very quiet) that tells you how loud a location is due to environmental noise.
Natural hazards risk
Climate hazards can impact homes and communities, with risks varying by location. These scores reflect the potential impact of natural disasters and climate-related risks on Mecklenburg County
Provided by FEMA
Financials
Nearby communities in Charlotte
Homes in Charlotte Neighborhoods
- Toddville Road
- Cotswold
- Westerly Hills
- Beatties Ford-Trinity
- Highland Creek
- Smallwood
- Hickory Grove
- Oakdale South
- Montclaire South
- Back Creek Church Road
- Nevin Community
- Provincetowne
- Enderly Park
- Oakhurst
- Mineral Springs-Rumble Road
- Eagle Lake
- Myers Park
- Coulwood West
- York Road
- Elizabeth
- Mallard Creek - Withrow Downs
- Newell
- Echo Hills
- Sedgefield
- Lansdowne
- Plaza-Shamrock
- Whiteoak
- Steele Creek
- Ponderosa-Wingate
- Derita-Statesville
- Starmount
- Marshbrooke
- North Charlotte
- Foxcroft
- Slater Rd-Hamilton Circle
- Eastland-Wilora Lake
- Seversville
- Optimist Park
- Tryon Hills
- Wendover-Sedgewood
- Belmont
- Oaklawn
- Sherwood Forest
- Villa Heights
- Double Oaks
- Providence Park
- Sugaw Creek-Ritch Ave
- Wessex Square
- Plaza-Eastway
- Oakview Terrace
- Plaza Midwood
- Biddleville
- Prosperity Church Road
- Third Ward
- Sardis Forest
- Wesley Heights
- Lockwood
- Olde Providence North
- Sardis Woods
- Dilworth
- College Downs
- Carmel
- Druid Hills South
- Reid Park
- Briarcreek-Woodland
- Lakewood
- Westchester
- Sunset Road
- Barclay Downs
- West Sugar Creek-W T Harris Bl
- Freedom Park
- University City North
- Ballantyne West
- Oxford Hunt
- Yorkmount
- Collingwood
- North Lake
- Closeburn-Glenkirk
- Firestone-Garden Park
- Thomasboro-Hoskins
- Davis Lake
- Harris-Houston
- Hidden Valley
- Oakdale North
- Henderson Circle
- Madison Park
- Downtown Charlotte
- Farm Pond
- Mountainbrook
- Seven Eagles
- Shannon Park
- Plaza Hills
- Chantilly
- West Blvd
- Newell South
- Marlwood
- Lincoln Heights
- Harwood Lane
- Providence Crossing
- Brookhill
Recently added communities in this area
Other Builders in Charlotte, NC
Nearby sold homes
New homes in nearby cities
More New Homes in Charlotte, NC
EXP Realty LLC Mooresville, MLS CAR4299514
Based on information submitted to the MLS GRID as of 10/21/2024 2:31 PM CDT. All data is obtained from various sources and may not have been verified by the broker or MLS GRID. Supplied Open House Information is subject to change without notice. All information should be independently reviewed and verified for accuracy. Properties may or may not be listed by the office/agent presenting the information. Properties displayed may be listed or sold by various participants in the MLS. The Digital Millennium Copyright Act of 1998, 17 U.S.C. § 512 (the “DMCA”) provides recourse for copyright owners who believe that material appearing on the Internet infringes their rights under U.S. copyright law. If you believe in good faith that any content or material made available in connection with our website or services infringes your copyright, you (or your agent) may send us a notice requesting that the content or material be removed, or access to it blocked. Notices must be sent in writing by email to DMCAnotice@MLSGrid.com. The DMCA requires that your notice of alleged copyright infringement include the following information: (1) description of the copyrighted work that is the subject of claimed infringement; (2) description of the alleged infringing content and information sufficient to permit us to locate the content; (3) contact information for you, including your address, telephone number and email address; (4) a statement by you that you have a good faith belief that the content in the manner complained of is not authorized by the copyright owner, or its agent, or by the operation of any law; (5) a statement by you, signed under penalty of perjury, that the information in the notification is accurate and that you have the authority to enforce the copyrights that are claimed to be infringed; and (6) a physical or electronic signature of the copyright owner or a person authorized to act on the copyright owner’s behalf. Failure to include all of the above information may result in the delay of the processing of your complaint.
Read moreLast checked Dec 24, 5:00 pm
- Jome
- New homes search
- North Carolina
- Charlotte Metropolitan Area
- Mecklenburg County
- Charlotte
- 12502 Susanna Dr, Charlotte, NC 28214



















































