














Book your tour. Save an average of $18,473. We'll handle the rest.
- Confirmed tours
- Get matched & compare top deals
- Expert help, no pressure
- No added fees
Estimated value based on Jome data, T&C apply



























- 5 bd
- 4.5 ba
- 4,390 sqft
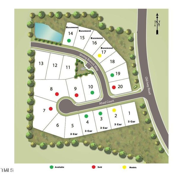
713 Ahad Ct, Apex, NC 27523
Why tour with Jome?
- No pressure toursTour at your own pace with no sales pressure
- Expert guidanceGet insights from our home buying experts
- Exclusive accessSee homes and deals not available elsewhere
Jome is featured in
- Single-Family
- $341.57/sqft
- North facing
- 0.17-acre lot
Home description
Welcome to Estates at White Oak! Eye Catching Rich Color & Brick Accented Semi Custom Hickory Elevation w/Inviting Foyer w/Impressive Window Accented 2 Story Staircase w/1st Floor Featuring a Large Primary Bdrm w/Tub Inside the Shower! Guest Suite w/Private Full Bath! Nice Inviting Dining Rm, 11' Ceiling in 20x16.5 Family Rm!! Gourmet Kitchen w/Large Hidden Pantry & Stainless Steel Appliances! Laundry, Mudroom, & Primary WIC All Connected! The 2nd Floor Features 3 Bdrms w/Full Bath Access & WICs! Private Study! Half Bath! Huge Bonus Rm w/Awesome Media Rm!! Finished Storage Rm!! Large 3 Car Garage!! Backs to Open Space w/Trees & Privacy! 10' Ceiling on 1st w/9' Ceilings on 2nd Standard! North Facing!! Structural Options still Available! You can Add a 2nd Floor Primary, a Screen Porch W/FP off Fam Rm, a 4 Season Room or Screen Porch off Primary on main, a Grilling Deck Too!!! Upgrade Pantry into Chef's Scullery!! Great Standard Finishes!! Great Location!! Great Wake County Schools!! Delayed Start to Allow Structural Options to be Added if Wanted!!! Contact Listing Agent for further details or with any questions!! Other Homesites Available!! Renderings Show Options Not Included in Purchase Price and are for Demonstration Purposes Only of Possible Options. Brand New Community so No Inventory or Model to Walk at this Time but You are Welcome to Visit the Community and See Your Future Homesite and that Back Yard View!
Coldwell Banker HPW New Homes, MLS 10119166
Information last verified by Jome: Today at 4:13 AM (December 18, 2025)
Home highlights
Raleigh’s premier arena hosting NHL games, concerts, and events near NC State and suburban neighborhoods.
Book your tour. Save an average of $18,473. We'll handle the rest.
We collect exclusive builder offers, book your tours, and support you from start to housewarming.
- Confirmed tours
- Get matched & compare top deals
- Expert help, no pressure
- No added fees
Estimated value based on Jome data, T&C apply
Home details
- Property status:
- Pending/Under contract
- Lot size (acres):
- 0.17
- Size:
- 4,390 sqft
- Stories:
- 2
- Beds:
- 5
- Baths:
- 4
- Half baths:
- 1
- Garage spaces:
- 3
- Facing direction:
- North
Construction details
- Year Built:
- 2026
- Roof:
- Asphalt Roofing, Shingle Roofing
Home features & finishes
- Appliances:
- Exhaust FanExhaust Fan Vented
- Construction Materials:
- BlockCementBrick
- Cooling:
- Central Air
- Flooring:
- Carpet FlooringTile FlooringHardwood Flooring
- Foundation Details:
- Block
- Garage/Parking:
- Door OpenerGarageAttached Garage
- Interior Features:
- Ceiling-HighWalk-In ClosetCrown MoldingFoyerPantrySliding DoorsTray CeilingWet BarBreakfast BarSeparate ShowerDouble Vanity
- Kitchen:
- DishwasherMicrowave OvenOvenDisposalStainless Steel AppliancesGas CooktopQuartz countertopCook TopKitchen Island
- Laundry facilities:
- Laundry Facilities On Main LevelUtility/Laundry Room
- Lighting:
- Lighting Recessed
- Property amenities:
- BasementDeckGas Log FireplaceBackyardSoaking TubLandscapingWalk-in ShowerFireplacePorch
- Rooms:
- Primary Bedroom On MainKitchenDining RoomFamily RoomBreakfast AreaOpen Concept FloorplanPrimary Bedroom Downstairs
Utility information
- Heating:
- Zoned Heating, Central Heating, Gas Heating, Forced Air Heating
- Utilities:
- Electricity Available, Natural Gas Available, Cable Available, High Speed Internet Access
Community amenities
- Woods View
- Sidewalks Available
Neighborhood
Home address
Schools in Wake County Schools
GreatSchools’ Summary Rating calculation is based on 4 of the school’s themed ratings, including test scores, student/academic progress, college readiness, and equity. This information should only be used as a reference. Jome is not affiliated with GreatSchools and does not endorse or guarantee this information. Please reach out to schools directly to verify all information and enrollment eligibility. Data provided by GreatSchools.org © 2025
Places of interest
Getting around
Natural hazards risk
Climate hazards can impact homes and communities, with risks varying by location. These scores reflect the potential impact of natural disasters and climate-related risks on Wake County
Provided by FEMA

Considering this home?
Our expert will guide your tour, in-person or virtual
Need more information?
Text or call (888) 486-2818
Financials
Similar homes nearby
Recently added communities in this area
Nearby communities in Apex
New homes in nearby cities
More New Homes in Apex, NC
Coldwell Banker HPW New Homes, MLS 10119166
© 2025 Doorify MLS, Inc. of North Carolina. All rights reserved. Brokers make an effort to deliver accurate information, but buyers should independently verify any information on which they will rely in a transaction. The listing broker shall not be responsible for any typographical errors, misinformation, or misprints, and they shall be held totally harmless from any damages arising from reliance upon this data. This data is provided exclusively for consumers’ personal, non-commercial use. Some IDX listings have been excluded from this IDX display. Closed (sold) listings may have been listed and/or sold by a real estate firm other than the firm(s) featured on this website. Closed data is not available until the sale of the property is recorded in the MLS. Home sale data is not an appraisal, CMA, competitive or comparative market analysis, or home valuation of any property. Listings marked with an icon are provided courtesy of the Doorify MLS, Inc. of North Carolina, Internet Data Exchange Database.
Read moreLast checked Dec 18, 10:10 am
- Jome
- New homes search
- North Carolina
- Raleigh-Durham Area
- Wake County
- Apex
- 713 Ahad Ct, Apex, NC 27523

























