























- 3 bd
- 2 ba
- 1,533 sqft
3270 Eller Drive Ext, Hickory, NC 28602
- Single-Family
- $214.18/sqft
- 0.16-acre lot
- 54 days on Jome
New Homes for Sale Near 3270 Eller Drive Ext, Hickory, NC 28602
About this Home
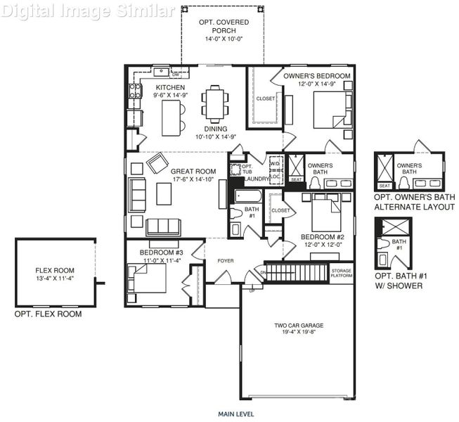
Quick Move In! Newly reduced price! Step into a thoughtfully designed home where comfort meets versatility. The welcoming foyer offers dual entry, leading to a flexible third bedroom easily converting into a flex space—second bedroom perfect for guests, a home office, or a creative retreat. The open-concept kitchen boasts an island, stainless steel appliances, quartz countertops, wall tile backsplash, flowing seamlessly into the great room and dining area—ideal for entertaining. Choose an optional covered porch for relaxed outdoor living. The owner’s suite is a peaceful haven with a walk-in closet and direct access to the laundry room. Enjoy a guest bath with a tub or alternate shower. Community perks include two pickleball courts and proximity to Catawba Valley Medical Center. Optional tankless water heater available. Photos for inspiration only. Home under construction. Primary residence or investment opportunity. Please use GPS address 3225 Short Road, Hickory, NC 28602
NVR Homes, Inc./Ryan Homes, MLS CAR4295157
May also be listed on the Ryan Homes website
Information last verified by Jome: Tuesday at 2:00 PM (March 17, 2026)
Home details
- Property status:
- Sold
- Collection:
- Overture Pointe Ranches
- Lot size (acres):
- 0.16
- Size:
- 1,533 sqft
- Stories:
- 1
- Beds:
- 3
- Baths:
- 2
- Garage spaces:
- 2
Construction details
- Builder Name:
- Ryan Homes
- Completion Date:
- September, 2025
- Year Built:
- 2025
- Roof:
- Shingle Roofing
Home features & finishes
- Appliances:
- Ice Maker
- Construction Materials:
- CementStone
- Flooring:
- Vinyl FlooringCarpet Flooring
- Foundation Details:
- Slab
- Garage/Parking:
- Door OpenerGarageFront Entry Garage/ParkingAttached Garage
- Home amenities:
- Home Accessibility Features
- Interior Features:
- Walk-In ClosetFoyerPantrySliding Doors
- Kitchen:
- DishwasherMicrowave OvenRefrigeratorDisposalGas CooktopKitchen IslandGas OvenKitchen Range
- Laundry facilities:
- DryerWasherLaundry Facilities On Main LevelUtility/Laundry Room
- Property amenities:
- PatioPorch
- Rooms:
- Primary Bedroom On MainOpen Concept FloorplanPrimary Bedroom Downstairs
- Security system:
- Smoke DetectorCarbon Monoxide Detector
Utility information
- Heating:
- Water Heater, Gas Heating
- Utilities:
- Natural Gas on Property, Underground Utilities, Cable Available

Community details
Overture Pointe
by Ryan Homes, Hickory, NC
- 5 homes
- 5 plans
- 1,153 - 1,696 sqft
View Overture Pointe details
Community amenities
- Sidewalks Available
More homes in Overture Pointe
- Home at address 3287 Eller Drive Ext, Hickory, NC 28602

$299,990
Under construction- 3 bd
- 2 ba
- 1,338 sqft
3287 Eller Drive Ext, Hickory, NC 28602
- Home at address 3290 Eller Drive Ext, Hickory, NC 28602

$314,990
Under construction- 3 bd
- 2 ba
- 1,533 sqft
3290 Eller Drive Ext, Hickory, NC 28602
- Home at address 3283 Eller Drive Ext, Hickory, NC 28602

$319,990
Under construction- 3 bd
- 2 ba
- 1,694 sqft
3283 Eller Drive Ext, Hickory, NC 28602
- Home at address 3298 Eller Drive Ext, Hickory, NC 28602

$324,990
Under construction- 3 bd
- 2 ba
- 1,696 sqft
3298 Eller Drive Ext, Hickory, NC 28602
Floor plans in Overture Pointe
About the builder - Ryan Homes
Neighborhood
Home address
Schools in Catawba County Schools
GreatSchools’ Summary Rating calculation is based on 4 of the school’s themed ratings, including test scores, student/academic progress, college readiness, and equity. This information should only be used as a reference. Jome is not affiliated with GreatSchools and does not endorse or guarantee this information. Please reach out to schools directly to verify all information and enrollment eligibility. Data provided by GreatSchools.org © 2025
Places of interest
Getting around
Air quality
Noise level
A Soundscore™ rating is a number between 50 (very loud) and 100 (very quiet) that tells you how loud a location is due to environmental noise.
Financials
Nearby communities in Hickory
Homes in Hickory Neighborhoods
Homes in Hickory by Ryan Homes
Recently added communities in this area
Other Builders in Hickory, NC
Nearby sold homes
New homes in nearby cities
More New Homes in Hickory, NC
NVR Homes, Inc./Ryan Homes, MLS CAR4295157
Based on information submitted to the MLS GRID as of 10/21/2024 2:31 PM CDT. All data is obtained from various sources and may not have been verified by the broker or MLS GRID. Supplied Open House Information is subject to change without notice. All information should be independently reviewed and verified for accuracy. Properties may or may not be listed by the office/agent presenting the information. Properties displayed may be listed or sold by various participants in the MLS. The Digital Millennium Copyright Act of 1998, 17 U.S.C. § 512 (the “DMCA”) provides recourse for copyright owners who believe that material appearing on the Internet infringes their rights under U.S. copyright law. If you believe in good faith that any content or material made available in connection with our website or services infringes your copyright, you (or your agent) may send us a notice requesting that the content or material be removed, or access to it blocked. Notices must be sent in writing by email to DMCAnotice@MLSGrid.com. The DMCA requires that your notice of alleged copyright infringement include the following information: (1) description of the copyrighted work that is the subject of claimed infringement; (2) description of the alleged infringing content and information sufficient to permit us to locate the content; (3) contact information for you, including your address, telephone number and email address; (4) a statement by you that you have a good faith belief that the content in the manner complained of is not authorized by the copyright owner, or its agent, or by the operation of any law; (5) a statement by you, signed under penalty of perjury, that the information in the notification is accurate and that you have the authority to enforce the copyrights that are claimed to be infringed; and (6) a physical or electronic signature of the copyright owner or a person authorized to act on the copyright owner’s behalf. Failure to include all of the above information may result in the delay of the processing of your complaint.
Read moreLast checked Apr 1, 5:00 am
- Jome
- New homes search
- North Carolina
- Catawba County
- Hickory
- Overture Pointe
- Overture Pointe Ranches
- 3270 Eller Drive Ext, Hickory, NC 28602

































































