














Book your tour. Save an average of $18,473. We'll handle the rest.
- Confirmed tours
- Get matched & compare top deals
- Expert help, no pressure
- No added fees
Estimated value based on Jome data, T&C apply



















































Why tour with Jome?
- No pressure toursTour at your own pace with no sales pressure
- Expert guidanceGet insights from our home buying experts
- Exclusive accessSee homes and deals not available elsewhere
Jome is featured in
- Single-Family
- Quick move-in
- $188.59/sqft
- $95/monthly HOA
Home description
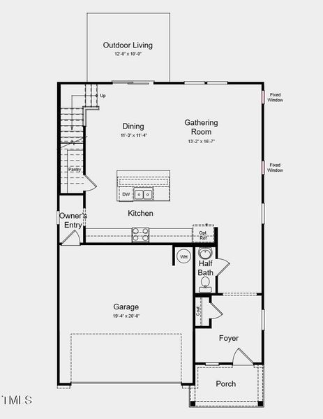
New Construction - Ready Now! Built by America's Most Trusted Homebuilder. Welcome to the Stella at 513 Soar Lane in Eagle Trace! This floorplan welcomes you with a bright foyer that opens to a spacious gathering room and kitchen, complete with a nearby half bath and outdoor living space. This two-story home features four bedrooms and two and a half baths. The primary suite offers a peaceful retreat with double sinks and a large walk-in closet. A two-car garage adds everyday convenience to this thoughtfully designed layout. Just outside your door at Eagle Trace, enjoy walking trails, a playground, and an open-air pavilion. This charming community near Raleigh offers small-town warmth with easy access to shopping, dining, and top-rated schools in the Wake County Public School District. Additional highlights include: additional windows added to the great room, an additional secondary bedroom added upstairs, and additional sink added to the secondary bathroom. MLS#10112641
Taylor Morrison of Carolinas,, MLS 10112641
May also be listed on the Taylor Morrison website
Information last verified by Jome: Today at 10:10 AM (December 29, 2025)
Home highlights
Book your tour. Save an average of $18,473. We'll handle the rest.
We collect exclusive builder offers, book your tours, and support you from start to housewarming.
- Confirmed tours
- Get matched & compare top deals
- Expert help, no pressure
- No added fees
Estimated value based on Jome data, T&C apply
Home details
- Property status:
- Move-in ready
- Lot size (acres):
- 0.11
- Size:
- 2,121 sqft
- Stories:
- 2
- Beds:
- 4
- Baths:
- 2.5
- Garage spaces:
- 2
- Fence:
- No Fence
- Facing direction:
- North
Construction details
- Builder Name:
- Taylor Morrison
- Year Built:
- 2025
- Roof:
- Shingle Roofing
Home features & finishes
- Appliances:
- Exhaust Fan
- Construction Materials:
- CementBrick
- Cooling:
- Central Air
- Flooring:
- Vinyl FlooringCarpet Flooring
- Foundation Details:
- Slab
- Garage/Parking:
- Door OpenerGarageFront Entry Garage/ParkingAttached Garage
- Interior Features:
- Walk-In ClosetFoyerLoft
- Kitchen:
- DishwasherMicrowave OvenGas CooktopGranite countertopKitchen IslandGas OvenKitchen Range
- Laundry facilities:
- Laundry Facilities On Upper LevelUtility/Laundry Room
- Property amenities:
- BasementPatioPorch
- Rooms:
- KitchenDining RoomFamily RoomLiving RoomPrimary Bedroom Upstairs
Room details
Master Bedroom
Dining Room
Bedroom 2
Utility information
- Heating:
- Zoned Heating, Water Heater, Gas Heating, Forced Air Heating
- Utilities:
- Electricity Available, Natural Gas Available, Underground Utilities

Community details
Eagle Trace
by Taylor Morrison, Wendell, NC
- 8 homes
- 7 plans
- 2,121 - 3,236 sqft
View Eagle Trace details
Community amenities
- Playground
More homes in Eagle Trace
Floor plans in Eagle Trace
About the builder - Taylor Morrison
Neighborhood
Home address
Schools in Wake County Schools
- Grades PK-12Privateheritage christian academy5.4 mi615 mack todd rdna
GreatSchools’ Summary Rating calculation is based on 4 of the school’s themed ratings, including test scores, student/academic progress, college readiness, and equity. This information should only be used as a reference. Jome is not affiliated with GreatSchools and does not endorse or guarantee this information. Please reach out to schools directly to verify all information and enrollment eligibility. Data provided by GreatSchools.org © 2025
Places of interest
Getting around
Natural hazards risk
Climate hazards can impact homes and communities, with risks varying by location. These scores reflect the potential impact of natural disasters and climate-related risks on Wake County
Provided by FEMA

Considering this home?
Our expert will guide your tour, in-person or virtual
Need more information?
Text or call (888) 486-2818
Financials
Estimated monthly payment
Similar homes nearby
Recently added communities in this area
Nearby communities in Wendell
New homes in nearby cities
More New Homes in Wendell, NC
Taylor Morrison of Carolinas,, MLS 10112641
© 2025 Doorify MLS, Inc. of North Carolina. All rights reserved. Brokers make an effort to deliver accurate information, but buyers should independently verify any information on which they will rely in a transaction. The listing broker shall not be responsible for any typographical errors, misinformation, or misprints, and they shall be held totally harmless from any damages arising from reliance upon this data. This data is provided exclusively for consumers’ personal, non-commercial use. Some IDX listings have been excluded from this IDX display. Closed (sold) listings may have been listed and/or sold by a real estate firm other than the firm(s) featured on this website. Closed data is not available until the sale of the property is recorded in the MLS. Home sale data is not an appraisal, CMA, competitive or comparative market analysis, or home valuation of any property. Listings marked with an icon are provided courtesy of the Doorify MLS, Inc. of North Carolina, Internet Data Exchange Database.
Read moreLast checked Dec 29, 10:10 am
- Jome
- New homes search
- North Carolina
- Raleigh-Durham Area
- Wake County
- Wendell
- Eagle Trace
- 513 Soar Ln, Wendell, NC 27591







































