














Book your tour. Save an average of $18,473. We'll handle the rest.
- Confirmed tours
- Get matched & compare top deals
- Expert help, no pressure
- No added fees
Estimated value based on Jome data, T&C apply



























- 4 bd
- 2.5 ba
- 1,927 sqft
1361 37Th Avenue Ln Ne, Hickory, NC 28601
Why tour with Jome?
- No pressure toursTour at your own pace with no sales pressure
- Expert guidanceGet insights from our home buying experts
- Exclusive accessSee homes and deals not available elsewhere
Jome is featured in
- Single-Family
- Quick move-in
- $153.09/sqft
- 0.11-acre lot
Home description
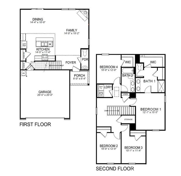
The Aisle is a spacious & modern 2 story home designed w/ open concept living in mind. This home features 4 bedrooms, 2.5 bathrooms & a 2 car garage, making it perfect for your new home. Upon entering the home, you'll be greeted by an inviting foyer that leads directly into the heart of the home: the great room. This impressive space features a living room, dining area, & well-appointed kitchen. The kitchen is equipped w/ a pantry, stainless steel appliances, & a large island with a breakfast bar, making it perfect for both cooking & casual dining. Home also features a primary suite, complete w/ a large walk-in closet & en suite bathroom featuring dual vanities & a spacious shower. The additional 3 bedrooms share a full bath that includes dual vanities. Outback is a patio, perfect for outdoor entertaining or enjoying beautiful weather. The Aisle is the perfect place to call home.
Conveniently Self-Tour on your own between the hours of 7am-9pm daily!
Includes refrigerator, blinds, washer, and dryer for move-in ready convenience!
DR Horton Inc, MLS CAR4296056
May also be listed on the D.R. Horton website
Information last verified by Jome: Today at 12:07 AM (January 12, 2026)
Home highlights
Book your tour. Save an average of $18,473. We'll handle the rest.
We collect exclusive builder offers, book your tours, and support you from start to housewarming.
- Confirmed tours
- Get matched & compare top deals
- Expert help, no pressure
- No added fees
Estimated value based on Jome data, T&C apply
Home details
- Property status:
- Move-in ready
- Lot size (acres):
- 0.11
- Size:
- 1,927 sqft
- Stories:
- 2
- Beds:
- 4
- Baths:
- 2.5
- Garage spaces:
- 2
Construction details
- Builder Name:
- D.R. Horton
- Year Built:
- 2026
- Roof:
- Shingle Roofing
Home features & finishes
- Construction Materials:
- Stone
- Cooling:
- Central Air
- Foundation Details:
- Slab
- Garage/Parking:
- GarageAttached Garage
- Kitchen:
- DishwasherDisposalKitchen Range
- Laundry facilities:
- Dryer
- Property amenities:
- PatioFireplace
- Rooms:
- AtticFamily Room

Get a consultation with our New Homes Expert
- See how your home builds wealth
- Plan your home-buying roadmap
- Discover hidden gems
Utility information
- Heating:
- Water Heater, Central Heating

Community details
Falls at Hickory
by D.R. Horton, Hickory, NC
- 10 homes
- 5 plans
- 1,613 - 2,368 sqft
View Falls at Hickory details
Community amenities
- Dog Park
More homes in Falls at Hickory
- Home at address 1365 37Th Avenue Ln Ne, Hickory, NC 28601

Aisle
$315,000
- 4 bd
- 2.5 ba
- 1,927 sqft
1365 37Th Avenue Ln Ne, Hickory, NC 28601
- Home at address 1378 37Th Avenue Ln Ne, Hickory, NC 28601

Elston
$330,000
- 4 bd
- 2.5 ba
- 2,174 sqft
1378 37Th Avenue Ln Ne, Hickory, NC 28601
- Home at address 1302 37Th Avenue Ln Ne, Hickory, NC 28601

Elston
$330,000
- 4 bd
- 2.5 ba
- 2,174 sqft
1302 37Th Avenue Ln Ne, Hickory, NC 28601
- Home at address 1101 37Th Avenue Ln Ne, Hickory, NC 28601

Robie
$339,000
- 5 bd
- 3 ba
- 2,368 sqft
1101 37Th Avenue Ln Ne, Hickory, NC 28601
Floor plans in Falls at Hickory
About the builder - D.R. Horton

- 1,202communities on Jome
- 8,971homes on Jome
Neighborhood
Home address
Schools in Catawba County Schools
GreatSchools’ Summary Rating calculation is based on 4 of the school’s themed ratings, including test scores, student/academic progress, college readiness, and equity. This information should only be used as a reference. Jome is not affiliated with GreatSchools and does not endorse or guarantee this information. Please reach out to schools directly to verify all information and enrollment eligibility. Data provided by GreatSchools.org © 2025
Places of interest
Getting around
Air quality
Noise level
A Soundscore™ rating is a number between 50 (very loud) and 100 (very quiet) that tells you how loud a location is due to environmental noise.

Considering this home?
Our expert will guide your tour, in-person or virtual
Need more information?
Text or call (888) 486-2818
Financials
Estimated monthly payment
Let us help you find your dream home
How many bedrooms are you looking for?
Similar homes nearby
Recently added communities in this area
Nearby communities in Hickory
New homes in nearby cities
More New Homes in Hickory, NC
DR Horton Inc, MLS CAR4296056
Based on information submitted to the MLS GRID as of 10/21/2024 2:31 PM CDT. All data is obtained from various sources and may not have been verified by the broker or MLS GRID. Supplied Open House Information is subject to change without notice. All information should be independently reviewed and verified for accuracy. Properties may or may not be listed by the office/agent presenting the information. Properties displayed may be listed or sold by various participants in the MLS. The Digital Millennium Copyright Act of 1998, 17 U.S.C. § 512 (the “DMCA”) provides recourse for copyright owners who believe that material appearing on the Internet infringes their rights under U.S. copyright law. If you believe in good faith that any content or material made available in connection with our website or services infringes your copyright, you (or your agent) may send us a notice requesting that the content or material be removed, or access to it blocked. Notices must be sent in writing by email to DMCAnotice@MLSGrid.com. The DMCA requires that your notice of alleged copyright infringement include the following information: (1) description of the copyrighted work that is the subject of claimed infringement; (2) description of the alleged infringing content and information sufficient to permit us to locate the content; (3) contact information for you, including your address, telephone number and email address; (4) a statement by you that you have a good faith belief that the content in the manner complained of is not authorized by the copyright owner, or its agent, or by the operation of any law; (5) a statement by you, signed under penalty of perjury, that the information in the notification is accurate and that you have the authority to enforce the copyrights that are claimed to be infringed; and (6) a physical or electronic signature of the copyright owner or a person authorized to act on the copyright owner’s behalf. Failure to include all of the above information may result in the delay of the processing of your complaint.
Read moreLast checked Jan 12, 11:00 am
- Jome
- New homes search
- North Carolina
- Catawba County
- Hickory
- Falls at Hickory
- 1361 37Th Avenue Ln Ne, Hickory, NC 28601

























