














Book your tour. Save an average of $18,473. We'll handle the rest.
- Confirmed tours
- Get matched & compare top deals
- Expert help, no pressure
- No added fees
Estimated value based on Jome data, T&C apply






















Why tour with Jome?
- No pressure toursTour at your own pace with no sales pressure
- Expert guidanceGet insights from our home buying experts
- Exclusive accessSee homes and deals not available elsewhere
Jome is featured in
- Single-Family
- Quick move-in
- $222.68/sqft
- $250/monthly HOA
Home description
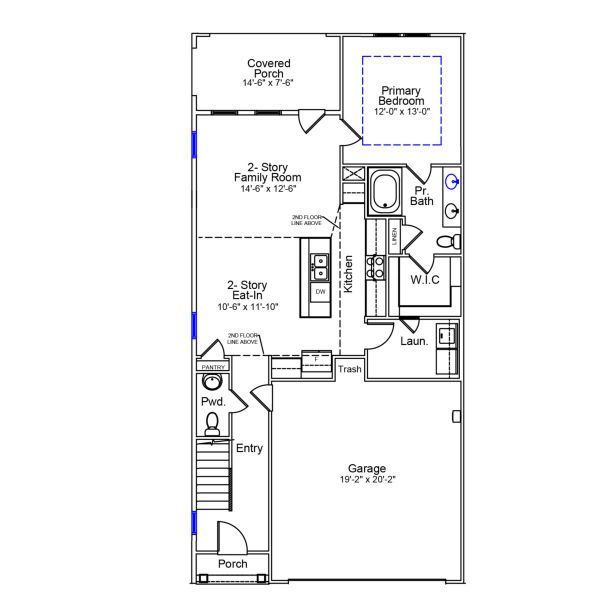
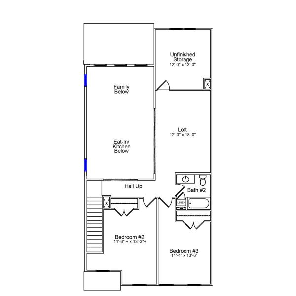
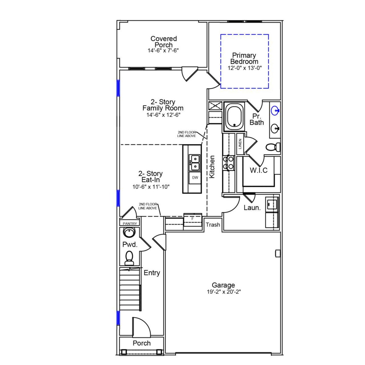
Experience elevated living at Ovation at Sweetbrier, a 55+ active adult community in Durham where thoughtful design and vibrant lifestyle come together. This end-unit townhome stands out with added windows for enhanced natural light and the privacy of a corner location—perfect for those who value peace, quiet, and a little extra sunshine. Inside, a spacious open-concept layout welcomes you with high ceilings and a bright, airy feel. The kitchen and great room flow seamlessly for easy entertaining and everyday comfort. Luxury vinyl plank flooring adds warmth and durability throughout the main level. The chef-inspired gourmet kitchen is equipped with quartz countertops, a large center island, and stainless-steel appliances—including a gas cooktop, built-in microwave, and wall oven—making both cooking and hosting a pleasure. The main-floor primary suite is a private retreat, featuring a large walk-in closet and a beautifully tiled walk-in shower with double vanity. From the great room, step out to your covered rear porch, a cozy outdoor space perfect for quiet mornings, relaxing afternoons, or evening gatherings—rain or shine. Upstairs, you’ll find a flexible loft space, two guest bedrooms, a full bath, and a spacious walk-in storage room to keep everything organized without sacrificing living space. Enjoy the convenience of low-maintenance living, where exterior upkeep is handled for you—giving you more freedom to enjoy travel, hobbies, or simply unwinding. Live life your way at Ovation at Sweetbrier, with access to future resort-style amenities including a clubhouse, pool, hot tub, fitness center, pickleball courts, dog park, outdoor chess park, and scenic walking trails.
May also be listed on the Mungo Homes website
Information last verified by Jome: Today at 6:14 AM (January 15, 2026)
Home highlights
Expansive Raleigh-area park with forested trails, fishing lakes, and quiet escapes near Triangle suburbs.
Book your tour. Save an average of $18,473. We'll handle the rest.
We collect exclusive builder offers, book your tours, and support you from start to housewarming.
- Confirmed tours
- Get matched & compare top deals
- Expert help, no pressure
- No added fees
Estimated value based on Jome data, T&C apply
Home details
- Property status:
- Move-in ready
- Size:
- 1,883 sqft
- Stories:
- 2
- Beds:
- 3
- Baths:
- 2
- Half baths:
- 1
- Garage spaces:
- 2
Construction details
- Builder Name:
- Mungo Homes
- Completion Date:
- January, 2026
Home features & finishes
- Garage/Parking:
- Garage
- Rooms:
- Primary Bedroom Downstairs

Get a consultation with our New Homes Expert
- See how your home builds wealth
- Plan your home-buying roadmap
- Discover hidden gems

Community details
Ovation at Sweetbrier
by Mungo Homes, Durham, NC
- 43 homes
- 9 plans
- 1,383 - 2,216 sqft
View Ovation at Sweetbrier details
More homes in Ovation at Sweetbrier
- Home at address 1205 Bell Heather Rd, Durham, NC 27703

Hyacinth
$395,300
- 3 bd
- 2.5 ba
- 1,856 sqft
1205 Bell Heather Rd, Durham, NC 27703
- Home at address 1103 Bell Heather Rd, Durham, NC 27703

Hyacinth
$395,300
- 3 bd
- 2.5 ba
- 1,856 sqft
1103 Bell Heather Rd, Durham, NC 27703
- Home at address 1105 Bell Heather Rd, Durham, NC 27703

Hydrangea
$405,300
- 3 bd
- 2.5 ba
- 1,883 sqft
1105 Bell Heather Rd, Durham, NC 27703
- Home at address 1103 Bell Heather Rd, Unit 2, Durham, NC 27703

Home
$405,300
- 3 bd
- 2.5 ba
- 1,856 sqft
1103 Bell Heather Rd, Unit 2, Durham, NC 27703
- Home at address 1203 Bell Heather Rd, Durham, NC 27703

Hyacinth
$405,300
- 3 bd
- 2.5 ba
- 1,856 sqft
1203 Bell Heather Rd, Durham, NC 27703
- Home at address 1205 Bell Heather Rd, Unit 18, Durham, NC 27703

Home
$405,300
- 3 bd
- 2.5 ba
- 1,856 sqft
1205 Bell Heather Rd, Unit 18, Durham, NC 27703
Floor plans in Ovation at Sweetbrier

Hyacinth - Vanguard Collection
- 3 bd
- 2.5 ba
- 1,856 sqft

Hydrangea - Vanguard Collection
- 3 bd
- 2.5 ba
- 1,883 sqft

Ford - Genesis Value Collection
- 3 bd
- 2 ba
- 1,383 sqft

Howard - Genesis Value Collection
- 3 bd
- 2 ba
- 1,433 sqft

Lawrence - Genesis Value Collection
- 3 bd
- 2 ba
- 1,500 sqft

Elliott - Vanguard Collection
- 3 bd
- 2 ba
- 1,761 sqft

Goodwin - Vanguard Collection
- 3 bd
- 2 ba
- 1,889 sqft

Hunter - Vanguard Collection
- 3 bd
- 2 ba
- 1,989 sqft
About the builder - Mungo Homes
Neighborhood
Home address
Schools in Durham Public Schools
- Grades PK-03Privatetutorial -1/2 christian schools3.5 mi3026 holloway stna
GreatSchools’ Summary Rating calculation is based on 4 of the school’s themed ratings, including test scores, student/academic progress, college readiness, and equity. This information should only be used as a reference. Jome is not affiliated with GreatSchools and does not endorse or guarantee this information. Please reach out to schools directly to verify all information and enrollment eligibility. Data provided by GreatSchools.org © 2025
Places of interest
Getting around
Air quality

Considering this home?
Our expert will guide your tour, in-person or virtual
Need more information?
Text or call (888) 486-2818
Financials
Estimated monthly payment
Let us help you find your dream home
How many bedrooms are you looking for?
Similar homes nearby
Recently added communities in this area
Nearby communities in Durham
New homes in nearby cities
More New Homes in Durham, NC
- Jome
- New homes search
- North Carolina
- Raleigh-Durham Area
- Durham County
- Durham
- Ovation at Sweetbrier
- 1201 Bell Heather Rd, Durham, NC 27703





























