














Book your tour. Save an average of $18,473. We'll handle the rest.
- Confirmed tours
- Get matched & compare top deals
- Expert help, no pressure
- No added fees
Estimated value based on Jome data, T&C apply




















- 3 bd
- 2 ba
- 1,523 sqft
604 Cypress St, Roseboro, NC 28382
Why tour with Jome?
- No pressure toursTour at your own pace with no sales pressure
- Expert guidanceGet insights from our home buying experts
- Exclusive accessSee homes and deals not available elsewhere
Jome is featured in
- Single-Family
- Quick move-in
- $165.46/sqft
- East facing
Home description
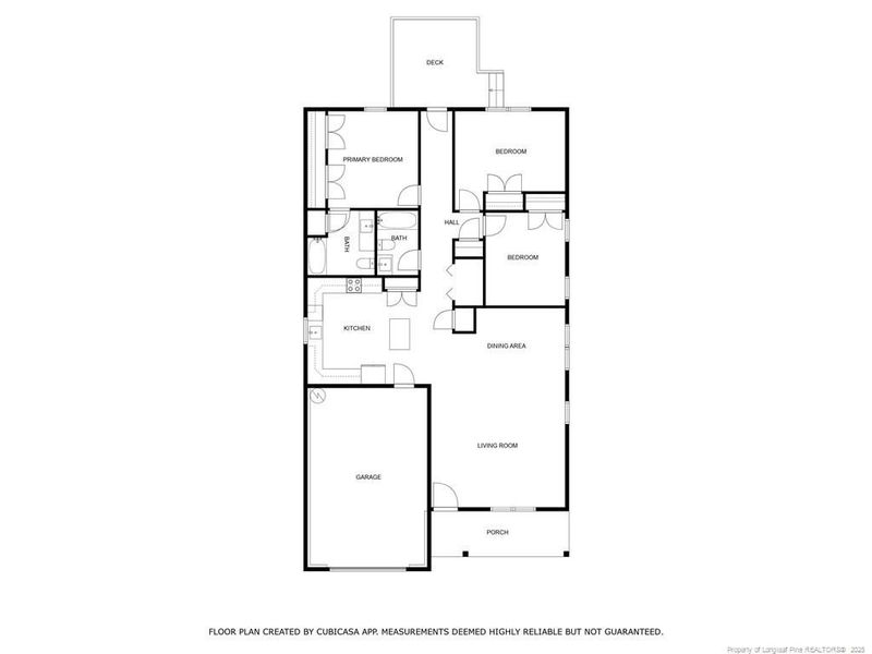
This home is under construction. Floor plan in photos is representative of what's being built. Pictures are of the house next door that is the same house with a flipped floor plan. For illustrative purposes only. There is still time in the build for you to make this home your own, come see it today!****Welcome to your newly constructed home located in the charming small town community of Roseboro, NC. Currently under construction, this home offers 1523 sq ft of well designed living space built on a stem wall brick foundation and not on a monolithic slab. 3 spacious bedrooms, 2 full bathrooms, and 9 ft ceilings throughout. Features include a 385 sq ft attached 1 car garage, granite countertops, stainless steel appliances, luxury vinyl plank floors, large walk in closets, and thoughtful details throughout for both comfort and efficiency. Situated on .42 acres, enjoy outdoor living with a generous deck, perfect for entertaining. BBQs, or quiet evenings at home. Conveniently located just minutes from Hwy 24, this property offers easy access to Fayetteville, Ft Bragg, Clinton and other surrounding areas. Floor plan reflects the layout being used for the build. Floor plan shown is flipped. Back patio in floor plan is going to be a 12x12 wood deck.
HADLEY PROPERTIES REAL ESTATE & DEVELOPMENT, MLS LP745510
Information last verified by Jome: Yesterday at 4:18 AM (December 27, 2025)
Home highlights
Book your tour. Save an average of $18,473. We'll handle the rest.
We collect exclusive builder offers, book your tours, and support you from start to housewarming.
- Confirmed tours
- Get matched & compare top deals
- Expert help, no pressure
- No added fees
Estimated value based on Jome data, T&C apply
Home details
- Property status:
- Move-in ready
- Lot size (acres):
- 0.42
- Size:
- 1,523 sqft
- Beds:
- 3
- Baths:
- 2
- Garage spaces:
- 1
- Facing direction:
- East
Construction details
- Year Built:
- 2025
Home features & finishes
- Cooling:
- Ceiling Fan(s)
- Flooring:
- Vinyl Flooring
- Garage/Parking:
- GarageAttached Garage
- Interior Features:
- Walk-In Closet
- Kitchen:
- DishwasherRefrigeratorStainless Steel AppliancesGranite countertopKitchen CountertopKitchen Island
- Laundry facilities:
- DryerWasherUtility/Laundry Room
- Property amenities:
- BasementDeckPatioPorch
- Rooms:
- KitchenDining RoomLiving RoomOpen Concept Floorplan

Get a consultation with our New Homes Expert
- See how your home builds wealth
- Plan your home-buying roadmap
- Discover hidden gems
Neighborhood
Home address
Schools in Sampson County Schools
GreatSchools’ Summary Rating calculation is based on 4 of the school’s themed ratings, including test scores, student/academic progress, college readiness, and equity. This information should only be used as a reference. Jome is not affiliated with GreatSchools and does not endorse or guarantee this information. Please reach out to schools directly to verify all information and enrollment eligibility. Data provided by GreatSchools.org © 2025
Places of interest
Natural hazards risk
Climate hazards can impact homes and communities, with risks varying by location. These scores reflect the potential impact of natural disasters and climate-related risks on Sampson County
Provided by FEMA

Considering this home?
Our expert will guide your tour, in-person or virtual
Need more information?
Text or call (888) 486-2818
Financials
Let us help you find your dream home
How many bedrooms are you looking for?
Similar homes nearby
Recently added communities in this area
Nearby communities in Roseboro
New homes in nearby cities
More New Homes in Roseboro, NC
HADLEY PROPERTIES REAL ESTATE & DEVELOPMENT, MLS LP745510
© 2025 Doorify MLS, Inc. of North Carolina. All rights reserved. Brokers make an effort to deliver accurate information, but buyers should independently verify any information on which they will rely in a transaction. The listing broker shall not be responsible for any typographical errors, misinformation, or misprints, and they shall be held totally harmless from any damages arising from reliance upon this data. This data is provided exclusively for consumers’ personal, non-commercial use. Some IDX listings have been excluded from this IDX display. Closed (sold) listings may have been listed and/or sold by a real estate firm other than the firm(s) featured on this website. Closed data is not available until the sale of the property is recorded in the MLS. Home sale data is not an appraisal, CMA, competitive or comparative market analysis, or home valuation of any property. Listings marked with an icon are provided courtesy of the Doorify MLS, Inc. of North Carolina, Internet Data Exchange Database.
Read moreLast checked Dec 27, 10:10 pm
- Jome
- New homes search
- North Carolina
- Sampson County
- Roseboro
- 604 Cypress St, Roseboro, NC 28382




















