














Book your tour. Save an average of $18,473. We'll handle the rest.
- Confirmed tours
- Get matched & compare top deals
- Expert help, no pressure
- No added fees
Estimated value based on Jome data, T&C apply






- 1 bd
- 2 ba
- 1,291 sqft
3565 Big Timber Dr, Sherrills Ford, NC 28673
Why tour with Jome?
- No pressure toursTour at your own pace with no sales pressure
- Expert guidanceGet insights from our home buying experts
- Exclusive accessSee homes and deals not available elsewhere
Jome is featured in
- Single-Family
- Under construction
- $425.25/sqft
- 0.68-acre lot
Home description
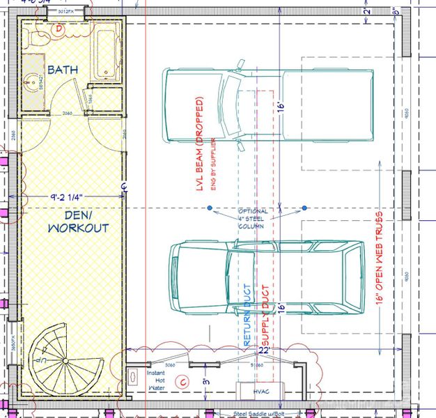
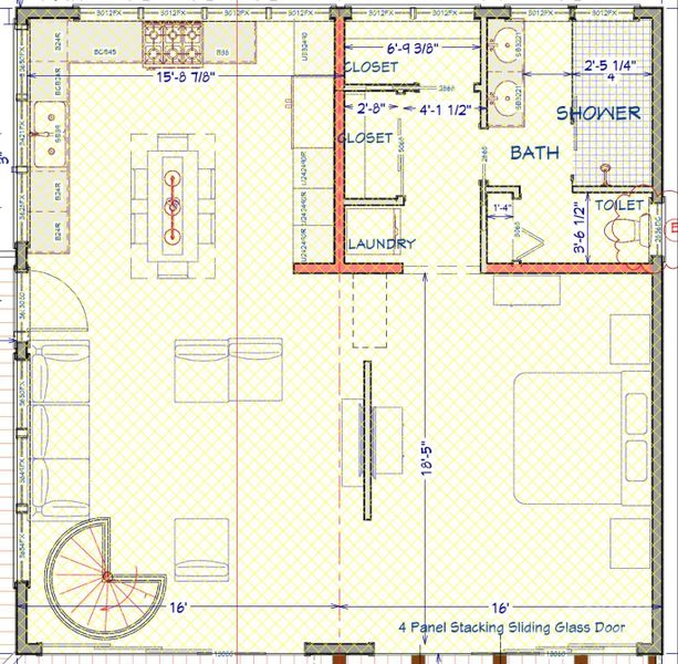
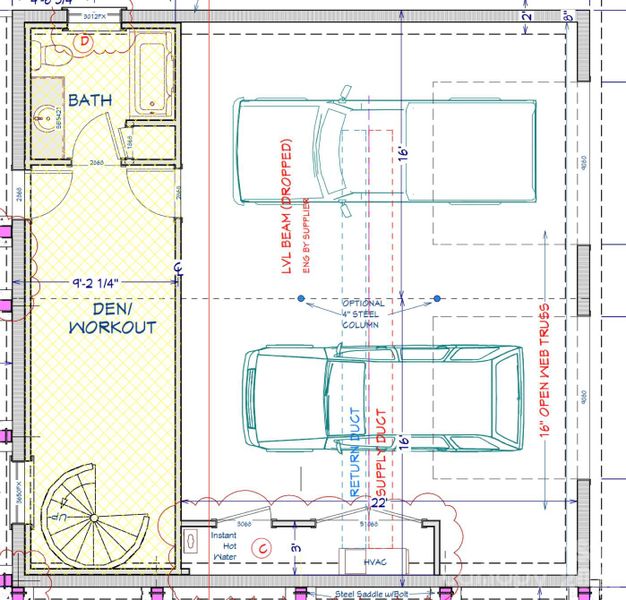
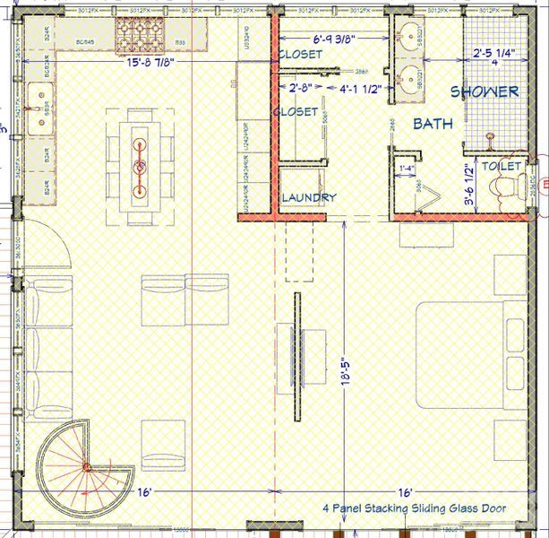
A Contemporary dream for efficient living with all the comforts. Builder will begin construction soon and buyers can choose the final touches. Main level has 2 Car Garage, finished Office/Den/Workout and Full Bath. An Elevator goes in place of the spiral stairs shown on plan, takes you to the upper level for an Open Living and Gourmet Kitchen. Kitchen will include high end stainless steel appliances. Primary Bedroom has a huge Closet and Laundry. Primary Bath includes oversized shower and dual sinks. Located on 0.68 acre lot with well and septic. Property will come with lake access and day dock within a short distance from home.
Buyer can add pool $125k, hot tub $45k, pool house $75k. Room for an additional Garage.
COMPASS, MLS CAR4271835
Information last verified by Jome: Today at 12:01 AM (December 6, 2025)
Home highlights
1300-acre outdoor hub minutes from Charlotte offering rafting, biking, climbing and festival events.
Book your tour. Save an average of $18,473. We'll handle the rest.
We collect exclusive builder offers, book your tours, and support you from start to housewarming.
- Confirmed tours
- Get matched & compare top deals
- Expert help, no pressure
- No added fees
Estimated value based on Jome data, T&C apply
Home details
- Property status:
- Under construction
- Lot size (acres):
- 0.68
- Size:
- 1,291 sqft
- Stories:
- 2
- Beds:
- 1
- Baths:
- 2
- Garage spaces:
- 2
Construction details
- Year Built:
- 2025
- Roof:
- Shingle Roofing
Home features & finishes
- Construction Materials:
- Wood
- Cooling:
- Central Air
- Flooring:
- Wood Flooring
- Foundation Details:
- Slab
- Garage/Parking:
- Door OpenerGarageAttached Garage
- Interior Features:
- Walk-In ClosetStorage
- Kitchen:
- DishwasherMicrowave OvenRefrigeratorDisposalGas CooktopSelf Cleaning OvenGas OvenKitchen Range
- Laundry facilities:
- Laundry Facilities On Upper LevelLaundry Facilities In Closet
- Property amenities:
- DeckElevatorFireplace
- Rooms:
- Open Concept Floorplan
- Security system:
- Smoke Detector
Utility information
- Heating:
- Water Heater, Forced Air Heating, Tankless water heater
- Utilities:
- Propane
Community amenities
- Waterfront View
Neighborhood
Home address
- City:
- Sherrills Ford
- County:
- Catawba
- Zip Code:
- 28673
Schools in Catawba County Schools
GreatSchools’ Summary Rating calculation is based on 4 of the school’s themed ratings, including test scores, student/academic progress, college readiness, and equity. This information should only be used as a reference. Jome is not affiliated with GreatSchools and does not endorse or guarantee this information. Please reach out to schools directly to verify all information and enrollment eligibility. Data provided by GreatSchools.org © 2025
Places of interest
Getting around
Natural hazards risk
Climate hazards can impact homes and communities, with risks varying by location. These scores reflect the potential impact of natural disasters and climate-related risks on Catawba County
Provided by FEMA

Considering this home?
Our expert will guide your tour, in-person or virtual
Need more information?
Text or call (888) 486-2818
Financials
Similar homes nearby
Recently added communities in this area
Nearby communities in Sherrills Ford
New homes in nearby cities
More New Homes in Sherrills Ford, NC
COMPASS, MLS CAR4271835
Based on information submitted to the MLS GRID as of 10/21/2024 2:31 PM CDT. All data is obtained from various sources and may not have been verified by the broker or MLS GRID. Supplied Open House Information is subject to change without notice. All information should be independently reviewed and verified for accuracy. Properties may or may not be listed by the office/agent presenting the information. Properties displayed may be listed or sold by various participants in the MLS. The Digital Millennium Copyright Act of 1998, 17 U.S.C. § 512 (the “DMCA”) provides recourse for copyright owners who believe that material appearing on the Internet infringes their rights under U.S. copyright law. If you believe in good faith that any content or material made available in connection with our website or services infringes your copyright, you (or your agent) may send us a notice requesting that the content or material be removed, or access to it blocked. Notices must be sent in writing by email to DMCAnotice@MLSGrid.com. The DMCA requires that your notice of alleged copyright infringement include the following information: (1) description of the copyrighted work that is the subject of claimed infringement; (2) description of the alleged infringing content and information sufficient to permit us to locate the content; (3) contact information for you, including your address, telephone number and email address; (4) a statement by you that you have a good faith belief that the content in the manner complained of is not authorized by the copyright owner, or its agent, or by the operation of any law; (5) a statement by you, signed under penalty of perjury, that the information in the notification is accurate and that you have the authority to enforce the copyrights that are claimed to be infringed; and (6) a physical or electronic signature of the copyright owner or a person authorized to act on the copyright owner’s behalf. Failure to include all of the above information may result in the delay of the processing of your complaint.
Read moreLast checked Dec 6, 11:00 am
- Home
- New homes
- North Carolina
- Charlotte Metropolitan Area
- Catawba County
- Sherrills Ford
- 3565 Big Timber Dr, Sherrills Ford, NC 28673



























