


































- 3 bd
- 2.5 ba
- 2,268 sqft
2141 Moss Bluff Dr, Mint Hill, NC 28227
- Single-Family
- $244.7/sqft
- $339/quarterly HOA
- Southwest facing
New Homes for Sale Near 2141 Moss Bluff Dr, Mint Hill, NC 28227
About this Home
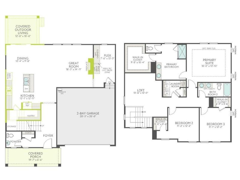
This new home is move-in ready at Alton Creek, and our designers have outfitted it with today's most popular finishes. Situated on a corner homesite in this popular Mint Hill community, this home's open concept design creates connected living spaces, while three spacious bedrooms offer a private sanctuary on the second floor. Call today to schedule a tour!
Gourmet Kitchen with upgraded cabinets, stainless appliances including wall oven and gas range, quartz counters and large island
Covered outdoor living backing to mature trees
Drop Zone and Lower Built-In cabinets in Flex room
Modern Open Railing on Stairs
Full brick exterior
36" Gas Fireplace
TRI Pointe Homes INC, MLS CAR4296467
May also be listed on the Tri Pointe Homes website
Information last verified by Jome: Wednesday at 8:58 AM (March 18, 2026)
Home details
- Property status:
- Sold
- Lot size (acres):
- 0.13
- Size:
- 2,268 sqft
- Stories:
- 2
- Beds:
- 3
- Baths:
- 2.5
- Garage spaces:
- 2
- Facing direction:
- Southwest
Construction details
- Builder Name:
- Tri Pointe Homes
- Completion Date:
- August, 2025
- Year Built:
- 2025
- Roof:
- Shingle Roofing
Home features & finishes
- Construction Materials:
- CementBrick
- Cooling:
- Central Air
- Flooring:
- Vinyl FlooringCarpet FlooringTile Flooring
- Foundation Details:
- Slab
- Garage/Parking:
- GarageAttached Garage
- Interior Features:
- Walk-In ClosetFoyerPantrySliding DoorsWalk-In Pantry
- Kitchen:
- DishwasherMicrowave OvenOvenDisposalGas CooktopKitchen IslandGas OvenKitchen Range
- Laundry facilities:
- Laundry Facilities On Upper LevelUtility/Laundry Room
- Pets:
- Pets Allowed
- Property amenities:
- FireplacePorch
- Rooms:
- AtticKitchenPowder RoomDining RoomFamily RoomOpen Concept FloorplanPrimary Bedroom Upstairs
- Security system:
- Smoke DetectorCarbon Monoxide Detector
Utility information
- Heating:
- Zoned Heating, Water Heater, Forced Air Heating, Tankless water heater
Community amenities
- Sidewalks Available
- Walking, Jogging, Hike Or Bike Trails
- Recreational Facilities
About the builder - Tri Pointe Homes
Neighborhood
Home address
- City:
- Mint Hill
- County:
- Mecklenburg
- Zip Code:
- 28227
Schools in Charlotte-Mecklenburg Schools
- Grades KG-05Publicnew southeast elementary relief school2.3 mi11615 idlewild roadna
GreatSchools’ Summary Rating calculation is based on 4 of the school’s themed ratings, including test scores, student/academic progress, college readiness, and equity. This information should only be used as a reference. Jome is not affiliated with GreatSchools and does not endorse or guarantee this information. Please reach out to schools directly to verify all information and enrollment eligibility. Data provided by GreatSchools.org © 2025
Places of interest
Getting around
Noise level
A Soundscore™ rating is a number between 50 (very loud) and 100 (very quiet) that tells you how loud a location is due to environmental noise.
Financials
Nearby communities in Mint Hill
Recently added communities in this area
Other Builders in Mint Hill, NC
Nearby sold homes
New homes in nearby cities
More New Homes in Mint Hill, NC
TRI Pointe Homes INC, MLS CAR4296467
Based on information submitted to the MLS GRID as of 10/21/2024 2:31 PM CDT. All data is obtained from various sources and may not have been verified by the broker or MLS GRID. Supplied Open House Information is subject to change without notice. All information should be independently reviewed and verified for accuracy. Properties may or may not be listed by the office/agent presenting the information. Properties displayed may be listed or sold by various participants in the MLS. The Digital Millennium Copyright Act of 1998, 17 U.S.C. § 512 (the “DMCA”) provides recourse for copyright owners who believe that material appearing on the Internet infringes their rights under U.S. copyright law. If you believe in good faith that any content or material made available in connection with our website or services infringes your copyright, you (or your agent) may send us a notice requesting that the content or material be removed, or access to it blocked. Notices must be sent in writing by email to DMCAnotice@MLSGrid.com. The DMCA requires that your notice of alleged copyright infringement include the following information: (1) description of the copyrighted work that is the subject of claimed infringement; (2) description of the alleged infringing content and information sufficient to permit us to locate the content; (3) contact information for you, including your address, telephone number and email address; (4) a statement by you that you have a good faith belief that the content in the manner complained of is not authorized by the copyright owner, or its agent, or by the operation of any law; (5) a statement by you, signed under penalty of perjury, that the information in the notification is accurate and that you have the authority to enforce the copyrights that are claimed to be infringed; and (6) a physical or electronic signature of the copyright owner or a person authorized to act on the copyright owner’s behalf. Failure to include all of the above information may result in the delay of the processing of your complaint.
Read moreLast checked Apr 1, 12:00 am
- Jome
- New homes search
- North Carolina
- Charlotte Metropolitan Area
- Mecklenburg County
- Mint Hill
- Alton Creek
- 2141 Moss Bluff Dr, Mint Hill, NC 28227





















































