














Book your tour. Save an average of $18,473. We'll handle the rest.
- Confirmed tours
- Get matched & compare top deals
- Expert help, no pressure
- No added fees
Estimated value based on Jome data, T&C apply







Why tour with Jome?
- No pressure toursTour at your own pace with no sales pressure
- Expert guidanceGet insights from our home buying experts
- Exclusive accessSee homes and deals not available elsewhere
Jome is featured in
- Single-Family
- $205.71/sqft
- 0.19-acre lot
- 307 days on Jome
Home description
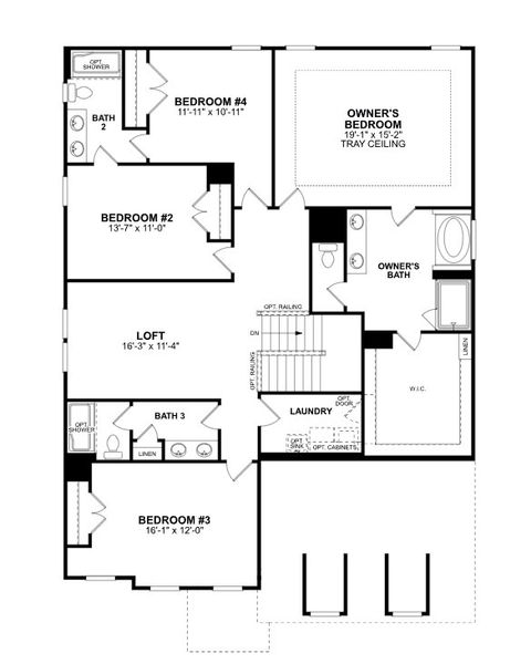
Welcome to the Blair! This beautiful 6bed, 5.5bath home boasts all the modern features you could dream of. Walking in, you are greeted with a homey foyer with a formal dining room off to the side. The space opens up to your family room, kitchen & breakfast area. The family room is completed with a cozy fireplace for those cold winter nights. The kitchen houses a spacious island, stainless steel appliances & a gorgeous wood hood above the range. You'll notice the main level has easy maintainable EVP flooring, as well as, beautiful crown molding & 5" baseboard throughout the main living spaces. Finishing this level you have a private guest suite. On the second level, there are 3 additional bedrooms, 2 bathrooms, a loft & laundry room before entering your owners suite. The suite is donned with a tray ceiling, crown molding & LED lights. The owners bath has a spa-like shower with seating & 2 separate shower heads. Finally, the 3rd floor houses a private 6th bedroom & bath. Welcome home!
M/I Homes, MLS CAR4241261
May also be listed on the M/I Homes website
Information last verified by Jome: Today at 12:01 AM (January 12, 2026)
Book your tour. Save an average of $18,473. We'll handle the rest.
We collect exclusive builder offers, book your tours, and support you from start to housewarming.
- Confirmed tours
- Get matched & compare top deals
- Expert help, no pressure
- No added fees
Estimated value based on Jome data, T&C apply
Home details
- Property status:
- Pending/Under contract
- Lot size (acres):
- 0.19
- Size:
- 3,889 sqft
- Stories:
- 3+
- Beds:
- 6
- Baths:
- 5.5
- Garage spaces:
- 2
Construction details
- Builder Name:
- M/I Homes
- Completion Date:
- February, 2025
- Year Built:
- 2024
- Roof:
- Shingle Roofing
Home features & finishes
- Construction Materials:
- CementStone
- Flooring:
- Vinyl FlooringCarpet FlooringTile Flooring
- Foundation Details:
- Slab
- Garage/Parking:
- GarageFront Entry Garage/ParkingAttached Garage
- Interior Features:
- Walk-In ClosetFoyerWalk-In PantryLoftFrench Doors
- Kitchen:
- DishwasherMicrowave OvenOvenDisposalGas CooktopConvection OvenSelf Cleaning OvenKitchen Island
- Laundry facilities:
- Laundry Facilities On Upper LevelUtility/Laundry Room
- Property amenities:
- Gas Log FireplacePatioFireplacePorch
- Rooms:
- AtticDining RoomFamily RoomBreakfast AreaOpen Concept Floorplan
- Security system:
- Smoke DetectorCarbon Monoxide Detector

Get a consultation with our New Homes Expert
- See how your home builds wealth
- Plan your home-buying roadmap
- Discover hidden gems
Utility information
- Heating:
- Zoned Heating, Forced Air Heating
- Utilities:
- Natural Gas Available, Natural Gas on Property, Cable Available

Community details
Spring Grove
by M/I Homes, Huntersville, NC
- 10 homes
- 11 plans
- 2,364 - 3,708 sqft
View Spring Grove details
More homes in Spring Grove
- Home at address 1331 Yellow Springs Dr, Huntersville, NC 28078

Trafford
$615,000
- 4 bd
- 3 ba
- 2,364 sqft
1331 Yellow Springs Dr, Huntersville, NC 28078
- Home at address 2016 Hackney St, Huntersville, NC 28078

Juniper
$647,245
- 4 bd
- 3.5 ba
- 2,730 sqft
2016 Hackney St, Huntersville, NC 28078
- Home at address 2112 Hackney St, Huntersville, NC 28078

Coventry
$673,950
- 4 bd
- 3 ba
- 2,552 sqft
2112 Hackney St, Huntersville, NC 28078
- Home at address 1425 Yellow Springs Dr, Huntersville, NC 28078

Blair
$749,445
- 5 bd
- 4.5 ba
- 3,314 sqft
1425 Yellow Springs Dr, Huntersville, NC 28078
- Home at address 2027 Hackney St, Huntersville, NC 28078

The Fenmore
$783,040
- 5 bd
- 4 ba
- 2,987 sqft
2027 Hackney St, Huntersville, NC 28078
- Home at address 2023 Hackney St, Huntersville, NC 28078

The Fenmore
$788,040
- 5 bd
- 4 ba
- 2,972 sqft
2023 Hackney St, Huntersville, NC 28078
Floor plans in Spring Grove
About the builder - M/I Homes

- 127communities on Jome
- 1,802homes on Jome
Neighborhood
Home address
- City:
- Huntersville
- County:
- Mecklenburg
- Zip Code:
- 28078
Schools in Charlotte-Mecklenburg Schools
- Grades 10-11Privatelock and key academy1.7 mi400 gilead rd unit 732na
GreatSchools’ Summary Rating calculation is based on 4 of the school’s themed ratings, including test scores, student/academic progress, college readiness, and equity. This information should only be used as a reference. Jome is not affiliated with GreatSchools and does not endorse or guarantee this information. Please reach out to schools directly to verify all information and enrollment eligibility. Data provided by GreatSchools.org © 2025
Places of interest
Getting around
Noise level
A Soundscore™ rating is a number between 50 (very loud) and 100 (very quiet) that tells you how loud a location is due to environmental noise.

Considering this home?
Our expert will guide your tour, in-person or virtual
Need more information?
Text or call (888) 486-2818
Financials
Estimated monthly payment
Let us help you find your dream home
How many bedrooms are you looking for?
Similar homes nearby
Recently added communities in this area
Nearby communities in Huntersville
New homes in nearby cities
More New Homes in Huntersville, NC
M/I Homes, MLS CAR4241261
Based on information submitted to the MLS GRID as of 10/21/2024 2:31 PM CDT. All data is obtained from various sources and may not have been verified by the broker or MLS GRID. Supplied Open House Information is subject to change without notice. All information should be independently reviewed and verified for accuracy. Properties may or may not be listed by the office/agent presenting the information. Properties displayed may be listed or sold by various participants in the MLS. The Digital Millennium Copyright Act of 1998, 17 U.S.C. § 512 (the “DMCA”) provides recourse for copyright owners who believe that material appearing on the Internet infringes their rights under U.S. copyright law. If you believe in good faith that any content or material made available in connection with our website or services infringes your copyright, you (or your agent) may send us a notice requesting that the content or material be removed, or access to it blocked. Notices must be sent in writing by email to DMCAnotice@MLSGrid.com. The DMCA requires that your notice of alleged copyright infringement include the following information: (1) description of the copyrighted work that is the subject of claimed infringement; (2) description of the alleged infringing content and information sufficient to permit us to locate the content; (3) contact information for you, including your address, telephone number and email address; (4) a statement by you that you have a good faith belief that the content in the manner complained of is not authorized by the copyright owner, or its agent, or by the operation of any law; (5) a statement by you, signed under penalty of perjury, that the information in the notification is accurate and that you have the authority to enforce the copyrights that are claimed to be infringed; and (6) a physical or electronic signature of the copyright owner or a person authorized to act on the copyright owner’s behalf. Failure to include all of the above information may result in the delay of the processing of your complaint.
Read moreLast checked Jan 12, 12:00 am
- Jome
- New homes search
- North Carolina
- Charlotte Metropolitan Area
- Mecklenburg County
- Huntersville
- Spring Grove
- 919 Mankey Dr, Huntersville, NC 28078




































