








Book your tour. Save an average of $18,473. We'll handle the rest.
We collect exclusive builder offers, book your tours, and support you from start to housewarming.
- Confirmed tours
- Get matched & compare top deals
- Expert help, no pressure
- No added fees
Estimated value based on Jome data, T&C apply









































Why tour with Jome?
- No pressure toursTour at your own pace with no sales pressure
- Expert guidanceGet insights from our home buying experts
- Exclusive accessSee homes and deals not available elsewhere
Jome is featured in
- Townhouse
- Under construction
- $216.61/sqft
- $2,580/annual HOA
Home description
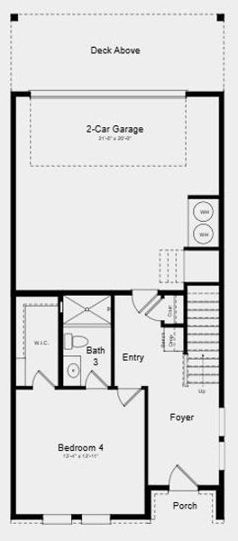
What's Special: No Rear Neighbors | Wooded View | Oversized Deck | Covered Rear Deck | 2nd Floor Laundry Room. New Construction - July Completion! Built by America's Most Trusted Home Builder. Welcome to the Dawson at 610 Alder Creek Way in Alder Creek, where comfort and flexibility come together in a thoughtfully designed layout. Just inside the front door, a spacious foyer leads past a private guest suite with a full bath, perfect for visitors or everyday versatility. The open main level feels light and welcoming, with a bright great room flowing into a chef-inspired kitchen featuring a large center island that’s ideal for casual meals and gathering with family and friends. A nearby dining area opens to a covered deck, making indoor and outdoor entertaining feel effortless. Upstairs, the primary suite offers a relaxing retreat with an oversized walk-in closet and a spa-style bath with dual sinks and a spacious shower. Two secondary bedrooms, a shared full bath, and a conveniently located laundry room complete the upper level. Alder Creek is a new townhome community offering modern living in a location that makes everyday life feel easy and connected. With quick access to GA 400 and Route 20, you are close to the Cumming City Center, nearby dining and shopping, and major employment hubs in Alpharetta, Roswell, and Sandy Springs. Planned amenities including a pool and cabana, dog park, and community park pair perfectly with nearby outdoor recreation, local breweries, and year-round events. Additional Highlights Include: Butler pantry with glass doors and backsplash, LVP tread stairs, whole house blinds and all appliances included. Photos are for representative purposes only. MLS#7758728
Taylor Morrison Realty of Georgia, Inc., MLS 7758728
May also be listed on the Taylor Morrison website
Information last verified by Jome: Today at 2:48 AM (April 24, 2026)
Home highlights
Popular North Georgia lake offering boating, fishing, and lakeside living near metro Atlanta and mountain getaways.
Book your tour. Save an average of $18,473. We'll handle the rest.
We collect exclusive builder offers, book your tours, and support you from start to housewarming.
- Confirmed tours
- Get matched & compare top deals
- Expert help, no pressure
- No added fees
Estimated value based on Jome data, T&C apply
Home details
- Property status:
- Under construction
- Size:
- 2,359 sqft
- Beds:
- 4
- Baths:
- 3
- Half baths:
- 1
- Garage spaces:
- 2
- Fence:
- No Fence
Construction details
- Builder Name:
- Taylor Morrison
- Year Built:
- 2026
- Roof:
- Roof Gutter, Composition Roofing
Home features & finishes
- Construction Materials:
- CementBrick
- Flooring:
- Ceramic FlooringVinyl FlooringTile Flooring
- Foundation Details:
- Slab
- Garage/Parking:
- Door OpenerGarageRear Entry Garage/Parking
- Home amenities:
- InternetGreen Construction
- Interior Features:
- Ceiling-HighWalk-In ClosetWalk-In PantryDouble Vanity
- Kitchen:
- Microwave OvenRefrigeratorDisposalKitchen IslandKitchen Range
- Laundry facilities:
- Laundry Facilities On Upper LevelDryerWasherUtility/Laundry Room
- Lighting:
- Lighting
- Property amenities:
- DeckLandscapingCabinets
- Rooms:
- KitchenFamily RoomOpen Concept Floorplan
- Security system:
- Smoke DetectorCarbon Monoxide Detector

Get a consultation with our New Homes Expert
- See how your home builds wealth
- Plan your home-buying roadmap
- Discover hidden gems
Utility information
- Heating:
- Heat Pump, Zoned Heating
- Sewer:
- Public Sewer
- Utilities:
- Electricity Available, Underground Utilities, Phone Available, Cable Available, Sewer Available, Water Available, High Speed Internet Access
- Water source:
- Public

Community details
Alder Creek
by Taylor Morrison, Cumming, GA
- 5 homes
- 2 plans
- 2,359 - 2,375 sqft
View Alder Creek details
Community amenities
- Woods View
- Dog Park
- Community Pool
- Park Nearby
- Sidewalks Available
- Shopping Nearby
More homes in Alder Creek
- Home at address 749 Meadow Ridge Ln, Cumming, GA 30040

Dawson
$499,990
- 4 bd
- 3.5 ba
- 2,359 sqft
749 Meadow Ridge Ln, Cumming, GA 30040
- Home at address 610 Alder Creek Wy, Cumming, GA 30040

Dawson
$510,990
- 4 bd
- 3.5 ba
- 2,359 sqft
610 Alder Creek Wy, Cumming, GA 30040
- Home at address 623 Oak Bluff Dr, Cumming, GA 30040

Dawson
$524,990
- 4 bd
- 3.5 ba
- 2,359 sqft
623 Oak Bluff Dr, Cumming, GA 30040
- Home at address 623 Oak Bluff Dr, Cumming, GA 30040

Home
$524,990
- 4 bd
- 3.5 ba
- 2,359 sqft
623 Oak Bluff Dr, Cumming, GA 30040
Floor plans in Alder Creek
About the builder - Taylor Morrison

- 315communities on Jome
- 1,351homes on Jome
Neighborhood
Home address
Schools in Forsyth County School District
GreatSchools’ Summary Rating calculation is based on 4 of the school’s themed ratings, including test scores, student/academic progress, college readiness, and equity. This information should only be used as a reference. Jome is not affiliated with GreatSchools and does not endorse or guarantee this information. Please reach out to schools directly to verify all information and enrollment eligibility. Data provided by GreatSchools.org © 2025
Places of interest
Getting around
Air quality

Considering this home?
Our expert will guide your tour, in-person or virtual
Need more information?
Text or call (888) 545-5198
Financials
Estimated monthly payment
Let us help you find your dream home
How many bedrooms are you looking for?
Similar homes nearby
Recently added communities in this area
Nearby communities in Cumming
New homes in nearby cities
More New Homes in Cumming, GA
Taylor Morrison Realty of Georgia, Inc., MLS 7758728
Some IDX listings have been excluded from this IDX display. Listings identified with the FMLS IDX logo come from FMLS and are held by brokerage firms other than the owner of this website. The listing brokerage is identified in any listing details. Information is deemed reliable but is not guaranteed. If you believe any FMLS listing contains material that infringes your copyrighted work please click here to review our DMCA policy and learn how to submit a takedown request. © 2025 First Multiple Listing Service, Inc.
Read moreLast checked Apr 24, 1:40 am
- Jome
- New homes search
- Georgia
- Atlanta Metropolitan Area
- Forsyth County
- Cumming
- Alder Creek
- 610 Alder Creek Wy, Cumming, GA 30040























