



Book your tour. Save an average of $18,473. We'll handle the rest.
We collect exclusive builder offers, book your tours, and support you from start to housewarming.
- Confirmed tours
- Get matched & compare top deals
- Expert help, no pressure
- No added fees
Estimated value based on Jome data, T&C apply
- 5 bd
- 3.5 ba
- 3,728 sqft
9126 E Carroll Rd, Winston, GA 30187
Why tour with Jome?
- No pressure toursTour at your own pace with no sales pressure
- Expert guidanceGet insights from our home buying experts
- Exclusive accessSee homes and deals not available elsewhere
Jome is featured in
- Single-Family
- Quick move-in
- $214.57/sqft
- 2.48-acre lot
Home description
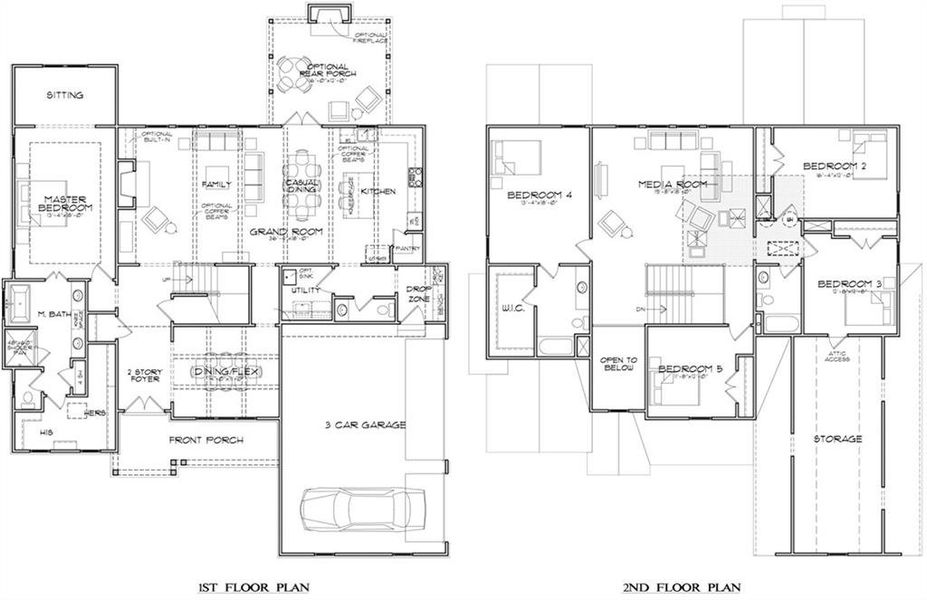
Brand-new construction featuring a thoughtfully designed floor plan with quality finishes throughout. Craftsman style house with master on main, separate dining room and electric fireplace. Large upstairs media/flex room perfect to suit any need! Golf course community.
Kelly Right Real Estate of Georgia, LLC, MLS 7752320
Information last verified by Jome: Today at 2:01 AM (April 19, 2026)
Home highlights
Thrill-packed theme park near Atlanta with coasters, water rides, and family fun in a wooded, suburban setting.
Book your tour. Save an average of $18,473. We'll handle the rest.
We collect exclusive builder offers, book your tours, and support you from start to housewarming.
- Confirmed tours
- Get matched & compare top deals
- Expert help, no pressure
- No added fees
Estimated value based on Jome data, T&C apply
Home details
- Property status:
- Move-in ready
- Lot size (acres):
- 2.48
- Size:
- 3,728 sqft
- Beds:
- 5
- Baths:
- 3
- Half baths:
- 1
- Garage spaces:
- 3
- Fence:
- No Fence
Construction details
- Year Built:
- 2025
- Roof:
- Composition Roofing
Home features & finishes
- Construction Materials:
- ConcreteStone
- Cooling:
- Ceiling Fan(s)Central Air
- Flooring:
- Carpet FlooringTile FlooringHardwood Flooring
- Foundation Details:
- Block
- Garage/Parking:
- Door OpenerGarageSide Entry Garage/Parking
- Home amenities:
- Internet
- Interior Features:
- Ceiling-VaultedWalk-In ClosetFoyerCoffered CeilingWalk-In PantrySeparate ShowerDouble Vanity
- Kitchen:
- DishwasherOvenKitchen IslandDouble Oven
- Laundry facilities:
- Laundry Facilities On Main LevelUtility/Laundry Room
- Lighting:
- Lighting
- Property amenities:
- BasementBalconyDeckBackyardSoaking TubLandscapingElectric FireplaceYardPorch
- Rooms:
- AtticPrimary Bedroom On MainKitchenDining RoomFamily RoomSeparate Living and DiningPrimary Bedroom Downstairs
- Security system:
- Smoke DetectorCarbon Monoxide Detector

Get a consultation with our New Homes Expert
- See how your home builds wealth
- Plan your home-buying roadmap
- Discover hidden gems
Utility information
- Heating:
- Central Heating
- Sewer:
- Septic Tank
- Utilities:
- Electricity Available, Phone Available, Cable Available, Water Available, High Speed Internet Access
- Water source:
- Public
Community amenities
- Greenbelt View
Neighborhood
Home address
Schools in Douglas County School District
GreatSchools’ Summary Rating calculation is based on 4 of the school’s themed ratings, including test scores, student/academic progress, college readiness, and equity. This information should only be used as a reference. Jome is not affiliated with GreatSchools and does not endorse or guarantee this information. Please reach out to schools directly to verify all information and enrollment eligibility. Data provided by GreatSchools.org © 2025
Places of interest
Getting around
Air quality
Natural hazards risk
Provided by FEMA

Considering this home?
Our expert will guide your tour, in-person or virtual
Need more information?
Text or call (888) 545-5198
Financials
Estimated monthly payment
Let us help you find your dream home
How many bedrooms are you looking for?
Similar homes nearby
Recently added communities in this area
Nearby communities in Winston
New homes in nearby cities
More New Homes in Winston, GA
Kelly Right Real Estate of Georgia, LLC, MLS 7752320
Some IDX listings have been excluded from this IDX display. Listings identified with the FMLS IDX logo come from FMLS and are held by brokerage firms other than the owner of this website. The listing brokerage is identified in any listing details. Information is deemed reliable but is not guaranteed. If you believe any FMLS listing contains material that infringes your copyrighted work please click here to review our DMCA policy and learn how to submit a takedown request. © 2025 First Multiple Listing Service, Inc.
Read moreLast checked Apr 19, 7:40 am
- Jome
- New homes search
- Georgia
- Atlanta Metropolitan Area
- Douglas County
- Winston
- 9126 E Carroll Rd, Winston, GA 30187



























