








Book your tour. Save an average of $18,473. We'll handle the rest.
We collect exclusive builder offers, book your tours, and support you from start to housewarming.
- Confirmed tours
- Get matched & compare top deals
- Expert help, no pressure
- No added fees
Estimated value based on Jome data, T&C apply
































Why tour with Jome?
- No pressure toursTour at your own pace with no sales pressure
- Expert guidanceGet insights from our home buying experts
- Exclusive accessSee homes and deals not available elsewhere
Jome is featured in
- Townhouse
- Quick move-in
- $258.73/sqft
- $175/monthly HOA
Home description
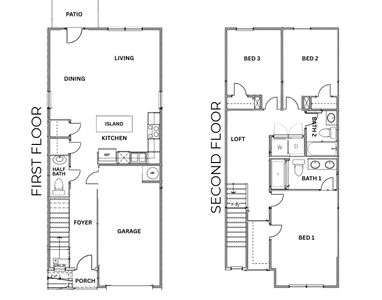
Situated in the trendy West Midtown district, known for its artisanal vibe, industrial minimalism, top-tier retail, and some of Atlanta’s best restaurants, Park Vue offers the perfect balance of urban convenience and serene living. This sought-after neighborhood is also home to high-tech companies, making it a prime location for both work and leisure. Just steps from Westside Park (recently renamed to honor former Mayor Shirley Franklin), Atlanta's largest greenspace, Park Vue offers exclusive community amenities including a gated entrance, a resort-style pool, a relaxing cabana, and a cozy neighborhood fire pit surrounded by Adirondack chairs. The beautifully designed two-story Calliope townhome boasts 1,507 square feet of modern living space. The main floor features a bright, open-concept layout with a gourmet kitchen equipped with a large center island, natural gas cooking, and Quartz countertops. Adjacent to the kitchen is an airy dining area and a spacious family room perfect for gatherings and relaxation. The home also includes a conveniently located powder room on the main floor. Upstairs, the features three spacious bedrooms, including a luxurious Primary Suite that serves as a peaceful retreat. The Primary Suite is flooded with natural light and features a spa-like bathroom with a frameless glass walk-in shower, dual vanities, and a large walk-in closet. Two additional bedrooms are equally spacious, with plenty of closet space, and share a well-appointed full bath. A versatile loft space adds flexibility, ideal for a home office, playroom, or media room. Additional features of this townhome include enhanced vinyl plank flooring throughout, designer lighting, sleek iron railings, energy-efficient windows, and a private one-car garage with extra storage/prewired for a future electric vehicle. This townhome on homesite/lot #200 is READY NOW! For further details and information on current promotions, please contact an onsite Community Sales Manager. Please note that any renderings are for illustrative purposes, and photos may represent sample products of homes under construction. Actual exterior and interior selections may vary by homesite.
Ashton Woods Realty, LLC, MLS 7750155
May also be listed on the Ashton Woods website
Information last verified by Jome: Today at 7:40 PM (April 11, 2026)
Home highlights
Thrill-packed theme park near Atlanta with coasters, water rides, and family fun in a wooded, suburban setting.
Book your tour. Save an average of $18,473. We'll handle the rest.
We collect exclusive builder offers, book your tours, and support you from start to housewarming.
- Confirmed tours
- Get matched & compare top deals
- Expert help, no pressure
- No added fees
Estimated value based on Jome data, T&C apply
Home details
- Property status:
- Move-in ready
- Neighborhood:
- Rockdale
- Lot size (acres):
- 0.03
- Size:
- 1,507 sqft
- Stories:
- 2
- Beds:
- 3
- Baths:
- 2
- Half baths:
- 1
- Garage spaces:
- 1
- Fence:
- No Fence
Construction details
- Builder Name:
- Ashton Woods
- Year Built:
- 2026
- Roof:
- Roof Gutter, Composition Roofing
Home features & finishes
- Appliances:
- Sprinkler System
- Construction Materials:
- Cement
- Cooling:
- Ceiling Fan(s)Central Air
- Flooring:
- Ceramic FlooringVinyl FlooringTile Flooring
- Foundation Details:
- Slab
- Garage/Parking:
- Door OpenerGarageRear Entry Garage/Parking
- Home amenities:
- Green Construction
- Interior Features:
- Ceiling-HighWalk-In ClosetBreakfast BarWalk-In PantryLoftDouble Vanity
- Kitchen:
- DishwasherMicrowave OvenDisposalGas CooktopSelf Cleaning OvenKitchen IslandGas OvenKitchen Range
- Laundry facilities:
- Laundry Facilities In HallLaundry Facilities On Upper LevelDryerLaundry Facilities In Closet
- Property amenities:
- BarLandscapingCabinetsPatio
- Rooms:
- KitchenOpen Concept Floorplan
- Security system:
- Smoke DetectorCarbon Monoxide Detector

Get a consultation with our New Homes Expert
- See how your home builds wealth
- Plan your home-buying roadmap
- Discover hidden gems
Utility information
- Heating:
- Water Heater, Central Heating, Gas Heating
- Sewer:
- Public Sewer
- Utilities:
- Electricity Available, Natural Gas Available, Underground Utilities, Sewer Available, Water Available
- Water source:
- Public

Community details
Park Vue
by Ashton Woods, Atlanta, GA
- 2 homes
- 1 plan
- 1,507 - 1,507 sqft
View Park Vue details
Community amenities
- Gated Community
- Community Pool
- Park Nearby
- Sidewalks Available
- Greenbelt View
- Walking, Jogging, Hike Or Bike Trails
- Shopping Nearby
More homes in Park Vue
- Home at address 1526 Bryson Dr Nw, Atlanta, GA 30318

Calliope
Savings$448,340
- 3 bd
- 2.5 ba
- 1,507 sqft
1526 Bryson Dr Nw, Atlanta, GA 30318
Floor plans in Park Vue
About the builder - Ashton Woods
Neighborhood
Home address
Schools in Atlanta City School District
GreatSchools’ Summary Rating calculation is based on 4 of the school’s themed ratings, including test scores, student/academic progress, college readiness, and equity. This information should only be used as a reference. Jome is not affiliated with GreatSchools and does not endorse or guarantee this information. Please reach out to schools directly to verify all information and enrollment eligibility. Data provided by GreatSchools.org © 2025
Places of interest
Getting around
5 nearby routes: 5 bus, 0 rail, 0 otherAir quality
Noise level
A Soundscore™ rating is a number between 50 (very loud) and 100 (very quiet) that tells you how loud a location is due to environmental noise.

Considering this home?
Our expert will guide your tour, in-person or virtual
Need more information?
Text or call (888) 545-5198
Financials
Estimated monthly payment
Let us help you find your dream home
How many bedrooms are you looking for?
Similar homes nearby
Recently added communities in this area
Nearby communities in Atlanta
New homes in nearby cities
More New Homes in Atlanta, GA
Ashton Woods Realty, LLC, MLS 7750155
Some IDX listings have been excluded from this IDX display. Listings identified with the FMLS IDX logo come from FMLS and are held by brokerage firms other than the owner of this website. The listing brokerage is identified in any listing details. Information is deemed reliable but is not guaranteed. If you believe any FMLS listing contains material that infringes your copyrighted work please click here to review our DMCA policy and learn how to submit a takedown request. © 2025 First Multiple Listing Service, Inc.
Read moreLast checked Apr 11, 7:40 pm
- Jome
- New homes search
- Georgia
- Atlanta Metropolitan Area
- Fulton County
- Atlanta
- Park Vue
- 1524 Bryson Dr Nw, Atlanta, GA 30318

























