

Book your tour. Save an average of $18,473. We'll handle the rest.
We collect exclusive builder offers, book your tours, and support you from start to housewarming.
- Confirmed tours
- Get matched & compare top deals
- Expert help, no pressure
- No added fees
Estimated value based on Jome data, T&C apply
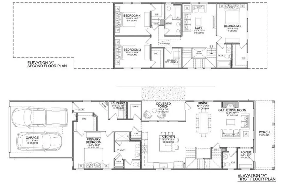
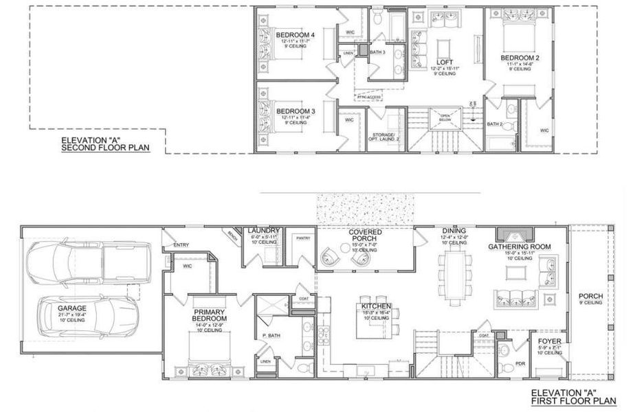
- 4 bd
- 3.5 ba
- 2,549 sqft
Undisclosed Address
Why tour with Jome?
- No pressure toursTour at your own pace with no sales pressure
- Expert guidanceGet insights from our home buying experts
- Exclusive accessSee homes and deals not available elsewhere
Jome is featured in
- Single-Family
- Under construction
- $207.27/sqft
- 0.13-acre lot
Home description
Welcome to Summerville! A charming neighborhood of southern style water color homes. Beautifully designed with modern finishes. Spacious and open for today's lifestyle. The first floor is an entertainers dream featuring 10' ceilings and plenty of natural light. Chef's kitchen with oversized island, double ovens and gas cooktop with vented hood. Family room with fireplace and dedicated breakfast area leading to the covered patio. Primary bedroom with spa inspired bath and walk in closet located on the main level. Laundry conveniently located off of the garage entrance. The second floor features 9'ceilings and open loft along with 3 secondary bedrooms and ample closet space. Optional laundry available upstairs or use the space for additional storage. Located minutes from downtown Athens and the UGA campus, shopping and dining with easy access to major roads. Offering a $10k incentive with one of our preferred lenders. We invite you to tour today! Home is under construction / estimated closing May - June 2026.
Ansley Real Estate | Christie's International Real Estate, MLS 7739656
Information last verified by Jome: Today at 7:40 AM (March 31, 2026)
Book your tour. Save an average of $18,473. We'll handle the rest.
We collect exclusive builder offers, book your tours, and support you from start to housewarming.
- Confirmed tours
- Get matched & compare top deals
- Expert help, no pressure
- No added fees
Estimated value based on Jome data, T&C apply
Home details
- Property status:
- Under construction
- Lot size (acres):
- 0.13
- Size:
- 2,549 sqft
- Stories:
- 2
- Beds:
- 4
- Baths:
- 3
- Half baths:
- 1
- Fence:
- No Fence
Construction details
- Year Built:
- 2026
- Roof:
- Composition Roofing
Home features & finishes
- Construction Materials:
- Concrete
- Cooling:
- Ceiling Fan(s)Central Air
- Flooring:
- Carpet FlooringTile FlooringHardwood Flooring
- Foundation Details:
- Slab
- Garage/Parking:
- Door OpenerGarageAttached Garage
- Interior Features:
- Walk-In ClosetPantryWalk-In PantryLoft
- Kitchen:
- DishwasherMicrowave OvenOvenDisposalKitchen IslandDouble Oven
- Property amenities:
- PatioFireplacePorch
- Rooms:
- AtticPrimary Bedroom On MainKitchenPrimary Bedroom Downstairs

Get a consultation with our New Homes Expert
- See how your home builds wealth
- Plan your home-buying roadmap
- Discover hidden gems
Utility information
- Heating:
- Water Heater, Central Heating, Gas Heating, Tankless water heater
- Utilities:
- Electricity Available, Natural Gas Available, Underground Utilities, Phone Available, Cable Available, Sewer Available, Water Available
Neighborhood
Home address
Schools in Clarke County School District
GreatSchools’ Summary Rating calculation is based on 4 of the school’s themed ratings, including test scores, student/academic progress, college readiness, and equity. This information should only be used as a reference. Jome is not affiliated with GreatSchools and does not endorse or guarantee this information. Please reach out to schools directly to verify all information and enrollment eligibility. Data provided by GreatSchools.org © 2025
Places of interest
Getting around
Natural hazards risk
Provided by FEMA

Considering this home?
Our expert will guide your tour, in-person or virtual
Need more information?
Text or call (888) 545-5198
Financials
Estimated monthly payment
Let us help you find your dream home
How many bedrooms are you looking for?
Similar homes nearby
Recently added communities in this area
Nearby communities in Athens
New homes in nearby cities
More New Homes in Athens, GA
Ansley Real Estate | Christie's International Real Estate, MLS 7739656
Some IDX listings have been excluded from this IDX display. Listings identified with the FMLS IDX logo come from FMLS and are held by brokerage firms other than the owner of this website. The listing brokerage is identified in any listing details. Information is deemed reliable but is not guaranteed. If you believe any FMLS listing contains material that infringes your copyrighted work please click here to review our DMCA policy and learn how to submit a takedown request. © 2025 First Multiple Listing Service, Inc.
Read moreLast checked Mar 31, 7:40 am






















