








Book your tour. Save an average of $18,473. We'll handle the rest.
We collect exclusive builder offers, book your tours, and support you from start to housewarming.
- Confirmed tours
- Get matched & compare top deals
- Expert help, no pressure
- No added fees
Estimated value based on Jome data, T&C apply













































- 4 bd
- 2.5 ba
- 2,608 sqft
834 Trillium Dr, Locust Grove, GA 30248
Why tour with Jome?
- No pressure toursTour at your own pace with no sales pressure
- Expert guidanceGet insights from our home buying experts
- Exclusive accessSee homes and deals not available elsewhere
Jome is featured in
- Single-Family
- Quick move-in
- $143.33/sqft
- $500/annual HOA
Home description
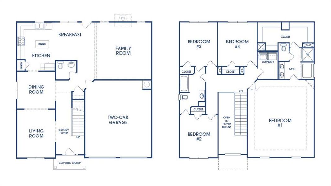
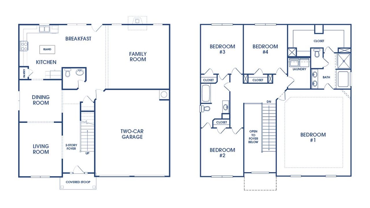
SPECIAL FINANCING CALL TODAY FOR LOW INTEREST RATE OPPORTUNITIES. Swim community in an amazing location just steps from Tanger Outlet with easy access to I-75. The Packard floorplan at Cedar Ridge is a 4 bedroom, 2 full bath plus a powder room two-story home covering 2,608 sq. ft. The 2-car garage ensures plenty of space for vehicles and storage. Traditional in design but modern in features, this home will never go out of style. Open the door to a formal living room and adjacent formal dining room so you never have to compromise when entertaining family and friends. Beyond is an island kitchen and a casual dining area perfect for quick bites. With stainless steel appliances, contemporary cabinetry and granite countertops, home cooks will feel right at ease. Plus, there is an open and airy family room so everyone can get involved. Upstairs offers a must see oversized bedroom suite with plenty pf space to create a home office or just an area to lounge. The spa-like bath includes a garden tub, separate shower an dual vanities plus generous closets. Secondary bedrooms have extra storage and there is a well-appointed hall bath. Every home is a smart home. Our homes come equipped with smart home technology, letting you control everything from lighting to temperature from the convenience of your smart device. Photos used for illustrative purposes and may not depict actual home.
D.R.. Horton Realty of Georgia, Inc, MLS 7749958
May also be listed on the D.R. Horton website
Information last verified by Jome: Yesterday at 2:27 AM (April 20, 2026)
Home highlights
Book your tour. Save an average of $18,473. We'll handle the rest.
We collect exclusive builder offers, book your tours, and support you from start to housewarming.
- Confirmed tours
- Get matched & compare top deals
- Expert help, no pressure
- No added fees
Estimated value based on Jome data, T&C apply
Home details
- Property status:
- Move-in ready
- Lot size (acres):
- 0.18
- Size:
- 2,608 sqft
- Stories:
- 2
- Beds:
- 4
- Baths:
- 2
- Half baths:
- 1
- Garage spaces:
- 2
- Fence:
- No Fence
Construction details
- Builder Name:
- D.R. Horton
- Year Built:
- 2026
- Roof:
- Composition Roofing
Home features & finishes
- Appliances:
- Trash Compactor
- Construction Materials:
- CementConcrete
- Cooling:
- Ceiling Fan(s)Central Air
- Flooring:
- Laminate FlooringCarpet Flooring
- Foundation Details:
- Slab
- Garage/Parking:
- GarageAttached Garage
- Home amenities:
- Green Construction
- Interior Features:
- Walk-In ClosetFoyerPantryTray CeilingSeparate ShowerDouble Vanity
- Kitchen:
- DishwasherMicrowave OvenKitchen Island
- Laundry facilities:
- Laundry Facilities On Upper LevelUtility/Laundry Room
- Property amenities:
- Patio
- Rooms:
- KitchenPowder RoomDining RoomFamily RoomLiving RoomBreakfast AreaSeparate Living and DiningPrimary Bedroom Upstairs
- Security system:
- Fire Alarm SystemSmoke DetectorCarbon Monoxide Detector

Get a consultation with our New Homes Expert
- See how your home builds wealth
- Plan your home-buying roadmap
- Discover hidden gems
Utility information
- Heating:
- Electric Heating, Water Heater, Central Heating
- Sewer:
- Public Sewer
- Utilities:
- Other
- Water source:
- Public

Community details
Cedar Ridge - Locust Grove Station
by D.R. Horton, Locust Grove, GA
- 16 homes
- 5 plans
- 1,862 - 2,608 sqft
View Cedar Ridge - Locust Grove Station details
Community amenities
- Community Pool
- Sidewalks Available
More homes in Cedar Ridge - Locust Grove Station
- Home at address 146 Aster Ave, Locust Grove, GA 30248

Penwell
$334,703
- 4 bd
- 2.5 ba
- 2,205 sqft
146 Aster Ave, Locust Grove, GA 30248
- Home at address 353 Arnica Dr, Locust Grove, GA 30248

Images coming soon
Penwell
$339,800
- 4 bd
- 2.5 ba
- 2,205 sqft
353 Arnica Dr, Locust Grove, GA 30248
- Home at address 349 Arnica Dr, Locust Grove, GA 30248

Galen
$344,800
- 4 bd
- 2.5 ba
- 2,338 sqft
349 Arnica Dr, Locust Grove, GA 30248
- Home at address 830 Trillium Dr, Locust Grove, GA 30248

Penwell
$344,800
- 4 bd
- 2.5 ba
- 2,205 sqft
830 Trillium Dr, Locust Grove, GA 30248
- Home at address 837 Trillium Dr, Locust Grove, GA 30248

Penwell
$359,800
- 4 bd
- 2.5 ba
- 2,205 sqft
837 Trillium Dr, Locust Grove, GA 30248
- Home at address 842 Trillium Dr, Locust Grove, GA 30248

Galen
$364,800
- 4 bd
- 2.5 ba
- 2,338 sqft
842 Trillium Dr, Locust Grove, GA 30248
Floor plans in Cedar Ridge - Locust Grove Station
About the builder - D.R. Horton

- 1,155communities on Jome
- 10,680homes on Jome
Neighborhood
Home address
- City:
- Locust Grove
- County:
- Henry
- Zip Code:
- 30248
Schools in Henry County School District
GreatSchools’ Summary Rating calculation is based on 4 of the school’s themed ratings, including test scores, student/academic progress, college readiness, and equity. This information should only be used as a reference. Jome is not affiliated with GreatSchools and does not endorse or guarantee this information. Please reach out to schools directly to verify all information and enrollment eligibility. Data provided by GreatSchools.org © 2025
Places of interest
Getting around
Air quality
Noise level
A Soundscoreâ„¢ rating is a number between 50 (very loud) and 100 (very quiet) that tells you how loud a location is due to environmental noise.

Considering this home?
Our expert will guide your tour, in-person or virtual
Need more information?
Text or call (888) 545-5198
Financials
Estimated monthly payment
Let us help you find your dream home
How many bedrooms are you looking for?
Similar homes nearby
Recently added communities in this area
Nearby communities in Locust Grove
New homes in nearby cities
More New Homes in Locust Grove, GA
D.R.. Horton Realty of Georgia, Inc, MLS 7749958
Some IDX listings have been excluded from this IDX display. Listings identified with the FMLS IDX logo come from FMLS and are held by brokerage firms other than the owner of this website. The listing brokerage is identified in any listing details. Information is deemed reliable but is not guaranteed. If you believe any FMLS listing contains material that infringes your copyrighted work please click here to review our DMCA policy and learn how to submit a takedown request. © 2025 First Multiple Listing Service, Inc.
Read moreLast checked Apr 20, 7:40 pm
- Jome
- New homes search
- Georgia
- Atlanta Metropolitan Area
- Henry County
- Locust Grove
- Cedar Ridge - Locust Grove Station
- 834 Trillium Dr, Locust Grove, GA 30248
































