














Book your tour. Save an average of $18,473. We'll handle the rest.
We collect exclusive builder offers, book your tours, and support you from start to housewarming.
- Confirmed tours
- Get matched & compare top deals
- Expert help, no pressure
- No added fees
Estimated value based on Jome data, T&C apply
















































- 4 bd
- 3.5 ba
- 2,852 sqft
454 Jo Ann Dr, Marietta, GA 30067
Why tour with Jome?
- No pressure toursTour at your own pace with no sales pressure
- Expert guidanceGet insights from our home buying experts
- Exclusive accessSee homes and deals not available elsewhere
Jome is featured in
- Single-Family
- Quick move-in
- $180.58/sqft
- 0.17-acre lot
Home description
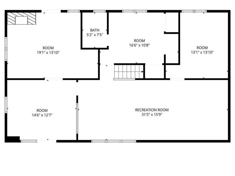
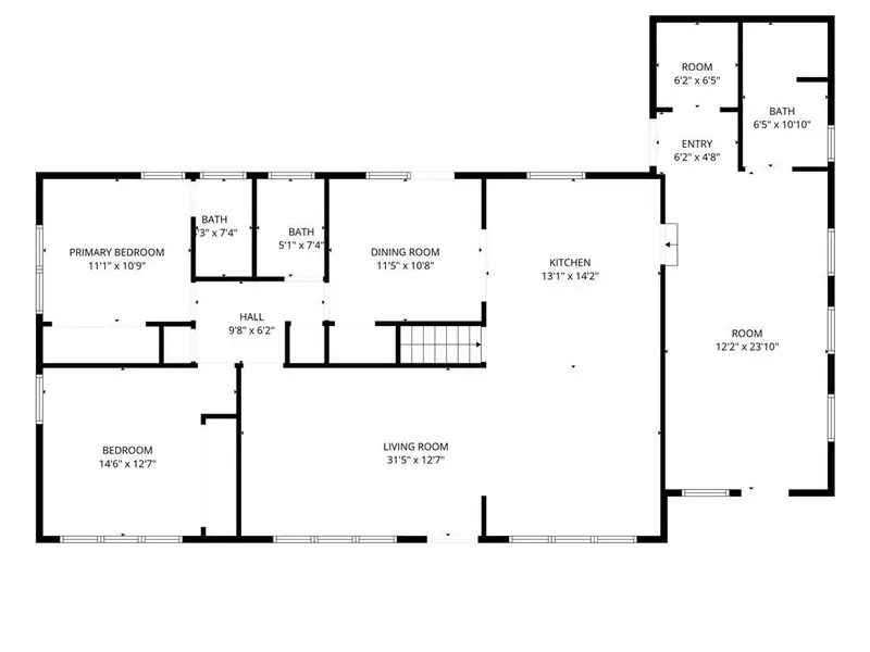
Step into this beautifully updated, move-in ready 4-sided brick ranch, nestled in the heart of East Cobb—one of metro Atlanta's most sought-after locations! This inviting home has timeless original hardwood floors, brand-new windows, and fully renovated bathrooms that exude modern charm. The centerpiece? A stunning, newly designed kitchen featuring a quartz island. Step outside to your newly built back deck, ready for summer barbecues. With four spacious bedrooms and 3.5 bathrooms, this home offers all the room you need. The bonus room with en-suite is thoughtfully designed to be wheelchair accessible, making it a versatile space for guests or multigenerational living. Need extra flexibility? Use the additional bonus/rec room off the carport as a game room, home gym, or whatever suits your lifestyle! Working from home? You’ll find plenty of space for a dedicated office setup. The fully fenced backyard offers ample space for outdoor fun, gardening, or simply relaxing. And here’s the cherry on top: no HOA and no rental restrictions! Whether you’re looking to call this home or explore rental opportunities, the possibilities are endless. You’re just minutes from top-rated schools, Marietta Square, Sewell Mill Library, The Battery (go Braves!), and an array of prime dining and shopping options. Quick access to the interstate and Roswell Road ensures convenience at every turn.
Compass, MLS 7715321
Information last verified by Jome: Today at 2:15 AM (February 11, 2026)
Book your tour. Save an average of $18,473. We'll handle the rest.
We collect exclusive builder offers, book your tours, and support you from start to housewarming.
- Confirmed tours
- Get matched & compare top deals
- Expert help, no pressure
- No added fees
Estimated value based on Jome data, T&C apply
Home details
- Property status:
- Move-in ready
- Lot size (acres):
- 0.17
- Size:
- 2,852 sqft
- Stories:
- 2
- Beds:
- 4
- Baths:
- 3
- Half baths:
- 1
- Fence:
- Wood Fence, Chain Link Fence
Construction details
- Year Built:
- 2026
- Roof:
- Composition Roofing
Home features & finishes
- Construction Materials:
- Brick
- Cooling:
- Ceiling Fan(s)Central Air
- Flooring:
- Hardwood Flooring
- Foundation Details:
- Slab
- Garage/Parking:
- Car CarportCovered Garage/Parking
- Home amenities:
- Home Accessibility FeaturesGreen Construction
- Interior Features:
- Crown Molding
- Kitchen:
- DishwasherKitchen IslandKitchen Range
- Laundry facilities:
- Utility/Laundry Room
- Property amenities:
- BasementDeckBackyardCabinetsYard
- Rooms:
- Bonus RoomPrimary Bedroom On MainKitchenDining RoomSeparate Living and DiningPrimary Bedroom Downstairs
- Security system:
- Smoke Detector

Get a consultation with our New Homes Expert
- See how your home builds wealth
- Plan your home-buying roadmap
- Discover hidden gems
Utility information
- Heating:
- Central Heating, Gas Heating
- Utilities:
- Electricity Available, Natural Gas Available, Underground Utilities, Phone Available, Cable Available, Sewer Available, Water Available
Neighborhood
Home address
Schools in Cobb County School District
GreatSchools’ Summary Rating calculation is based on 4 of the school’s themed ratings, including test scores, student/academic progress, college readiness, and equity. This information should only be used as a reference. Jome is not affiliated with GreatSchools and does not endorse or guarantee this information. Please reach out to schools directly to verify all information and enrollment eligibility. Data provided by GreatSchools.org © 2025
Places of interest
Getting around
Air quality
Natural hazards risk
Provided by FEMA

Considering this home?
Our expert will guide your tour, in-person or virtual
Need more information?
Text or call (888) 486-2818
Financials
Estimated monthly payment
Let us help you find your dream home
How many bedrooms are you looking for?
Similar homes nearby
Recently added communities in this area
Nearby communities in Marietta
New homes in nearby cities
More New Homes in Marietta, GA
Compass, MLS 7715321
Some IDX listings have been excluded from this IDX display. Listings identified with the FMLS IDX logo come from FMLS and are held by brokerage firms other than the owner of this website. The listing brokerage is identified in any listing details. Information is deemed reliable but is not guaranteed. If you believe any FMLS listing contains material that infringes your copyrighted work please click here to review our DMCA policy and learn how to submit a takedown request. © 2025 First Multiple Listing Service, Inc.
Read moreLast checked Feb 11, 1:40 pm
- Jome
- New homes search
- Georgia
- Atlanta Metropolitan Area
- Cobb County
- Marietta
- 454 Jo Ann Dr, Marietta, GA 30067
























