









Book your tour. Save an average of $18,473. We'll handle the rest.
We collect exclusive builder offers, book your tours, and support you from start to housewarming.
- Confirmed tours
- Get matched & compare top deals
- Expert help, no pressure
- No added fees
Estimated value based on Jome data, T&C apply

































- 4 bd
- 2.5 ba
- 2,154 sqft
524 Lillian Wy, Statham, GA 30666
Why tour with Jome?
- No pressure toursTour at your own pace with no sales pressure
- Expert guidanceGet insights from our home buying experts
- Exclusive accessSee homes and deals not available elsewhere
Jome is featured in
- Single-Family
- $166.2/sqft
- $350/annual HOA
- Southeast facing
Home description
The Preston plan built by My Home Communities. Ellington Farms offers beautifully crafted new construction homes conveniently located just minutes from Athens and Highway 316, providing easy access to shopping, dining, and commuter routes. This thoughtfully designed community blends modern style with low-maintenance living. Homes feature durable textured cement siding with Hardiplank Board & Batten or shake accents (per plan), complemented by stone watertables, architectural shingles, and bronze aluminum gutters. Each home includes a 2-car front-entry garage and a concrete patio, perfect for outdoor enjoyment. Inside, buyers will appreciate 9' ceilings on the main level, open and functional floor plans, and quality finishes throughout. Kitchens are appointed with 36" shaker-style painted cabinets with crown trim, granite countertops, stainless steel appliances, undermount double-bowl stainless steel sink, and islands (per plan)-ideal for both everyday living and entertaining. Primary suites feature dual vanities, granite countertops, elongated toilets, and a 4' fiberglass shower, while all bathrooms include granite surfaces. Additional interior highlights include brushed nickel lighting, Peerless satin nickel fixtures, modern 2-panel shaker interior doors, metal balusters, and generous shelving in laundry rooms, closets, and pantries. Ellington Farms homes are built with energy efficiency in mind, offering R30 ceiling and R13 wall insulation, 14 SEER electric HVAC systems, Low-E vinyl windows, and programmable thermostats (per plan). Community HOA is affordable with annual dues of $350 and includes a QBW Home Buyer's Warranty for added peace of mind. Discover quality new homes in a convenient location-Ellington Farms is the perfect place to call home. Secondary photos are stock photos.
RE/MAX Tru, MLS 7711553
May also be listed on the My Home Communities website
Information last verified by Jome: Today at 2:38 AM (May 25, 2026)
Home highlights
Popular North Georgia lake offering boating, fishing, and lakeside living near metro Atlanta and mountain getaways.
Book your tour. Save an average of $18,473. We'll handle the rest.
We collect exclusive builder offers, book your tours, and support you from start to housewarming.
- Confirmed tours
- Get matched & compare top deals
- Expert help, no pressure
- No added fees
Estimated value based on Jome data, T&C apply
Home details
- Property status:
- Pending/Under contract
- Lot size (acres):
- 0.16
- Size:
- 2,154 sqft
- Stories:
- 2
- Beds:
- 4
- Baths:
- 2
- Half baths:
- 1
- Garage spaces:
- 2
- Fence:
- No Fence
- Facing direction:
- Southeast
Construction details
- Builder Name:
- My Home Communities
- Year Built:
- 2026
- Roof:
- Composition Roofing
Home features & finishes
- Construction Materials:
- Brick
- Cooling:
- Central Air
- Flooring:
- Vinyl FlooringCarpet Flooring
- Foundation Details:
- Slab
- Garage/Parking:
- GarageFront Entry Garage/ParkingAttached Garage
- Home amenities:
- Green Construction
- Interior Features:
- Ceiling-HighWalk-In ClosetFoyerPantryDouble Vanity
- Kitchen:
- Kitchen Island
- Laundry facilities:
- Laundry Facilities On Upper LevelUtility/Laundry Room
- Property amenities:
- PatioPorch
- Rooms:
- KitchenOffice/StudyDining RoomFamily RoomBreakfast AreaOpen Concept FloorplanSeparate Living and DiningPrimary Bedroom Upstairs

Get a consultation with our New Homes Expert
- See how your home builds wealth
- Plan your home-buying roadmap
- Discover hidden gems
Utility information
- Heating:
- Electric Heating, Central Heating
- Sewer:
- Public Sewer
- Utilities:
- Underground Utilities, HVAC
- Water source:
- Public

Community details
Ellington Farms
by My Home Communities, Statham, GA
- 7 homes
- 6 plans
- 1,827 - 2,517 sqft
View Ellington Farms details
Community amenities
- Sidewalks Available
More homes in Ellington Farms
- Home at address 526 Lillian Wy, Statham, GA 30666

The Madison
$348,000
- 4 bd
- 2 ba
- 1,827 sqft
526 Lillian Wy, Statham, GA 30666
- Home at address 56 Edith Ct, Statham, GA 30666

The Windhurst
$348,000
- 4 bd
- 4.5 ba
- 1,827 sqft
56 Edith Ct, Statham, GA 30666
- Home at address 36 Edith Ct, Statham, GA 30666

The Madison
$358,000
- 4 bd
- 2 ba
- 1,827 sqft
36 Edith Ct, Statham, GA 30666
- Home at address 534 Lillian Wy, Statham, GA 30666

The Preston B
$366,000
- 4 bd
- 2.5 ba
- 2,159 sqft
534 Lillian Wy, Statham, GA 30666
- Home at address 528 Lillian Wy, Statham, GA 30666

The Baxley
$368,000
- 4 bd
- 2.5 ba
- 2,340 sqft
528 Lillian Wy, Statham, GA 30666
- Home at address 73 Edith Ct, Statham, GA 30666

The Baxley
$368,000
- 4 bd
- 2.5 ba
- 2,340 sqft
73 Edith Ct, Statham, GA 30666
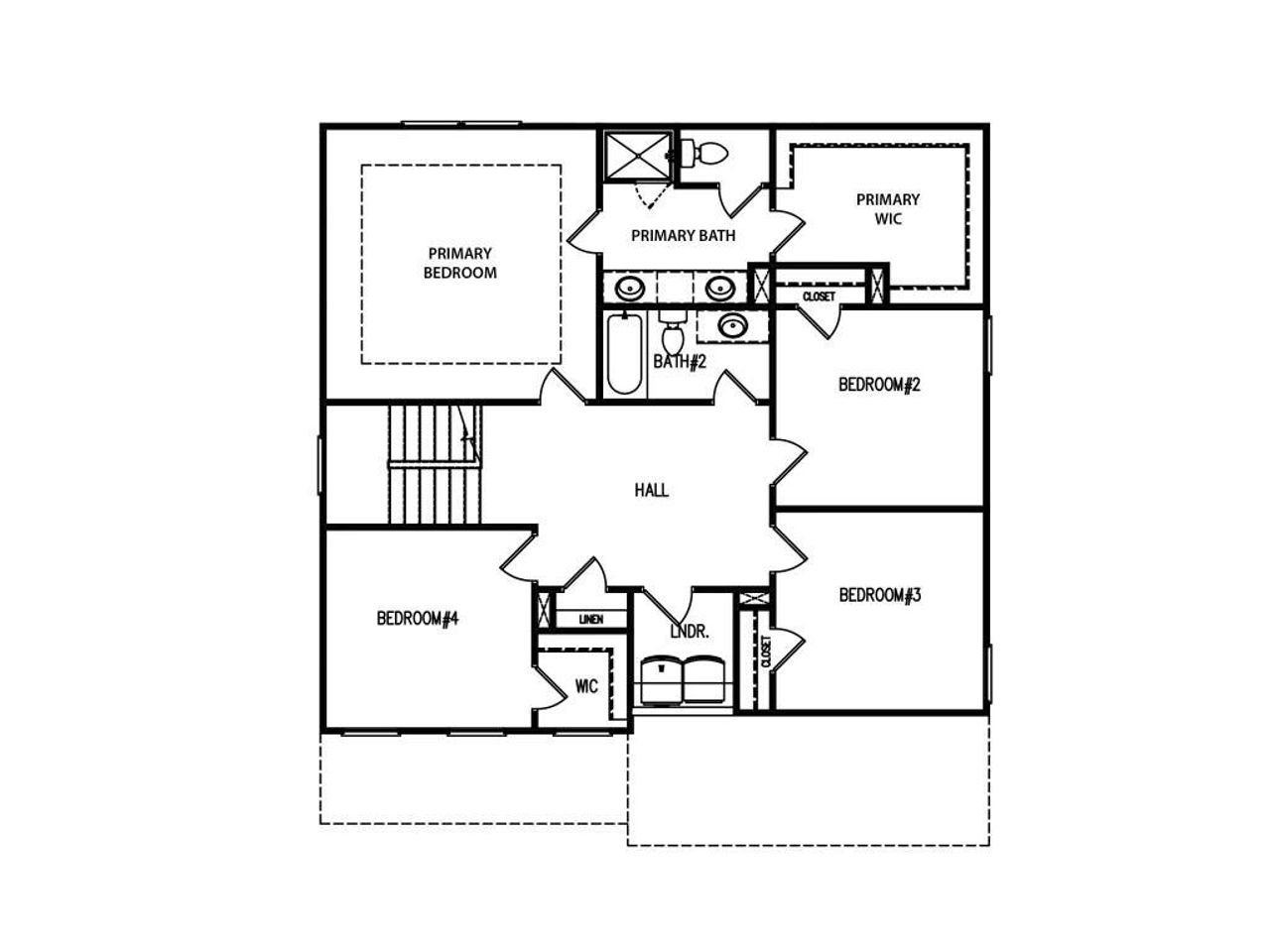
Floor plans in Ellington Farms
About the builder - My Home Communities
Neighborhood
Home address
Schools in Barrow County School District
- Grades PK-05Publicaustin road elementary school3.4 mi1009 austin roadna
GreatSchools’ Summary Rating calculation is based on 4 of the school’s themed ratings, including test scores, student/academic progress, college readiness, and equity. This information should only be used as a reference. Jome is not affiliated with GreatSchools and does not endorse or guarantee this information. Please reach out to schools directly to verify all information and enrollment eligibility. Data provided by GreatSchools.org © 2025
Places of interest
Getting around
Air quality
Noise level
A Soundscore™ rating is a number between 50 (very loud) and 100 (very quiet) that tells you how loud a location is due to environmental noise.

Considering this home?
Our expert will guide your tour, in-person or virtual
Need more information?
Text or call (888) 545-5198
Financials
Estimated monthly payment
Let us help you find your dream home
How many bedrooms are you looking for?
Similar homes nearby
Recently added communities in this area
Nearby communities in Statham
New homes in nearby cities
More New Homes in Statham, GA
RE/MAX Tru, MLS 7711553
Some IDX listings have been excluded from this IDX display. Listings identified with the FMLS IDX logo come from FMLS and are held by brokerage firms other than the owner of this website. The listing brokerage is identified in any listing details. Information is deemed reliable but is not guaranteed. If you believe any FMLS listing contains material that infringes your copyrighted work please click here to review our DMCA policy and learn how to submit a takedown request. © 2025 First Multiple Listing Service, Inc.
Read moreLast checked May 25, 7:40 pm
- Jome
- New homes search
- Georgia
- Atlanta Metropolitan Area
- Barrow County
- Statham
- Ellington Farms
- 524 Lillian Wy, Statham, GA 30666































