














Book your tour. Save an average of $18,473. We'll handle the rest.
We collect exclusive builder offers, book your tours, and support you from start to housewarming.
- Confirmed tours
- Get matched & compare top deals
- Expert help, no pressure
- No added fees
Estimated value based on Jome data, T&C apply













- 4 bd
- 2.5 ba
- 2,364 sqft
443 Mary St Sw, Atlanta, GA 30310
Why tour with Jome?
- No pressure toursTour at your own pace with no sales pressure
- Expert guidanceGet insights from our home buying experts
- Exclusive accessSee homes and deals not available elsewhere
Jome is featured in
- Single-Family
- Quick move-in
- $236.89/sqft
- 0.06-acre lot
Home description
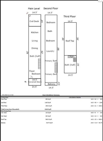
443 Mary Street SW is a modern, thoughtfully designed residence located in Atlanta’s rapidly evolving Southwest corridor. Offering 4 bedrooms, 2 full bathrooms, and 2 half bathrooms, including a rooftop-level half bath, this home delivers scale, comfort, and flexibility across three finished levels.
The main level features 10+ foot ceilings and a bright open-concept layout with hardwood flooring, high-end finishes, quartz countertops, and custom tilework throughout. The kitchen is outfitted with high-end LG stainless steel appliances, including a gas range, refrigerator, and dishwasher—ideal for both everyday living and entertaining.
Upstairs, 9-foot ceilings enhance the spacious feel of the private living quarters, including a generous primary suite and well-appointed secondary bedrooms with plush, high-grade carpeting.
The standout feature is the 40-foot private rooftop deck , designed as a true extension of the living space. Fully staged with installed string lighting, custom planters, a dedicated gas line, and a grill that conveys with the property, the rooftop is turnkey and ideal for entertaining, relaxing, and enjoying city views year-round.
Additional features include a private driveway, fully fenced yard, and an installed Comcast security and internet system transferable to the new owner.
The property is priced at $650,000 and supported by a recent bank appraisal in hand at $670,000, which is attached to the listing—offering buyers the opportunity to walk in with immediate equity. Located along the Atlanta BeltLine Westside Trail and surrounded by major investment—including Live Nation’s West End entertainment project, One West End, Murphy Crossing, the Woodrow Street corridor, Lee + White, South Downtown redevelopment, and upcoming BeltLine-hosted FIFA World Cup fan events—this home is positioned for both lifestyle and long-term growth. A video outlining nearby developments and approximate distances is included with the listing. Includes 1-year home warranty. Built by a qualified builder, member of the National Association of the Remodeling Industry (NARI).
Maron Realty, LLC, MLS 7707296
Information last verified by Jome: Yesterday at 2:39 AM (March 14, 2026)
Home highlights
Book your tour. Save an average of $18,473. We'll handle the rest.
We collect exclusive builder offers, book your tours, and support you from start to housewarming.
- Confirmed tours
- Get matched & compare top deals
- Expert help, no pressure
- No added fees
Estimated value based on Jome data, T&C apply
Home details
- Property status:
- Move-in ready
- Neighborhood:
- Pittsburgh
- Lot size (acres):
- 0.06
- Size:
- 2,364 sqft
- Beds:
- 4
- Baths:
- 2
- Half baths:
- 2
- Fence:
- Wood Fence
Construction details
- Year Built:
- 2025
- Roof:
- Roof Gutter, Shingle Roofing
Home features & finishes
- Construction Materials:
- Concrete
- Cooling:
- Ceiling Fan(s)Central Air
- Flooring:
- Hardwood Flooring
- Foundation Details:
- Concrete Perimeter
- Home amenities:
- ENERGY STAR CertifiedGreen Construction
- Interior Features:
- Ceiling-HighWalk-In ClosetDouble Vanity
- Kitchen:
- DishwasherOvenRefrigeratorGas CooktopGas OvenKitchen Range
- Laundry facilities:
- Laundry Facilities In Closet
- Lighting:
- Exterior Lighting
- Property amenities:
- DeckCabinetsPorch
- Rooms:
- KitchenOpen Concept Floorplan
- Security system:
- Security SystemCarbon Monoxide Detector

Get a consultation with our New Homes Expert
- See how your home builds wealth
- Plan your home-buying roadmap
- Discover hidden gems
Utility information
- Heating:
- Central Heating
- Utilities:
- Electricity Available
Community amenities
- City View
- Park Nearby
- Sidewalks Available
Neighborhood
Home address
- Neighborhood:
- Pittsburgh
- City:
- Atlanta
Schools in Atlanta City School District
GreatSchools’ Summary Rating calculation is based on 4 of the school’s themed ratings, including test scores, student/academic progress, college readiness, and equity. This information should only be used as a reference. Jome is not affiliated with GreatSchools and does not endorse or guarantee this information. Please reach out to schools directly to verify all information and enrollment eligibility. Data provided by GreatSchools.org © 2025
Places of interest
Getting around
15 nearby routes: 13 bus, 2 rail, 0 otherAir quality
Noise level
A Soundscore™ rating is a number between 50 (very loud) and 100 (very quiet) that tells you how loud a location is due to environmental noise.
Natural hazards risk
Provided by FEMA

Considering this home?
Our expert will guide your tour, in-person or virtual
Need more information?
Text or call (888) 545-5198
Financials
Estimated monthly payment
Let us help you find your dream home
How many bedrooms are you looking for?
Similar homes nearby
Recently added communities in this area
Nearby communities in Atlanta
New homes in nearby cities
More New Homes in Atlanta, GA
Maron Realty, LLC, MLS 7707296
Some IDX listings have been excluded from this IDX display. Listings identified with the FMLS IDX logo come from FMLS and are held by brokerage firms other than the owner of this website. The listing brokerage is identified in any listing details. Information is deemed reliable but is not guaranteed. If you believe any FMLS listing contains material that infringes your copyrighted work please click here to review our DMCA policy and learn how to submit a takedown request. © 2025 First Multiple Listing Service, Inc.
Read moreLast checked Mar 15, 1:40 am
- Jome
- New homes search
- Georgia
- Atlanta Metropolitan Area
- Fulton County
- Atlanta
- 443 Mary St Sw, Atlanta, GA 30310

























