








Book your tour. Save an average of $18,473. We'll handle the rest.
We collect exclusive builder offers, book your tours, and support you from start to housewarming.
- Confirmed tours
- Get matched & compare top deals
- Expert help, no pressure
- No added fees
Estimated value based on Jome data, T&C apply












- 4 bd
- 6 ba
- 5,080 sqft
0 Union Church Rd, Braselton, GA 30517
Why tour with Jome?
- No pressure toursTour at your own pace with no sales pressure
- Expert guidanceGet insights from our home buying experts
- Exclusive accessSee homes and deals not available elsewhere
Jome is featured in
- Single-Family
- Quick move-in
- $273.62/sqft
- 2.00-acre lot
Home description
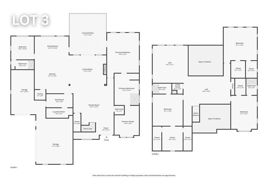
---LOT 3 is located at 5638 Union Church Road for $1,465,000. This custom-built modern estate showcases 4 bedrooms, 6 bathrooms, and approximately 5,637 square feet of luxury living on a private 1.31-acre lot in Braselton, GA. With no HOA and a gated driveway, this home seamlessly blends sophisticated modern design, advanced smart home technology, and exceptional privacy. Inside, soaring ceilings, wide-plank hardwood floors, and oversized European windows flood the open-concept living areas with natural light while maximizing energy efficiency. Foam insulation throughout enhances year-round comfort and energy savings. The dramatic double-story living area is ideal for both entertaining and relaxing in style. The primary suite offers a true retreat, featuring a spa-inspired bath with an oversized walk-in shower, freestanding soaking tub, and dual vanities. Additional highlights include a large mudroom with built-in storage, a well-appointed laundry room with extra cabinetry, a flexible bonus room with a wet bar and built-in shelving, and multiple flex spaces ideal for a home office, hobbies, or a home gym. An oversized three-car garage is complemented by a spacious concrete driveway, providing ample parking. The septic system is strategically placed to allow room for a future pool or outdoor living area. Enjoy tranquil views and privacy while remaining conveniently close to shopping, dining, and commuter routes. This exceptional Braselton estate delivers the perfect balance of freedom, technology, privacy, and modern luxury.
---LOT 4 is located at 5642 Union Church Road for $1,390,000. Designed with intentional detail and a strong architectural presence, this custom-built modern estate offers 5,080 square feet of refined living space on a private 1.20-acre lot in Braselton, GA. With no HOA and a gated driveway, this 4-bedroom, 6-bath residence delivers a rare combination of privacy, design-forward finishes, and cutting-edge smart home functionality. The interior is anchored by a striking double-story living room featuring a custom fireplace, floating wood shelving, and a contemporary tray ceiling with integrated LED accent lighting creating a bold yet inviting focal point. Oversized European windows and wide-plank hardwood flooring enhance the home’s clean lines while maintaining superior energy efficiency. At the heart of the home, the chef’s kitchen is tailored for both everyday living and hosting, showcasing an oversized waterfall quartz island, custom two-tone cabinetry, a premium gas cooktop, and double ovens. The main-level primary suite offers a peaceful retreat with a spa-inspired bath, including a freestanding soaking tub, oversized walk-in shower, and dual vanities. Supporting spaces are thoughtfully designed and highly functional, including a custom mudroom with built-ins, an expanded laundry room with additional cabinetry, and a dedicated bonus room featuring a wet bar and built-in shelving ideal for media, entertaining, or a private lounge. Additional flex areas provide options for a home office, studio, or fitness space. An oversized three-car garage and extended concrete driveway accommodate ample parking. The septic system placement preserves backyard space for a future pool or outdoor entertaining area. Set behind a gated entrance, the property enjoys peaceful surroundings while remaining conveniently close to Braselton’s dining, shopping, and commuter routes. This home offers a refined, design-driven take on modern luxury living. Ask about our preferred lender program with rates starting at 4.25%
Virtual Properties Realty.com, MLS 7697970
Information last verified by Jome: Today at 7:40 AM (April 15, 2026)
Book your tour. Save an average of $18,473. We'll handle the rest.
We collect exclusive builder offers, book your tours, and support you from start to housewarming.
- Confirmed tours
- Get matched & compare top deals
- Expert help, no pressure
- No added fees
Estimated value based on Jome data, T&C apply
Home details
- Property status:
- Move-in ready
- Lot size (acres):
- 2.00
- Size:
- 5,080 sqft
- Stories:
- 2
- Beds:
- 4
- Baths:
- 6
- Garage spaces:
- 3
- Fence:
- No Fence
Construction details
- Year Built:
- 2026
- Roof:
- Composition Roofing
Home features & finishes
- Cooling:
- Central Air
- Foundation Details:
- Slab
- Garage/Parking:
- GarageAttached Garage
- Property amenities:
- BackyardFireplaceYard
- Rooms:
- Family Room

Get a consultation with our New Homes Expert
- See how your home builds wealth
- Plan your home-buying roadmap
- Discover hidden gems
Utility information
- Heating:
- No Heating
- Sewer:
- Septic Tank
- Utilities:
- Electricity Available, Natural Gas Available, Cable Available, Water Available
- Water source:
- Public
Neighborhood
Home address
Schools in Hall County School District
GreatSchools’ Summary Rating calculation is based on 4 of the school’s themed ratings, including test scores, student/academic progress, college readiness, and equity. This information should only be used as a reference. Jome is not affiliated with GreatSchools and does not endorse or guarantee this information. Please reach out to schools directly to verify all information and enrollment eligibility. Data provided by GreatSchools.org © 2025
Places of interest
Getting around
Air quality
Noise level
A Soundscore™ rating is a number between 50 (very loud) and 100 (very quiet) that tells you how loud a location is due to environmental noise.
Natural hazards risk
Provided by FEMA

Considering this home?
Our expert will guide your tour, in-person or virtual
Need more information?
Text or call (888) 545-5198
Financials
Estimated monthly payment
Let us help you find your dream home
How many bedrooms are you looking for?
Similar homes nearby
Recently added communities in this area
Nearby communities in Braselton
New homes in nearby cities
More New Homes in Braselton, GA
Virtual Properties Realty.com, MLS 7697970
Some IDX listings have been excluded from this IDX display. Listings identified with the FMLS IDX logo come from FMLS and are held by brokerage firms other than the owner of this website. The listing brokerage is identified in any listing details. Information is deemed reliable but is not guaranteed. If you believe any FMLS listing contains material that infringes your copyrighted work please click here to review our DMCA policy and learn how to submit a takedown request. © 2025 First Multiple Listing Service, Inc.
Read moreLast checked Apr 15, 7:40 am
- Jome
- New homes search
- Georgia
- Atlanta Metropolitan Area
- Hall County
- Braselton
- 0 Union Church Rd, Braselton, GA 30517






















