














Book your tour. Save an average of $18,473. We'll handle the rest.
- Confirmed tours
- Get matched & compare top deals
- Expert help, no pressure
- No added fees
Estimated value based on Jome data, T&C apply




















- 4 bd
- 2.5 ba
- 2,203 sqft
6643 Red Oak Wy, Stone Mountain, GA 30087
Why tour with Jome?
- No pressure toursTour at your own pace with no sales pressure
- Expert guidanceGet insights from our home buying experts
- Exclusive accessSee homes and deals not available elsewhere
Jome is featured in
- Single-Family
- Quick move-in
- $181.07/sqft
- 0.14-acre lot
Home description
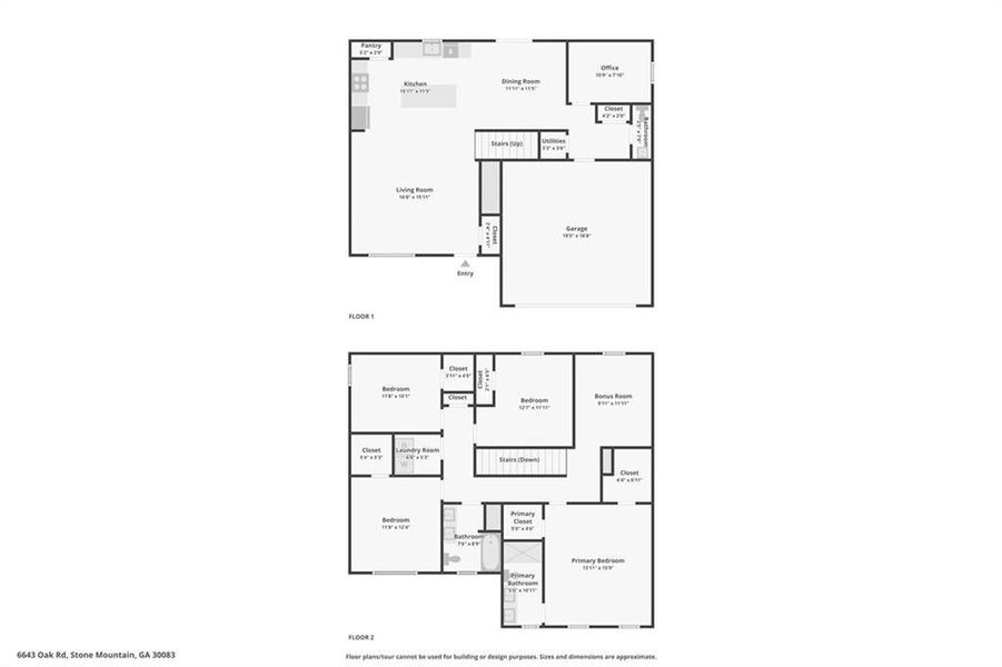
New construction, Never lived in with no waiting—this is the only standing inventory available in the subdivision for months! Enjoy thoughtful upgrades throughout, including a smart thermostat and granite counters. A spacious front yard welcomes you inside, where beautiful and easy-to-maintain LVP floors flow from the bright living room into the kitchen. The open-concept living room is filled with natural light, while the on-trend kitchen features white cabinetry, a large island with seating, granite counters, a pantry, and a sunny dining area with easy access to the back patio—perfect for al fresco dining. A main-level bonus room makes an ideal office, with a convenient half bath nearby. Upstairs, a second bonus room offers the perfect media or reading space. The primary suite features two closets and an en-suite bath with dual sinks. Three spacious secondary bedrooms and a full hall bath provide room for everyone. An upstairs laundry room adds everyday convenience—no more hauling baskets up and down the stairs! Out back, a generous lot includes a patio ideal for grilling or entertaining. Washer, dryer, and fridge included. Enjoy the perks of new construction without the wait - book your tour today!
Redfin Corporation, MLS 7684761
Information last verified by Jome: Today at 2:06 AM (January 19, 2026)
Book your tour. Save an average of $18,473. We'll handle the rest.
We collect exclusive builder offers, book your tours, and support you from start to housewarming.
- Confirmed tours
- Get matched & compare top deals
- Expert help, no pressure
- No added fees
Estimated value based on Jome data, T&C apply
Home details
- Property status:
- Move-in ready
- Lot size (acres):
- 0.14
- Size:
- 2,203 sqft
- Stories:
- 2
- Beds:
- 4
- Baths:
- 2
- Half baths:
- 1
- Garage spaces:
- 2
- Fence:
- No Fence
Construction details
- Year Built:
- 2025
- Roof:
- Composition Roofing
Home features & finishes
- Cooling:
- Central Air
- Flooring:
- Vinyl Flooring
- Foundation Details:
- Slab
- Garage/Parking:
- Garage
- Interior Features:
- Walk-In ClosetDouble Vanity
- Kitchen:
- DishwasherRefrigeratorElectric CooktopKitchen IslandKitchen RangeElectric Oven
- Laundry facilities:
- Laundry Facilities On Upper LevelDryerWasherUtility/Laundry Room
- Property amenities:
- BackyardLandscapingCabinetsPatioYard
- Rooms:
- Bonus RoomKitchenOpen Concept Floorplan
- Security system:
- Smoke Detector

Get a consultation with our New Homes Expert
- See how your home builds wealth
- Plan your home-buying roadmap
- Discover hidden gems
Utility information
- Heating:
- Central Heating
- Utilities:
- Electricity Available, Sewer Available, Water Available
Neighborhood
Home address
- City:
- Stone Mountain
- County:
- Dekalb
- Zip Code:
- 30087
Schools in DeKalb County School District
GreatSchools’ Summary Rating calculation is based on 4 of the school’s themed ratings, including test scores, student/academic progress, college readiness, and equity. This information should only be used as a reference. Jome is not affiliated with GreatSchools and does not endorse or guarantee this information. Please reach out to schools directly to verify all information and enrollment eligibility. Data provided by GreatSchools.org © 2025
Places of interest
Getting around
Air quality
Natural hazards risk
Provided by FEMA

Considering this home?
Our expert will guide your tour, in-person or virtual
Need more information?
Text or call (888) 486-2818
Financials
Estimated monthly payment
Let us help you find your dream home
How many bedrooms are you looking for?
Similar homes nearby
Recently added communities in this area
Nearby communities in Stone Mountain
New homes in nearby cities
More New Homes in Stone Mountain, GA
Redfin Corporation, MLS 7684761
Some IDX listings have been excluded from this IDX display. Listings identified with the FMLS IDX logo come from FMLS and are held by brokerage firms other than the owner of this website. The listing brokerage is identified in any listing details. Information is deemed reliable but is not guaranteed. If you believe any FMLS listing contains material that infringes your copyrighted work please click here to review our DMCA policy and learn how to submit a takedown request. © 2025 First Multiple Listing Service, Inc.
Read moreLast checked Jan 19, 7:40 am
- Jome
- New homes search
- Georgia
- Atlanta Metropolitan Area
- Dekalb County
- Stone Mountain
- 6643 Red Oak Wy, Stone Mountain, GA 30087
























